Doinita Moroiu

Consultant imobiliar

Închiriere

2 camere | 63 m²

Prima Inchiriere - Cosmopolit

Brasov / Brasov
790 €

Specificații

Preț negociabil Nu

Suprafața utilă 63 m²

Număr camere 2

Tip imobil Bloc apartamente

Compartimentare Decomandat

Număr Băi 1

Etaj 2

Niveluri imobil 6

An finalizare construcție 2024

Confort 1

Ansamblu Rezidențial Nu

Posibilitate parcare Nu

Stare proprietate Bună

Tip tranzacție Închiriere

Tip vânzător Companie

LOCALIZARE:
Acest imobil este situat in complexul Cosmopolit, in imediata apropiere a Aulei Universitatii Transilvania, a Scolii Gimnaziale Nr. 5, dar si a multiple supermarket-uri, printre care Carrefour Express si Mega Image, clinici stomatologice, saloane de infrumusetare, care se afla la doar cativa pasi distanta.

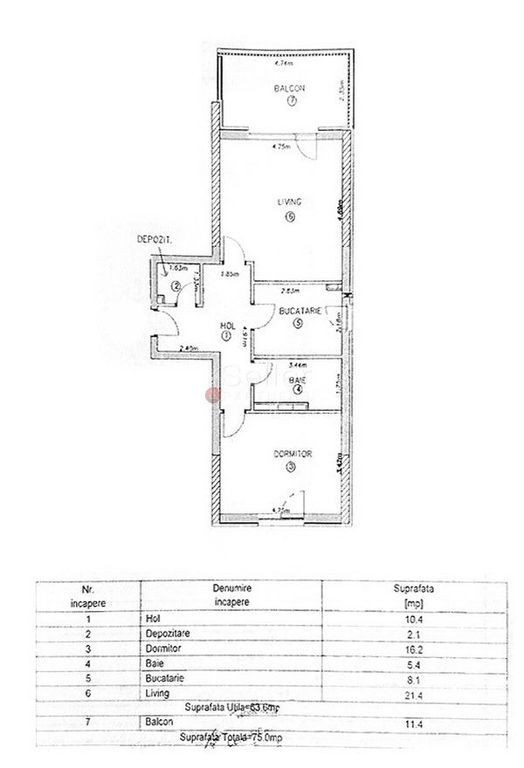
COMPARTIMENTARE:
- Holul de acces, care face legatura intre toate incaperile;
- Zona de zi, care detine suprafata o vitrata mare, beneficiind de acces la terasa;
- Bucataria, inchisa, ce este mobilata si dotata cu plita, cuptor, hota, frigider, masina de spalat vase, etc.;
- Dormitorul, cu o suprafata generoasa si o priveliste deosebita spre oras;
- Baia cu aerisire ventilata, aceasta fiind dotata cu cada;
- Spatiu de depozitare, in care este amplasata masina de spalat rufe;
- Terasa, avand o suprafata de 11,4 mp.

DOTARI:
- centrala termica;
- tamplarie PVC, cu geam termopan;
- usa metalica;
- incalzire in pardoseala;
- loc de parcare subteran;
- boxa de depozitare.

Apartamentul se afla la prima inchiriere.
Tranzactionarea proprietatii se va face cu mobilierul aferent prezentei ofertari.
Imobilul este situat intr-o zona de blocuri, accesul auto, pana in zona de centru a orasului facandu-se in cca. 3 minute.

ATRACTII ZONA: Magazine, restaurante, parcuri, scoli, spitale.
ACCESIBILITATE: Transport public in apropiere.

NOTA:
Perioada Minima Inchiriere Acceptata: 12 luni;
Locatorul nu accepta animale de companie.
Se percepe un comision de 50% + TVA din valoarea unei chirii.

Informatiile prezentate reflecta situatia reala a proprietatii, fara a constitui o oferta contractuala.
Aceste date au fost obtinute verbal, de la titularul de drept al imobilului.

Structura acestei prezentari nu poate fi reprodusa, fara acordul scris al The Seller and Partners.

Solicită vizionarea proprietății

Alege o zi disponibilă

07 Decembrie
08 Decembrie
09 Decembrie
10 Decembrie

Alege un interval orar

8:00 - 12:00
12:00 - 15:00
15:00 - 18:00
18:00 - 21:00

Următoarele date de contact oferite de tine vor fi accesibile proprietarului:

Locație

Contactează utilizatorul

ID: 3903552

Prima Inchiriere - Cosmopolit

2 camere | 63 m² | Brasov / Brasov

790 €


Vezi și alte anunțuri imobiliare
Apartamente închiriere Brasov-bv - 13 Decembrie Case-vile închiriere Brasov-bv - 13 Decembrie Garsoniere închiriere Brasov-bv - 13 Decembrie Terenuri închiriere Brasov-bv - 13 Decembrie Apartamente închiriere Brasov-bv - 15 Noiembrie Case-vile închiriere Brasov-bv - 15 Noiembrie Garsoniere închiriere Brasov-bv - 15 Noiembrie Terenuri închiriere Brasov-bv - 15 Noiembrie Apartamente închiriere Brasov-bv - Astra Case-vile închiriere Brasov-bv - Astra Garsoniere închiriere Brasov-bv - Astra Terenuri închiriere Brasov-bv - Astra