BLITZ Romania

Consultant imobiliar

Vânzare

Proiect de 5* la Belis, PUD aprobat

Cluj / Cluj-Napoca
500.000 €

Rată estimată

10.955 Lei/lună

Avans (15%)

372.750 lei

Perioada împrumutului

30 ani

Specificații

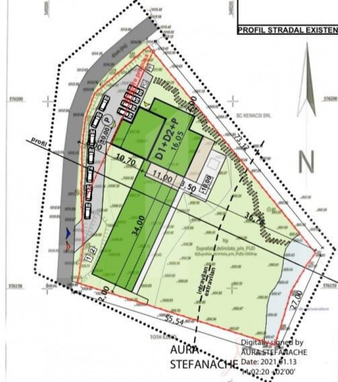
Suprafață teren 3000 m²

Clasificare teren Intravilan

Front stradal 3 m

Utilități Curent, Apă

Tip teren Construibil

Tip tranzacție Vânzare

Tip vânzător Companie

Blitz va propune o oportunitate unicata , in materie de investitie turistica! 

Pe o suprafata de 3068 de mp, va oferim un teren cu acces la lacul Belis intr-o pozitie mirifica cu orientare sud-vestica , care ofera in fiecare dimineata un rasarit minunat. 

Terenul are acces asfaltat , utilitati de tip apa, curent si internet iar situatia juridica la stadiu de PUD aprobat , face ca un concept turistic modern sa aiba un timp foarte scurt de implementat. 

PUD-ul contine un proiect modern astfel : 

 * Corp principal de S1+ S2 + Etaj

- Dat fiind geometria terenului accesul se face de la etaj printr-o zona de receptie unde se regasesc si 2 camere locative. 

- La nivelul inferior etajului , S2, avem un restaurant cu sala de mese, bucatarie, separeu , grupuri sanitare, vestiare personal si o terasa cu amenajare pentru HORECA cu panorama superba. Sala de mese este despartita de terasa printr-un perete cortina complet sau partial retractabil oferind astfel un open space modern cu posibilitati multiple de exploatare, fie intern , pentru cei cazati , fie pentru clienti externi sau diverse evenimente. 

- Coborand inca un nivel , S1, proiectul propune un spatiu de tip Spa cu piscina interioara, vestiare, saune umede si uscate, sala de masaj si ciubar exterior pe o suprafata de tec . 

Tot la acelasi nivel, S1, se propune si accesul catre cele 8 camere inedite , cu o suprafata de cca 40 de mp , toate cu perete tip cortina spre lac, cu scara interioara si acces la mezanin unde se poate acomoda cel de-al doilea pat dublu, oferind astfel o posibilitate de cazare de minim 4 persoane. Totodata camerele sunt gandite cu dressing, baie proprie si toate utilitatile. Terasa fiecarei camere dispune de intimitate completa oferind o panorama superba asupra lacului. 


Ca si suprafete enumeram : 
- suprafata construita de 886 de mp 
 -suprafata desfasurata de 1396 de mp 
- suprafata utila 1047 de mp 
- alei si terase cu suprafata de 400 de mp 

 Proiectul ofera posibilitatea unui bussines de 5* ultralux, care cu siguranta va fi o atractie de top pentru zona in care se afla si care poate fi amortizat intr-o perioada foarte buna de timp, cu un yeald generos. Exista posibilitatea de asociere. 

Va asteptam la o vizionare pe malul lacului, unde puteti dezvolta o investitie sigura, profitabila si unicata. 







Cod ofertă / ID BLITZ: P3795
Id intern: P3795

Solicită vizionarea proprietății

Alege o zi disponibilă

07 Decembrie
08 Decembrie
09 Decembrie
10 Decembrie

Alege un interval orar

8:00 - 12:00
12:00 - 15:00
15:00 - 18:00
18:00 - 21:00

Următoarele date de contact oferite de tine vor fi accesibile proprietarului:

Locație

Despre zona "Manastur"

păreri exprimate de 461 de utilizatori, pe o scară de la 1 la 10

Află clasamentul acestui cartier
Sănătate și Siguranță

Sănătate și Siguranță

7.6

Sănătate 7.4

Siguranță 8.1

Calitate aer 7.4

Curățenie 7.5

Zone verzi 7.6

Cultură și Educație

Cultură și Educație

7.6

Cultură 6.8

Educație 8.0

Sport 7.9

Ambianță și Lifestyle

Ambianță și Lifestyle

7.1

Nivel de trai 7.6

Magazine 8.4

Localuri 7.5

Parcări 4.9

Zgomot 7.2

Transport în comun

Transport în comun

8.4

Autobuz 8.7

Tramvai 8.1

Metrou 0.0

Contactează utilizatorul

ID: 3665842

Proiect de 5* la Belis, PUD aprobat

Cluj / Cluj-Napoca

500.000 €


Vezi și alte anunțuri imobiliare
Apartamente vânzare Cluj-napoca-cj - Aeroport Case-vile vânzare Cluj-napoca-cj - Aeroport Garsoniere vânzare Cluj-napoca-cj - Aeroport Terenuri vânzare Cluj-napoca-cj - Aeroport Apartamente vânzare Cluj-napoca-cj - Andrei Muresanu Case-vile vânzare Cluj-napoca-cj - Andrei Muresanu Garsoniere vânzare Cluj-napoca-cj - Andrei Muresanu Terenuri vânzare Cluj-napoca-cj - Andrei Muresanu Apartamente vânzare Cluj-napoca-cj - Apahida Case-vile vânzare Cluj-napoca-cj - Apahida Garsoniere vânzare Cluj-napoca-cj - Apahida Terenuri vânzare Cluj-napoca-cj - Apahida