Dora Murza

Consultant imobiliar

Vânzare

3 camere | 62 m²

RECO Apartament la casa

Bihor / Oradea
117.000 €

Rată estimată

2.563 Lei/lună

Avans (15%)

87.224 lei

Perioada împrumutului

30 ani

Specificații

Consum total de energie primară 0

Indicele de emisii echivalent CO2 0

Consum total din surse regenerabile 0

Număr camere 3

Număr Băi 1

Suprafața utilă 62 m²

Compartimentare Decomandat

Confort 1

An finalizare construcție 1989

Nu include TVA Nu

Comision cumpărător 0%

Niveluri imobil 1

Tip imobil Bloc apartamente

Stare proprietate Bună

Etaj 1

Tip tranzacție Vânzare

Tip vânzător Companie

RECO Imobiliare va propunne spre vanzare

 #DM73 APARTAMENT LA CASA LA 5 MINUTE DE CENTRU in cartierul Iorga.

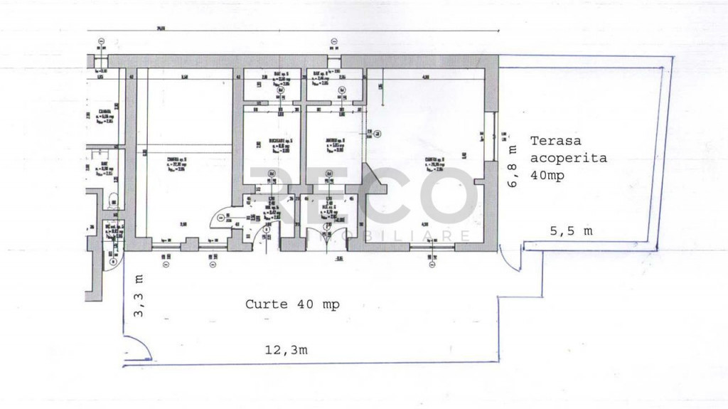
Situata pe o strada linistita la marginea dealurilor Oradea.                                                                Aceasta proprietate dispune de 3 camere, respectiv 2 dormitoare decomandate, din care unul cu balcon, living open space cu bucataria. In curte dispune de boxa de depozitare si o camera  anexa care poate fi transformata in bucataie. Apartamentul dispune de acces propriu si curte proprie!   Avem  toate utilitatile:Tv, internet, canalizare,aer conditionat,etc.(cu posibilitate de racordare la gaz!!!) Incalzire de la reteaua de la oras o soba de teracota ascunsa.  Curte ingrijita si amenajata cu gust. Se vinde mobilat-utialat.

Pentru informatii suplimentare si vizionari nu ezitati sa ne contactati!

Suprafata terenului: 112mp                                                                                                   Suprafata construita:73.6mp                                                                                    Suprafata utila: 62mp.                                                                                                 Pret: 117.000 euro usor negociabil 
Telefon: 0376443700

Solicită vizionarea proprietății

Alege o zi disponibilă

07 Decembrie
08 Decembrie
09 Decembrie
10 Decembrie

Alege un interval orar

8:00 - 12:00
12:00 - 15:00
15:00 - 18:00
18:00 - 21:00

Următoarele date de contact oferite de tine vor fi accesibile proprietarului:

Locație

Despre zona "Iorga"

păreri exprimate de 2 de utilizatori, pe o scară de la 1 la 10

Află clasamentul acestui cartier
Sănătate și Siguranță

Sănătate și Siguranță

6.4

Sănătate 8.0

Siguranță 6.0

Calitate aer 6.0

Curățenie 6.0

Zone verzi 6.0

Cultură și Educație

Cultură și Educație

6.7

Cultură 6.0

Educație 8.0

Sport 6.0

Ambianță și Lifestyle

Ambianță și Lifestyle

7.3

Nivel de trai 7.0

Magazine 5.5

Localuri 8.0

Parcări 8.0

Zgomot 8.0

Transport în comun

Transport în comun

6.0

Autobuz 6.0

Tramvai 6.0

Metrou 0.0

Contactează utilizatorul

ID: 4001825

RECO Apartament la casa

3 camere | 62 m² | Bihor / Oradea

117.000 €


Vezi și alte anunțuri imobiliare
Apartamente vânzare Oradea-bh - Aeroport Case-vile vânzare Oradea-bh - Aeroport Garsoniere vânzare Oradea-bh - Aeroport Terenuri vânzare Oradea-bh - Aeroport Apartamente vânzare Oradea-bh - Calea Aradului Case-vile vânzare Oradea-bh - Calea Aradului Garsoniere vânzare Oradea-bh - Calea Aradului Terenuri vânzare Oradea-bh - Calea Aradului Apartamente vânzare Oradea-bh - Calea Borsului Case-vile vânzare Oradea-bh - Calea Borsului Garsoniere vânzare Oradea-bh - Calea Borsului Terenuri vânzare Oradea-bh - Calea Borsului