Robert Gagos

Consultant imobiliar

Vânzare

5 camere | 170 m²

Refugiu Elegant lângă Pădurea Snagov: Casa Visurilor Tale

Bucuresti-Ilfov / Snagov
220.000 €

Rată estimată

4.820 Lei/lună

Avans (15%)

164.010 lei

Perioada împrumutului

30 ani

Specificații

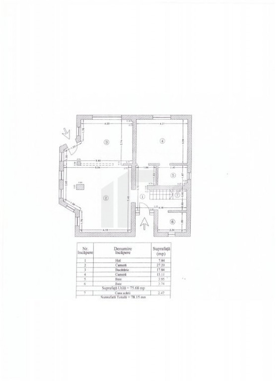
Număr camere 5

Suprafața utilă 170 m²

An finalizare construcție 2010

Niveluri imobil 1

Suprafață teren 425 m²

Număr Băi 3

Numărul de locuri de parcare 2

Comision cumpărător 0%

Nu include TVA Da

Stare proprietate Bună

Mobilat și Utilat Nemobilat

Utilități Curent, Apă, Canalizare, Gaz

Tip tranzacție Vânzare

Tip vânzător Companie

Descoperiți o oază de liniște și rafinament în inima naturii, la doar câțiva pași de facilitățile esențiale. Situată în prestigiosul ansamblu rezidențial Snagov Villas, această vilă deosebită îmbină armonios confortul modern cu farmecul peisajului natural din vecinătatea pădurii Snagov.
 
Cu o suprafață generoasă de 170 mp, această reședință P+1 oferă un spațiu intim și elegant, perfect pentru familii. Cele 5 camere luminoase, dintre care 4 dormitoare spațioase și 3 băi moderne, sunt completate de 4 balcoane ce deschid priveliști asupra grădinii pline de verdeață.
 
Construită cu atenție la detalii, vila beneficiază de o structură solidă din beton și izolație exterioară, garantând o durabilitate excepțională și un confort termic constant datorită centralei proprii. Finisajele moderne și personalizabile îți oferă libertatea de a transforma fiecare colț într-un spațiu care reflectă stilul tău.
 
Curtea generoasă și aerisită este o invitație la relaxare în aer liber, iar grădina deschisă oferă intimitatea necesară pentru momente de liniște și reconectare cu natura. Accesul facil la școală, grădiniță și trattorie adaugă un plus de confort stilului de viață cotidian.
 
Aceasta nu este doar o casă, ci un refugiu pentru cei care își doresc să trăiască în armonie cu natura, fără a renunța la luxul și comoditățile moderne. Ideală pentru cei ce prețuiesc liniștea și un stil de viață eco-friendly, această proprietate promite să fie locul unde visele devin realitate.

Id intern: RR20056

Solicită vizionarea proprietății

Alege o zi disponibilă

27 Decembrie
28 Decembrie
29 Decembrie
30 Decembrie

Alege un interval orar

8:00 - 12:00
12:00 - 15:00
15:00 - 18:00
18:00 - 21:00

Următoarele date de contact oferite de tine vor fi accesibile proprietarului:

Locație

Contactează utilizatorul

ID: 4096722

Refugiu Elegant lângă Pădurea Snagov: Casa Visurilor Tale

5 camere | 170 m² | Bucuresti-Ilfov / Snagov

220.000 €