Florina Camberliu

Consultant imobiliar

Închiriere

500 m²

Rosetti, idel clinica,restaurant

Bucuresti-Ilfov / Bucuresti
8.500 €

Specificații

Preț negociabil Nu

Tip imobil Alte tipuri

Suprafața utilă 500 m²

Suprafață totală 500 m

An finalizare construcție 1930

Vitrină 20_0 m

Posibilitate parcare Nu

Stadiu construcție Finalizat

Tip tranzacție Închiriere

Tip vânzător Companie

Rosetti!, Imobilul este compus din doua corpuri separate, un subsol generos si doua curti libere (150mp si 30mp), oferind multiple posibilitati de configurare pentru a se potrivi exact nevoilor afacerii dumneavoastra:

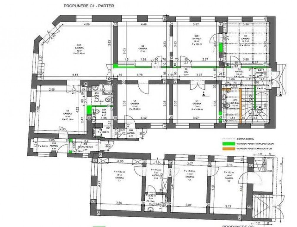
Plan parter:
Corp A – 215mp, cu 7 camere ideale pentru restaurant, cabinete medicale, camere sau birouri. Include un spatiu comercial cu acces la subsol si grup sanitar.
Corp B – 73mp, cu 3 camere pentru cabinete medicale, birouri sau bucataire..

Plan subsol:
197mp, un spatiu impresionant cu 4 cai de evacuare, pereti din caramida aparenta, arcade si bolte, perfect pentru evenimente, sali de sport sau alte activitati. In perioada interbelica, acest spatiu a fost utilizat ca crama, adaugand un plus de caracter si istorie.

Plan Pod Mansardabil:
215mp open space - se vor instala ferestre de mansarda tip velux si se pot amenaja birouri, spatii locative pentru muncitori extracomunitari, spatiu multifunctional
Chiria afisata se negociaza in functie de nivelul de amenajarea dorit si investitia pe care dumneavoastra o faceti in amenajare, asigurandu-ne ca obtineti cel mai bun aranjament pentru afacerea dumneavoastra.
Fatada va fi refacuta in cursul anului 2025.

Solicită vizionarea proprietății

Alege o zi disponibilă

27 Decembrie
28 Decembrie
29 Decembrie
30 Decembrie

Alege un interval orar

8:00 - 12:00
12:00 - 15:00
15:00 - 18:00
18:00 - 21:00

Următoarele date de contact oferite de tine vor fi accesibile proprietarului:

Locație

Despre zona "Unirii"

păreri exprimate de 76 de utilizatori, pe o scară de la 1 la 10

Află clasamentul acestui cartier
Sănătate și Siguranță

Sănătate și Siguranță

6.7

Sănătate 7.3

Siguranță 7.9

Calitate aer 5.4

Curățenie 6.5

Zone verzi 6.6

Cultură și Educație

Cultură și Educație

7.2

Cultură 7.3

Educație 7.1

Sport 7.1

Ambianță și Lifestyle

Ambianță și Lifestyle

7.3

Nivel de trai 7.4

Magazine 7.8

Localuri 8.6

Parcări 6.0

Zgomot 6.4

Transport în comun

Transport în comun

8.4

Autobuz 8.5

Tramvai 8.2

Metrou 8.4

Contactează utilizatorul

ID: 4011162

Rosetti, idel clinica,restaurant

500 m² | Bucuresti-Ilfov / Bucuresti

8.500 €