BLITZ Romania

Consultant imobiliar

Închiriere

532 m²

Spațiu birouri, 530 mp, Scala Center

Cluj / Cluj-Napoca
8.800 €

Specificații

Suprafața utilă 532 m²

An finalizare construcție 2018

Tip imobil Clădire de birouri

Clasă birouri A

Stadiu construcție Finalizat

Tip tranzacție Închiriere

Tip vânzător Companie

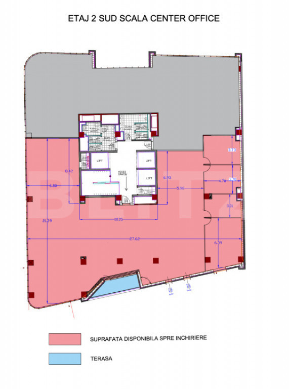
BLITZ propune spre închiriere un spațiu modern de 532,26 mp, situat la etajul 2 al clădirii Scala Center. Spațiul dispune de o terasă proprie de 12,15 mp și este compartimentat inteligent, oferind:
3 săli de ședințe
o bucătărie
zonă de lucru pentru aproximativ 45 de birouri individuale
Dotările includ sistem HVAC și climatizare din podea, asigurând confortul optim pentru angajați.

Facilități oferite de Scala Center:
Recepție dedicată și control acces angajați
Acces 24/7 pentru chiriași
Servicii de pază și mentenanță profesională
Terasă comună la ultimul etaj
Parcare subterană disponibilă

Beneficii spațiu:
Suprafață generoasă, ideală pentru companii medii și mari
Compartimentare modernă, ce îmbină birourile individuale cu spațiile de colaborare
Terasă proprie pentru relaxare sau întâlniri informale
Parte a unei clădiri de birouri de clasa A, finalizată în 2018, cu peste 6.500 mp disponibili

Scala Center este alegerea perfectă pentru firme care caută un sediu reprezentativ, modern și eficient, într-o zonă centrală și bine conectată a orașului.
Cod ofertă / ID BLITZ: P152049
Id intern: P152049

Solicită vizionarea proprietății

Alege o zi disponibilă

08 Decembrie
09 Decembrie
10 Decembrie
11 Decembrie

Alege un interval orar

8:00 - 12:00
12:00 - 15:00
15:00 - 18:00
18:00 - 21:00

Următoarele date de contact oferite de tine vor fi accesibile proprietarului:

Locație

Despre zona "Marasti"

păreri exprimate de 331 de utilizatori, pe o scară de la 1 la 10

Află clasamentul acestui cartier
Sănătate și Siguranță

Sănătate și Siguranță

7.1

Sănătate 7.3

Siguranță 7.9

Calitate aer 6.4

Curățenie 7.3

Zone verzi 6.7

Cultură și Educație

Cultură și Educație

7.3

Cultură 6.9

Educație 7.6

Sport 7.4

Ambianță și Lifestyle

Ambianță și Lifestyle

7.0

Nivel de trai 7.5

Magazine 8.1

Localuri 7.2

Parcări 5.4

Zgomot 6.6

Transport în comun

Transport în comun

7.0

Autobuz 8.1

Tramvai 5.9

Metrou 0.0

Contactează utilizatorul

ID: 4041172

Spațiu birouri, 530 mp, Scala Center

532 m² | Cluj / Cluj-Napoca

8.800 €


Vezi și alte anunțuri imobiliare
Apartamente închiriere Cluj-napoca-cj - Aeroport Case-vile închiriere Cluj-napoca-cj - Aeroport Garsoniere închiriere Cluj-napoca-cj - Aeroport Terenuri închiriere Cluj-napoca-cj - Aeroport Apartamente închiriere Cluj-napoca-cj - Andrei Muresanu Case-vile închiriere Cluj-napoca-cj - Andrei Muresanu Garsoniere închiriere Cluj-napoca-cj - Andrei Muresanu Terenuri închiriere Cluj-napoca-cj - Andrei Muresanu Apartamente închiriere Cluj-napoca-cj - Apahida Case-vile închiriere Cluj-napoca-cj - Apahida Garsoniere închiriere Cluj-napoca-cj - Apahida Terenuri închiriere Cluj-napoca-cj - Apahida