George Radu

Consultant imobiliar

Închiriere

139 m²

Spațiu Birouri | Piața română | În apropiere de stația

Bucuresti-Ilfov / Bucuresti
2.650 €

Specificații

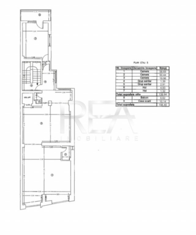
Suprafața utilă 139 m²

Suprafață totală 210 m

An finalizare construcție 2010

Tip imobil Clădire de birouri

Numărul de locuri de parcare 1

Stadiu construcție Finalizat

Tip tranzacție Închiriere

Tip vânzător Companie

R.E.A Imobiliare.

Spațiu de birouri finisat, pretabil pentru mai multe activități.
Spațiul are 139,64m2 utili și o terasă de 6,62m2. 
Este situat în centrul capitalei la doar 7 minute de stația de metrou Piața Romana.
Pentru mai multe detalii și informații vă rog să ne contactați specificând codul P7635
Id intern: P7635

Solicită vizionarea proprietății

Alege o zi disponibilă

07 Decembrie
08 Decembrie
09 Decembrie
10 Decembrie

Alege un interval orar

8:00 - 12:00
12:00 - 15:00
15:00 - 18:00
18:00 - 21:00

Următoarele date de contact oferite de tine vor fi accesibile proprietarului:

Locație

Despre zona "P-ta Romana"

păreri exprimate de 29 de utilizatori, pe o scară de la 1 la 10

Află clasamentul acestui cartier
Sănătate și Siguranță

Sănătate și Siguranță

7.1

Sănătate 8.2

Siguranță 8.3

Calitate aer 5.3

Curățenie 7.3

Zone verzi 6.5

Cultură și Educație

Cultură și Educație

7.3

Cultură 8.3

Educație 8.0

Sport 5.7

Ambianță și Lifestyle

Ambianță și Lifestyle

6.5

Nivel de trai 7.6

Magazine 6.8

Localuri 8.6

Parcări 4.4

Zgomot 5.3

Transport în comun

Transport în comun

8.6

Autobuz 9.2

Tramvai 7.7

Metrou 8.9

Contactează utilizatorul

ID: 3982602

Spațiu Birouri | Piața română | În apropiere de stația

139 m² | Bucuresti-Ilfov / Bucuresti

2.650 €


Vezi anunțuri și din categoriile