Gabriel Stancu

Consultant imobiliar

Vânzare

220 m²

Spatiu Comerceial , parter bloc nou construit , zona Nerva T

Bucuresti-Ilfov / Bucuresti
550.000 €

Rată estimată

12.050 Lei/lună

Avans (15%)

410.025 lei

Perioada împrumutului

30 ani

Specificații

Suprafața utilă 220 m²

Suprafață totală 250 m

An finalizare construcție 2025

Comision cumpărător 0%

Nu include TVA Da

Tip imobil Alte tipuri

Stadiu construcție Finalizat

Tip tranzacție Vânzare

Tip vânzător Companie

Spațiu comercial de 220 mp în zona Nerva Traian in cladire nou construita 2025 – ideal pentru restaurant, clinică sau showroom

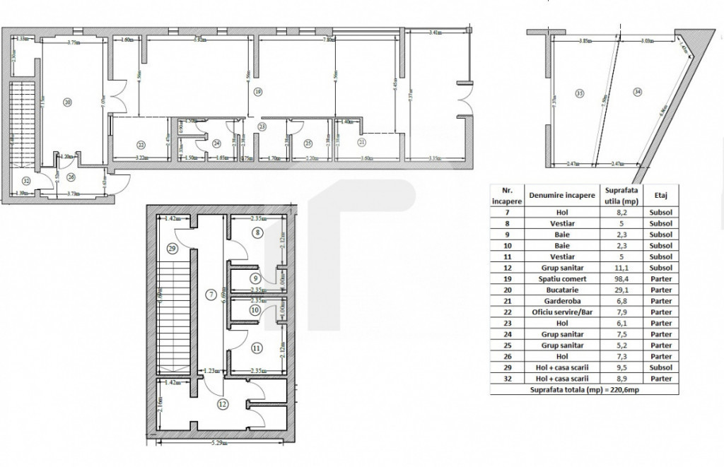
Vă prezentăm spre vânzare un spațiu comercial generos cu o suprafață totală utilă de 220,6 mp, situat în zona ultracentrală Nerva Traian, pe o stradă liniștită, cu acces facil la mijloace de transport, sedii de birouri și zone rezidențiale premium.

Compartimentare eficientă: 

Parter – 130,7 mp utili:
Spațiu principal de vânzare/comercial: 98,4 mp (încăperea 19)
Bucătărie complet separată: 7,4 mp
Garderobă: 6,8 mp
Oficiu servire/bar: 7,9 mp
Grupuri sanitare (dublu acces): 12,2 mp

Subsol – 34,6 mp utili:
Hol acces și vestiare personal
2 băi și un grup sanitar suplimentar (11,1 mp)

Acces dublu – intrare principală și secundară
Holuri + case scării: 15,3 mp


Ideal pentru:
Restaurante/cafenele (flux logic între spațiu de servire – oficiu – bucătărie)
Clinică medicală/stomatologică (compartimentare versatilă și grupuri sanitare multiple)
Showroom cu back-office/depozitare în subsol
Sediu firmă, co-working, beauty center

Caracteristici tehnice:
Clădire cu regim de înălțime Susol + Parter + 6 etaje
Spațiu vitrat pe întreaga lungime a fațadei (expunere excelentă)
Înălțime generoasă în zona comercială
Acces pietonal direct din stradă
Toate utilitățile disponibile (inclusiv gaze, 380V dacă este necesar)
Compartimentare ce permite adaptare ușoară în funcție de destinație

Localizare:
Zona Nerva Traian, la 5 minute de Piața Unirii și Timpuri Noi
Acces rapid la Splaiul Unirii, Bd. Octavian Goga, Bd. Decebal
Zonă cu trafic pietonal, birouri și blocuri locuite permanent
Se pot achizitona separat doua locuri de parcare.

Pretul este 2500 euro per mp plus TVA si se preda la GRI 

Id intern: GS19945

Solicită vizionarea proprietății

Alege o zi disponibilă

08 Decembrie
09 Decembrie
10 Decembrie
11 Decembrie

Alege un interval orar

8:00 - 12:00
12:00 - 15:00
15:00 - 18:00
18:00 - 21:00

Următoarele date de contact oferite de tine vor fi accesibile proprietarului:

Locație

Despre zona "Nerva Traian"

păreri exprimate de 36 de utilizatori, pe o scară de la 1 la 10

Află clasamentul acestui cartier
Sănătate și Siguranță

Sănătate și Siguranță

7.0

Sănătate 7.2

Siguranță 8.1

Calitate aer 6.2

Curățenie 7.3

Zone verzi 6.4

Cultură și Educație

Cultură și Educație

6.9

Cultură 6.0

Educație 7.9

Sport 6.9

Ambianță și Lifestyle

Ambianță și Lifestyle

7.0

Nivel de trai 7.4

Magazine 7.3

Localuri 7.3

Parcări 6.5

Zgomot 6.6

Transport în comun

Transport în comun

8.2

Autobuz 8.1

Tramvai 8.4

Metrou 8.1

Contactează utilizatorul

ID: 4083637

Spatiu Comerceial , parter bloc nou construit , zona Nerva T

220 m² | Bucuresti-Ilfov / Bucuresti

550.000 €