Consultant Record Imobiliare

Consultant imobiliar

Închiriere

37 m²

Spatiu comercial, 2 camere, terasa 23 mp, acces din terasa Apahida

Cluj / Apahida
500 €

Specificații

Suprafața utilă 37 m²

Suprafață totală 37 m

An finalizare construcție 2025

Tip imobil Alte tipuri

Stadiu construcție Finalizat

Număr încăperi 2

Comision cumpărător 50%

Posibilitate parcare Da

Numărul de locuri de parcare 1

Tip tranzacție Închiriere

Tip vânzător Companie

Spatiu comercial inscris in cartea funciara!

Locatie: Apahida, Ansamblul Estimo de pe str.Octavian Paler, bloc nou.

Parter cu acces direct din terasa dar si din casa scarii.

Se afla la prima inchiriere, peretii sunt zugraviti in lavabil alb, baia finisata, centrala termica proprie, incalzire prin pardoseala.

Pretabil pentru activitati de birou, proiectare, salon beauty, infrumusetare, magazin online.

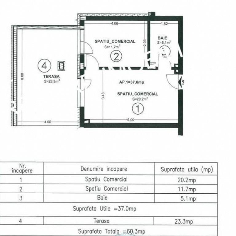
Compus din 2 camere, baie si terasa: suprafata utila 37 mp astfel: 20,2 mp+11,7 mp+baia 5,1 mp si TERASA 23,3 mp.

Dispune de un loc de parcare.

Pret de inchiriere 500 euro/luna.

Se inchiriaza prin Agentia Record Imobiliare comision 50%.

Solicită vizionarea proprietății

Alege o zi disponibilă

27 Decembrie
28 Decembrie
29 Decembrie
30 Decembrie

Alege un interval orar

8:00 - 12:00
12:00 - 15:00
15:00 - 18:00
18:00 - 21:00

Următoarele date de contact oferite de tine vor fi accesibile proprietarului:

Locație

Contactează utilizatorul

ID: 4092695

Spatiu comercial, 2 camere, terasa 23 mp, acces din terasa Apahida

37 m² | Cluj / Apahida

500 €