BLITZ Romania

Consultant imobiliar

Închiriere

333 m²

Spatiu comercial, 333 mp, zona Complexul Studentesc

Timis / Timisoara
3.500 €

Specificații

Suprafața utilă 333 m²

Tip imobil Alte tipuri

Stadiu construcție Finalizat

Tip tranzacție Închiriere

Tip vânzător Companie

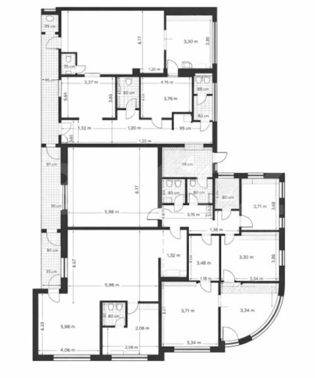
Blitz oferă spre închiriere un spațiu comercial generos, cu o suprafață utilă de 333 mp, compartimentat inteligent în 17 încăperi spațioase, potrivite pentru o varietate de activități. 

Imobilul dispune de 9 grupuri sanitare, cu posibilitatea de extindere sau reconfigurare, oferind flexibilitate pentru adaptarea la nevoile viitorului proprietar. Datorită compartimentării și facilităților existente, spațiul este ideal pentru clinică medicală, azil de bătrâni, birouri sau alte activități comerciale. În cazul unei achiziții pentru investiție, spațiul are un randament foarte bun, fiind peste 8%. Situat într-o zonă centrală, cu vad comercial, proprietatea beneficiază de vizibilitate excelentă și acces facil. Spațiul este renovat și dispune de mai multe fronturi stradale, ceea ce îl face ușor de accesat și atractiv pentru diverse tipuri de business. Caracteristici principale:
 • Suprafață utilă: 333 mp
 • 17 încăperi mari
 • 9 grupuri sanitare (cu posibilitate de extindere)
 • Compartimentare flexibilă
 • Spațiu renovat
 • Multiple fronturi stradale
 • Randament foarte bun
 • Zonă centrală cu vad comercial

 Pentru mai multe detalii sau programarea unei vizionări, nu ezitați să ne contactați.
Cod ofertă / ID BLITZ: P167537
Id intern: P167537

Solicită vizionarea proprietății

Alege o zi disponibilă

28 Aprilie
29 Aprilie
30 Aprilie
01 Mai

Alege un interval orar

8:00 - 12:00
12:00 - 15:00
15:00 - 18:00
18:00 - 21:00

Următoarele date de contact oferite de tine vor fi accesibile proprietarului:

Locație

Despre zona "Complex Studentesc"

păreri exprimate de 175 de utilizatori, pe o scară de la 1 la 10

Află clasamentul acestui cartier
Sănătate și Siguranță

Sănătate și Siguranță

7.0

Sănătate 7.3

Siguranță 7.1

Calitate aer 6.2

Curățenie 6.4

Zone verzi 7.8

Cultură și Educație

Cultură și Educație

7.4

Cultură 6.8

Educație 7.3

Sport 8.1

Ambianță și Lifestyle

Ambianță și Lifestyle

6.8

Nivel de trai 7.2

Magazine 7.5

Localuri 8.0

Parcări 5.1

Zgomot 6.0

Transport în comun

Transport în comun

7.5

Autobuz 7.4

Tramvai 7.5

Metrou 0.0

Contactează utilizatorul

ID: 4147907

Spatiu comercial, 333 mp, zona Complexul Studentesc

333 m² | Timis / Timisoara

3.500 €


Vezi și alte anunțuri imobiliare
Apartamente închiriere Timisoara-tm - Aeroport Case-vile închiriere Timisoara-tm - Aeroport Garsoniere închiriere Timisoara-tm - Aeroport Terenuri închiriere Timisoara-tm - Aeroport Apartamente închiriere Timisoara-tm - Aradului Case-vile închiriere Timisoara-tm - Aradului Garsoniere închiriere Timisoara-tm - Aradului Terenuri închiriere Timisoara-tm - Aradului Apartamente închiriere Timisoara-tm - Baba-Dochia Case-vile închiriere Timisoara-tm - Baba-Dochia Garsoniere închiriere Timisoara-tm - Baba-Dochia Terenuri închiriere Timisoara-tm - Baba-Dochia