Suprafața utilă 67 m²
Suprafață totală 79 m
An finalizare construcție 2025
Tip imobil Alte tipuri
Stadiu construcție Finalizat
Tip tranzacție Închiriere
Tip vânzător Companie
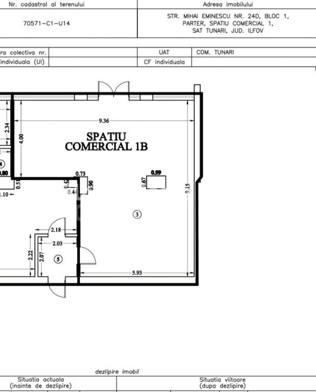
Silviu Birsan ^ Global Home Romania ^ Imobiliare Spațiu comercial cu o suprafață utilă de 67 MP, situat la parterul unui imobil finalizat în anul 2025, în cadrul complexului City Nord Tunari, amplasat în zona de nord a comunei Tunari. Complexul City Nord Tunari este un proiect rezidențial modern și elegant, aflat într-o zonă liniștită și bine dezvoltată, cu acces facil către principalele puncte de interes din nordul capitalei, precum și către autostrăzile A3 și A0, oferind un cadru ideal pentru desfășurarea activităților comerciale. Spațiul comercial se remarcă prin vizibilitate excelentă, având un front stradal de 9,36 ml, cu suprafață vitrată pe întreaga deschidere, realizată din geam termopan, ceea ce asigură lumină naturală din abundență și expunere optimă pentru orice tip de business. Imobilul dispune de două căi de acces, una principală din față și una secundară din spate, ideală pentru aprovizionare. În zonă sunt disponibile locuri de parcare, facilitând accesul atât pentru clienți, cât și pentru personal. Spațiul este potrivit pentru diverse activități comerciale, birouri, showroom, servicii sau alte funcțiuni similare. Pentru mai multe detalii, mă puteți contacta telefonic.___ Global Home Romania, este o firmă în schimbare de jocuri pe piață imobiliară din România ce se afla intr-o expansiune rapidă. Modelul personalizat avand la baza tehnologia digitala, inteligenta artificala și interacțiune umană alături de colaboratorii firmei, inspiră constant încredere. Având o abordare de marketing profesională și îndrăzneță a ridicat atenția asupra modului în care oamenii se gândesc la imobiliare in Romania. Global Home Romania, companie imobiliara infiintata in 2020 ce continuă să se dezvolte cu succes în domeniu, reușind să atraga constant parteneri și colaboratori de încredere. Cu sediul în București, Global Home Romania, a apărut ca o firmă imobiliară de încredere ce își propune constant să livreze servicii de calitate. Misiunea Global Home Romania în piața imobiliară, este aceea de a stabili un raport solid bazat pe încredere și profesionalism între reprezentantii nostri imobiliari bine informati impreuna cu toti clientii si colaboratorii companiei. Id intern: P16762
Alege o zi disponibilă
Alege un interval orar
ID: 4117643
Spatiu Comercial 67 MP | City Nord Tunari | Front stradal 9,
67 m² | Bucuresti-Ilfov / Tunari
1.340 €
179.000 eur
4 camere | 136 m² | Bucuresti-Ilfov / Tunari
Tunari / Bucuresti-Ilfov
1.340 eur
67 m² | Bucuresti-Ilfov / Tunari
Tunari / Bucuresti-Ilfov
1.340 eur
67 m² | Bucuresti-Ilfov / Tunari
Tunari / Bucuresti-Ilfov
650 eur
2 camere | 60 m² | Bucuresti-Ilfov / Tunari
Tunari / Bucuresti-Ilfov