Laurentiu

Consultant imobiliar

Închiriere

80 m²

Spațiu comercial 80 mp, ideal medical sau alimentație, în zona Terra

Cluj / Floresti
1.000 €

Specificații

Suprafața utilă 80 m²

Suprafață totală 120 m

An finalizare construcție 2012

Tip imobil Alte tipuri

Stadiu construcție Finalizat

Înălțime spațiu 3 m

Număr încăperi 3

Posibilitate parcare Da

Numărul de locuri de parcare 2

Tip tranzacție Închiriere

Tip vânzător Companie

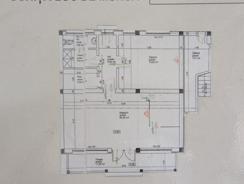
EDIL Florești vă propune spre închiriere un spațiu comercial deosebit, cu 80 mp utili, situat într-una dintre cele mai circulate și vizibile zone ale Floreștiului – zona Terra. Poziționat stradal, la parterul unei construcții moderne (P+E+M), acest spațiu beneficiază de un vad pietonal și auto excelent, fiind amplasat în proximitatea stațiilor de autobuz, blocurilor de locuințe, caselor și a numeroaselor puncte de interes din zonă.

Cu o înălțime interioară de 3 metri, spațiul se pretează ideal pentru activități de alimentație publică (mini-restaurant, delivery ) sau pentru cabinete medicale, stomatologice, de recuperare, sau alte servicii din sfera medicală, înălțimea generoasă permițând amenajări conforme normativelor în vigoare. Structura open space este completată de o baie modernă, o debara pentru depozitare și o terasă exterioară, perfectă pentru clienți sau extindere a activității.

Spațiul este finisat cu materiale de calitate superioară, inclusiv gresie și faianță moderne, iar confortul este asigurat prin încălzire în pardoseală cu centrală proprie. Alte dotări includ: geamuri termopan, ușă PVC, sistem de supraveghere video, iluminat cu lămpi LED, acces auto și loc de parcare inclus, precum și toate utilitățile necesare (apă, gaz, curent, canalizare, internet). Curtea comună oferă un acces facil și suplimentar potențialului comercial.

Disponibil imediat, acest spațiu este o alegere excelentă pentru profesioniști care caută vizibilitate, funcționalitate și accesibilitate într-un mediu modern și bine poziționat.

Pentru mai multe detalii și vizionări, vă așteptăm la sediul nostru:
EDIL Florești – Str. Eroilor, Nr. 25, Ap. 15 (et. 1)
Contact: 0771 718 238
ID intern: SCCJ246466

Solicită vizionarea proprietății

Alege o zi disponibilă

07 Decembrie
08 Decembrie
09 Decembrie
10 Decembrie

Alege un interval orar

8:00 - 12:00
12:00 - 15:00
15:00 - 18:00
18:00 - 21:00

Următoarele date de contact oferite de tine vor fi accesibile proprietarului:

Locație

Contactează utilizatorul

ID: 3991895

Spațiu comercial 80 mp, ideal medical sau alimentație, în zona Terra

80 m² | Cluj / Floresti

1.000 €