Cristi Stroe

Consultant imobiliar

Închiriere

464 m²

Spațiu comercial de închiriat P+1 – 464 mp, open space,

Constanta / Constanta
5.000 €

Specificații

Suprafața utilă 464 m²

Suprafață totală 500 m

An finalizare construcție 2010

Numărul de locuri de parcare 5-10

Comision cumpărător 50%

Nu include TVA Da

Tip imobil Alte tipuri

Stadiu construcție Finalizat

Tip tranzacție Închiriere

Tip vânzător Companie

Spațiu comercial generos, situat în zona Casa de Cultură, una dintre cele mai active și bine conectate zone ale orașului, cu trafic pietonal și auto intens. Poziționarea oferă vizibilitate bună și acces facil către principalele artere, fiind potrivit pentru activități comerciale, showroom, clinică, sală de fitness, birouri sau centru de servicii.

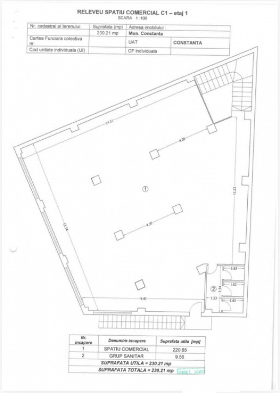
Imobilul este dispus pe parter și etaj, având o suprafață totală de 464 mp, configurată open space, ceea ce permite amenajarea și compartimentarea spațiului în funcție de necesitățile viitorului chiriaș.

Suprafața generoasă și compartimentarea flexibilă oferă multiple posibilități de organizare, fiind ideală pentru afaceri care necesită spațiu amplu pentru activitate, prezentare sau interacțiune cu clienții.

Proprietatea beneficiază de 5 locuri de parcare, un avantaj important pentru angajați și clienți.

Datorită dimensiunii, configurației și poziționării într-o zonă cu acces facil la transport și puncte de interes, spațiul reprezintă o opțiune potrivită pentru dezvoltarea unei afaceri într-o zonă bine cotată a orașului.
Id intern: P3470

Solicită vizionarea proprietății

Alege o zi disponibilă

22 Aprilie
23 Aprilie
24 Aprilie
25 Aprilie

Alege un interval orar

8:00 - 12:00
12:00 - 15:00
15:00 - 18:00
18:00 - 21:00

Următoarele date de contact oferite de tine vor fi accesibile proprietarului:

Locație

Despre zona "Casa de Cultura"

păreri exprimate de 169 de utilizatori, pe o scară de la 1 la 10

Află clasamentul acestui cartier
Sănătate și Siguranță

Sănătate și Siguranță

7.0

Sănătate 7.4

Siguranță 7.4

Calitate aer 6.3

Curățenie 6.9

Zone verzi 7.2

Cultură și Educație

Cultură și Educație

7.1

Cultură 7.0

Educație 7.5

Sport 6.8

Ambianță și Lifestyle

Ambianță și Lifestyle

6.7

Nivel de trai 6.8

Magazine 7.9

Localuri 7.3

Parcări 5.4

Zgomot 6.3

Transport în comun

Transport în comun

8.1

Autobuz 8.1

Tramvai 0.0

Metrou 0.0

Contactează utilizatorul

ID: 4141147

Spațiu comercial de închiriat P+1 – 464 mp, open space,

464 m² | Constanta / Constanta

5.000 €


Vezi și alte anunțuri imobiliare
Apartamente închiriere Constanta-ct - Abator Case-vile închiriere Constanta-ct - Abator Garsoniere închiriere Constanta-ct - Abator Terenuri închiriere Constanta-ct - Abator Apartamente închiriere Constanta-ct - Anadolchioi Case-vile închiriere Constanta-ct - Anadolchioi Garsoniere închiriere Constanta-ct - Anadolchioi Terenuri închiriere Constanta-ct - Anadolchioi Apartamente închiriere Constanta-ct - Ancora Case-vile închiriere Constanta-ct - Ancora Garsoniere închiriere Constanta-ct - Ancora Terenuri închiriere Constanta-ct - Ancora