BLITZ Romania

Consultant imobiliar

Vânzare

79 m²

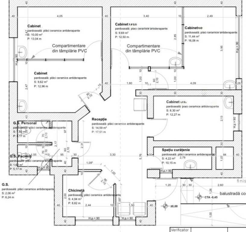
Spatiu comercial medical, 79.2 mp utili, zona Centru - Facul

Dolj / Craiova
270.000 €

Rată estimată

5.840 Lei/lună

Avans (15%)

201.285 lei

Perioada împrumutului

30 ani

Specificații

Suprafața utilă 79 m²

Tip imobil Alte tipuri

Stadiu construcție Finalizat

Tip tranzacție Vânzare

Tip vânzător Companie

Blitz va propune spre achizitie in exclusivitate cu 0% comision la cumparator, spatiu comercial cu destinatie medicala, situat stradal, in zona Facultatii de Medicina, pe bulevardul Gheorghe Chitu.


Spatiul este situat la parter si are intrare separata, fiind renovat integral in anul 2021 conform normelor in vigoare.
Constructie solida din caramida cu geamuri termopan, incalzire prin pardoseala, centrala proprie pe gaz prin condensare si sistem de ventilatie cu recuperare de caldura SABIANA, reprezinta doar cativa dintre factorii principali de confort ai spatiului in  care iti poti desfasura imediat activitatea medicala.

Se vinde mobilat utilat si este disponibil imediat.
Va asteptam cu drag la vizionare!

Cod ofertă / ID BLITZ: P160647
Id intern: P160647

Solicită vizionarea proprietății

Alege o zi disponibilă

15 Februarie
16 Februarie
17 Februarie
18 Februarie

Alege un interval orar

8:00 - 12:00
12:00 - 15:00
15:00 - 18:00
18:00 - 21:00

Următoarele date de contact oferite de tine vor fi accesibile proprietarului:

Locație

Despre zona "George Enescu"

păreri exprimate de 76 de utilizatori, pe o scară de la 1 la 10

Află clasamentul acestui cartier
Sănătate și Siguranță

Sănătate și Siguranță

7.3

Sănătate 6.8

Siguranță 8.1

Calitate aer 7.3

Curățenie 7.5

Zone verzi 6.7

Cultură și Educație

Cultură și Educație

7.0

Cultură 6.3

Educație 7.9

Sport 6.8

Ambianță și Lifestyle

Ambianță și Lifestyle

7.2

Nivel de trai 7.5

Magazine 7.3

Localuri 7.0

Parcări 6.3

Zgomot 7.7

Transport în comun

Transport în comun

7.6

Autobuz 8.1

Tramvai 7.1

Metrou 0.0

Contactează utilizatorul

ID: 4103069

Spatiu comercial medical, 79.2 mp utili, zona Centru - Facul

79 m² | Dolj / Craiova

270.000 €


Vezi și alte anunțuri imobiliare
Apartamente vânzare Craiova-dj - 1 Mai Case-vile vânzare Craiova-dj - 1 Mai Garsoniere vânzare Craiova-dj - 1 Mai Terenuri vânzare Craiova-dj - 1 Mai Apartamente vânzare Craiova-dj - 2Cornitoiu Case-vile vânzare Craiova-dj - 2Cornitoiu Garsoniere vânzare Craiova-dj - 2Cornitoiu Terenuri vânzare Craiova-dj - 2Cornitoiu Apartamente vânzare Craiova-dj - Aeroport Case-vile vânzare Craiova-dj - Aeroport Garsoniere vânzare Craiova-dj - Aeroport Terenuri vânzare Craiova-dj - Aeroport