BLITZ Romania

Consultant imobiliar

Închiriere

96 m²

Spațiu comercial premium – 96 mp – Parter – Acces str

Dambovita / Targoviste
800 €

Specificații

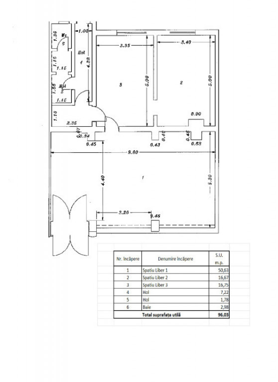
Suprafața utilă 96 m²

Nu include TVA Da

Tip imobil Alte tipuri

Stadiu construcție Finalizat

Tip tranzacție Închiriere

Tip vânzător Companie

Blitz vă oferă spre închiriere spațiu comercial de calitate superioară, cu suprafață utilă de 96 mp, amplasat la parterul unui imobil, cu acces direct din stradă și vizibilitate foarte bună.
Spațiul a funcționat anterior ca sediu bancar (BCR), beneficiind de o structură solidă, instalații dimensionate pentru activități profesionale și fluxuri funcționale eficiente.
Pretabil pentru o gamă diversă de activități: Farmacie, Cabinet medical, Cabinet stomatologic, Activități de Comerț sau Servicii, Alimentație publică, Salon Cosmetică etc.

Compartimentare funcțională și flexibilă:
•	3 încăperi
•	hol de acces
•	grup sanitar propriu
Dotări tehnice:
•	climatizare profesională prin tavan cu 4 unități Daikin
•	încălzire cu centrală termică proprie pe gaz
•	alimentare electrică trifazică (380 V)
•	două intrări: acces principal clienți + acces secundar aprovizionare/logistică
Beneficiu important:
Proprietarul (persoană juridică) este deschis să participe la costurile de reamenajare, în funcție de cerințele și standardele chiriașului.
Anterior acest spațiu a fost utilizat pentru activități de brutărie/patiserie
???? Spațiu este potrivit pentru activități ce necesită imagine profesională/comercială, acces facil și infrastructură tehnică solidă.
Pentru informații suplimentare și programarea unei vizionări, vă stăm la dispoziție.

Cod ofertă / ID BLITZ: P163495
Id intern: P163495

Solicită vizionarea proprietății

Alege o zi disponibilă

07 Februarie
08 Februarie
09 Februarie
10 Februarie

Alege un interval orar

8:00 - 12:00
12:00 - 15:00
15:00 - 18:00
18:00 - 21:00

Următoarele date de contact oferite de tine vor fi accesibile proprietarului:

Locație

Contactează utilizatorul

ID: 4125010

Spațiu comercial premium – 96 mp – Parter – Acces str

96 m² | Dambovita / Targoviste

800 €


Vezi și alte anunțuri imobiliare
Apartamente închiriere Targoviste-db - Aleea Trandafirilor Case-vile închiriere Targoviste-db - Aleea Trandafirilor Garsoniere închiriere Targoviste-db - Aleea Trandafirilor Terenuri închiriere Targoviste-db - Aleea Trandafirilor Apartamente închiriere Targoviste-db - Centura Case-vile închiriere Targoviste-db - Centura Garsoniere închiriere Targoviste-db - Centura Terenuri închiriere Targoviste-db - Centura Apartamente închiriere Targoviste-db - Cetate Case-vile închiriere Targoviste-db - Cetate Garsoniere închiriere Targoviste-db - Cetate Terenuri închiriere Targoviste-db - Cetate