BLITZ Romania

Consultant imobiliar

Închiriere

219 m²

Spațiu Comercial- Restaurant Ultracentral- Parter + Etajul

Timis / Timisoara
3.500 €

Specificații

Suprafața utilă 219 m²

Tip imobil Alte tipuri

Stadiu construcție Finalizat

Tip tranzacție Închiriere

Tip vânzător Companie

An finalizare construcție 1902

Blitz vă oferă spre închiriere un spațiu comercial de excepție, situat ultracentral în Timișoara, într-o clădire cu personalitate. 
Este locul ideal pentru un concept de tip Restaurant – Lounge Coffee & Cocktail Bar, cu facilități rare și un trecut istoric de neegalat.

Construită în 1902 și cosmetizata recent la standarde europene.  
Fațada a fost restaurată cu grijă, păstrând farmecul și elementele arhitecturale originale, redau prestigiul de odinioară al locului.

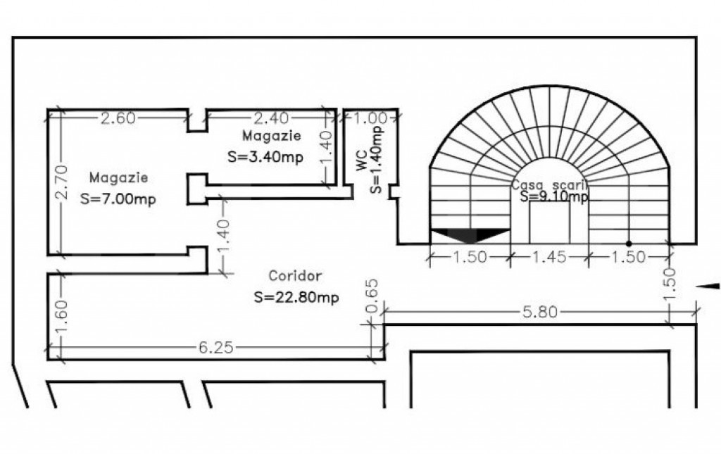
* Structura spațiului – total util: 219 mp utili

* Parter (43,70 mp) – zonă de recepție + cameră tehnică/debara + wc serviciu

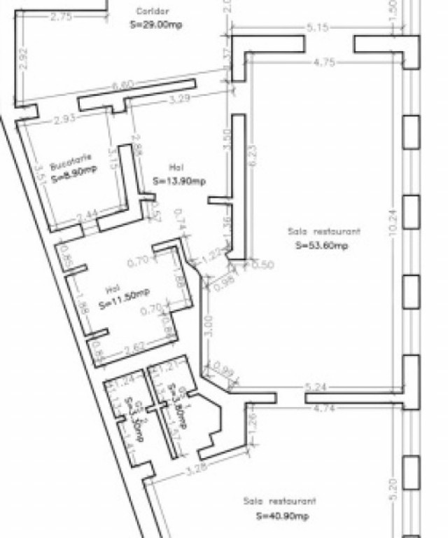
* Etaj 1 (173 mp) – zonă restaurant cu view panoramic, bucătărie spațioasă, 2 saloane + 2 grupuri sanitare (F/M)


!!! Imaginile prezentate au caracter orientativ și includ elemente de recuzită (mobilier, plante și alte accesorii) realizate sub formă de randări, cu scopul de a evidenția potențialul spațiului și de a oferi o perspectivă cât mai sugestivă asupra modului în care acesta poate fi amenajat. 
În realitate, spațiul se prezintă într-o stare bună, oferind însă posibilitatea de personalizare prin cosmetizare și îmbunătățiri, în funcție de domeniul de activitate !!!

Schitele prezentate reflectă realitatea și dimensiunile exacte ale spațiului. 


Te invităm să descoperi spațiul – contactează-ne pentru o vizionare!
Cod ofertă / ID BLITZ: P144630
Id intern: P144630

Solicită vizionarea proprietății

Alege o zi disponibilă

02 Aprilie
03 Aprilie
04 Aprilie
05 Aprilie

Alege un interval orar

8:00 - 12:00
12:00 - 15:00
15:00 - 18:00
18:00 - 21:00

Următoarele date de contact oferite de tine vor fi accesibile proprietarului:

Locație

Staţii de tramvai

Libertății 208 metri

Libertății 209 metri

Hotel Continental 323 metri

Staţii de autobuz

Staţie autobuz 142 metri

Staţie autobuz 185 metri

Staţie autobuz 351 metri

Contactează utilizatorul

ID: 3960562

Spațiu Comercial- Restaurant Ultracentral- Parter + Etajul

219 m² | Timis / Timisoara

3.500 €


Vezi și alte anunțuri imobiliare
Apartamente închiriere Timisoara-tm - Aeroport Case-vile închiriere Timisoara-tm - Aeroport Garsoniere închiriere Timisoara-tm - Aeroport Terenuri închiriere Timisoara-tm - Aeroport Apartamente închiriere Timisoara-tm - Aradului Case-vile închiriere Timisoara-tm - Aradului Garsoniere închiriere Timisoara-tm - Aradului Terenuri închiriere Timisoara-tm - Aradului Apartamente închiriere Timisoara-tm - Baba-Dochia Case-vile închiriere Timisoara-tm - Baba-Dochia Garsoniere închiriere Timisoara-tm - Baba-Dochia Terenuri închiriere Timisoara-tm - Baba-Dochia