Florica Snop

Consultant imobiliar

Închiriere

266 m²

Spatiu comercial sau birouri in Turnisor la parter cu vad st

Sibiu / Sibiu
5.320 €

Specificații

Suprafața utilă 266 m²

Suprafață totală 319 m

An finalizare construcție 2000

Tip imobil Alte tipuri

Stadiu construcție Finalizat

Comision cumpărător 50%

Tip tranzacție Închiriere

Tip vânzător Companie

Vad comercial excelent de unde este imposibil ca magazinul tau sa nu fie vazut. 
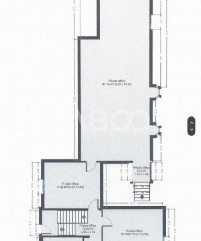
Spatiu comercial de inchiriat intr-un imobil cu regim mic de inaltime (parter si 1 etaj). Suprafata utila este de 266 mp si este compus din 10 camere mari si luminoase, cate o baie pe nivel, locuri de parcare publice in spatele blocului, cu acces imediat la statiile de autobuz, amplasat pe o strada foarte circulata din zona Turnisor, Sibiu. Poate fi folosit atat comercial cat si spatiu de birouri.
Spatiul permite o gama larga de activitati, cum ar fi call center, firma cu activitate in domeniul IT, gradinita sau cabinete medicale, avocati, notari, dar si altele.
A fost renovat acum cativa ani, insa finisajele se pot upgrada si realiza dupa nevoile dumneavoastra. Ca si clienti, va puteti personaliza spatiul unde o sa lucrati.
Podeaua este de beton, iar baile sunt finisate cu gresie si faianta. Incalzirea se realizeaza prin centrala proprie.
Imobilul este racordat la toate utilitatile.
In acest imobil totul poate fi fructificat, parterul si etajul oferind suficient spatiu.
 
Pret: 5.320€
Cod ofertă / ID: P19997
Sună-ne acum la 0784.530.613 și află detalii despre această proprietate de inchiriat din Sibiu, dar și despre alte proprietăți potrivite pentru tine.


Informatii speciale:
1. Descarcă aplicația pe mobilul tau "TABOO Imobiliare" din Apple Store, Google Play sau Huawei AppGallery pentru a afla instantaneu noile proprietăți care intră pe piață.
2. Dacă ai o proprietate pe care vrei să o vinzi sau să o închiriezi, suntem aici pentru tine!
Contactează-ne pentru o evaluare gratuită fără obligații și vei descoperi avantajele de a lucra cu o echipă dedicată și experimentată.
3. Dacă vrei sa incepi o cariera de agent imobiliar, suna la 0784.530.613 si programeaza o intalnire pentru a afla toate beneficiile si avantajele.

Intră pe TABOO.ro și descoperă cele mai recente oferte, actualizate zilnic.
Anunt actualizat in 19 decembrie 2025.
Id intern: P19997

Solicită vizionarea proprietății

Alege o zi disponibilă

28 Decembrie
29 Decembrie
30 Decembrie
31 Decembrie

Alege un interval orar

8:00 - 12:00
12:00 - 15:00
15:00 - 18:00
18:00 - 21:00

Următoarele date de contact oferite de tine vor fi accesibile proprietarului:

Locație

Despre zona "Turnisor"

păreri exprimate de 100 de utilizatori, pe o scară de la 1 la 10

Află clasamentul acestui cartier
Sănătate și Siguranță

Sănătate și Siguranță

6.7

Sănătate 6.0

Siguranță 7.6

Calitate aer 7.0

Curățenie 7.2

Zone verzi 5.6

Cultură și Educație

Cultură și Educație

5.6

Cultură 5.3

Educație 5.9

Sport 5.7

Ambianță și Lifestyle

Ambianță și Lifestyle

6.7

Nivel de trai 7.5

Magazine 7.1

Localuri 6.0

Parcări 5.9

Zgomot 7.2

Transport în comun

Transport în comun

7.6

Autobuz 7.6

Tramvai 0.0

Metrou 0.0

Contactează utilizatorul

ID: 3585546

Spatiu comercial sau birouri in Turnisor la parter cu vad st

266 m² | Sibiu / Sibiu

5.320 €


Vezi și alte anunțuri imobiliare
Apartamente închiriere Sibiu-sb - Aeroport Case-vile închiriere Sibiu-sb - Aeroport Garsoniere închiriere Sibiu-sb - Aeroport Terenuri închiriere Sibiu-sb - Aeroport Apartamente închiriere Sibiu-sb - Broscarie Case-vile închiriere Sibiu-sb - Broscarie Garsoniere închiriere Sibiu-sb - Broscarie Terenuri închiriere Sibiu-sb - Broscarie Apartamente închiriere Sibiu-sb - Calea Cisnadiei Case-vile închiriere Sibiu-sb - Calea Cisnadiei Garsoniere închiriere Sibiu-sb - Calea Cisnadiei Terenuri închiriere Sibiu-sb - Calea Cisnadiei