Georgiana Lixandru

Consultant imobiliar

Închiriere

3200 m²

Spatiu Comercial | Valea Cascadelor

Bucuresti-Ilfov / Bucuresti
48.000 €

Specificații

Suprafața utilă 3200 m²

Suprafață totală 3840 m

Tip imobil Alte tipuri

Stadiu construcție Finalizat

Tip tranzacție Închiriere

Tip vânzător Companie

Nu include TVA Da

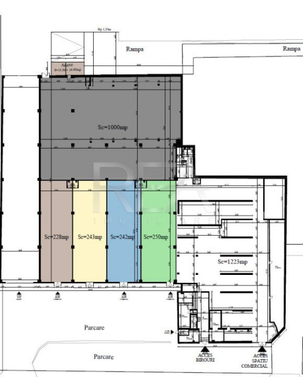
R.E.A. Imobiliare Spatiu Comercial, cu o suprafata foarte mare, versatil, ideal pentru activități economice variate , cu o suprafata disponibila - aproximativ 3200mp ce poate fi divizat intre mai multi chiriasi - plan atasat. Locatia este poziționata strategic, intr-o zona cu flux constant de potențiali clienți, cu vizibilitate buna, pe unul din cele mai mari bulevarde ale orașului. Chirie - 15Eur+TVA/mp. Curent electric trifazic -bransament si instalatie electrica functionale. Pentru detalii si vizionari, vă rugăm să ne contactați, specificand codul de identificare 4775.

Id intern: P4775

Solicită vizionarea proprietății

Alege o zi disponibilă

28 Decembrie
29 Decembrie
30 Decembrie
31 Decembrie

Alege un interval orar

8:00 - 12:00
12:00 - 15:00
15:00 - 18:00
18:00 - 21:00

Următoarele date de contact oferite de tine vor fi accesibile proprietarului:

Locație

Despre zona "Militari"

păreri exprimate de 931 de utilizatori, pe o scară de la 1 la 10

Află clasamentul acestui cartier
Sănătate și Siguranță

Sănătate și Siguranță

6.3

Sănătate 6.7

Siguranță 7.4

Calitate aer 5.6

Curățenie 6.4

Zone verzi 5.5

Cultură și Educație

Cultură și Educație

6.5

Cultură 5.7

Educație 7.2

Sport 6.7

Ambianță și Lifestyle

Ambianță și Lifestyle

6.6

Nivel de trai 6.8

Magazine 8.1

Localuri 7.1

Parcări 4.7

Zgomot 6.1

Transport în comun

Transport în comun

7.8

Autobuz 8.1

Tramvai 7.1

Metrou 8.0

Contactează utilizatorul

ID: 3749562

Spatiu Comercial | Valea Cascadelor

3200 m² | Bucuresti-Ilfov / Bucuresti

48.000 €