BLITZ Romania

Consultant imobiliar

Închiriere

135 m²

Spațiu de birouri modern 135 mp, renovat recent, parcare, i

Iasi / Iasi
1.550 €

Specificații

Suprafața utilă 135 m²

Tip imobil Clădire de birouri

Numărul de locuri de parcare 2

Clasă birouri C

Stadiu construcție Finalizat

Tip tranzacție Închiriere

Tip vânzător Companie

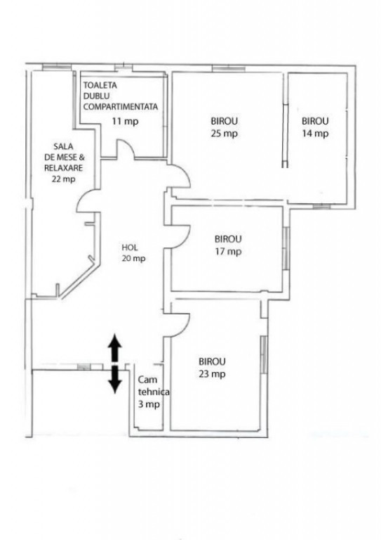
BLITZ vă propune spre închiriere un spațiu de birouri modern, cu suprafața utilă de 135 mp, situat într-o clădire de birouri din zona Tudor Vladimirescu, vizavi de Iulius Mall una dintre cele mai accesibile și dinamice zone de business din Iași.

Spațiul a fost proaspăt renovat și este ideal pentru companii din domenii precum IT, servicii, consultanță, contabilitate sau activități administrative.

Compartimentarea este eficientă și practică, fiind alcătuită din birouri separate și sală de ședință, oferind un mediu de lucru confortabil și organizat pentru echipă.

Caracteristici:

suprafață utilă: 135 mp

birouri separate + sală de ședință

spațiu recent renovat

aer condiționat

centrală termică

spațiu luminos, potrivit pentru activități de birou

2–3 locuri de parcare disponibile

situat într-o clădire de birouri

Zona oferă acces facil către principalele puncte de interes ale orașului, mijloace de transport, restaurante și zone comerciale.

 Preț chirie: 1.550 € / lună

Pentru mai multe informații sau pentru programarea unei vizionări, vă stăm cu drag la dispoziție.
Cod ofertă / ID BLITZ: P166133
Id intern: P166133

Solicită vizionarea proprietății

Alege o zi disponibilă

07 Martie
08 Martie
09 Martie
10 Martie

Alege un interval orar

8:00 - 12:00
12:00 - 15:00
15:00 - 18:00
18:00 - 21:00

Următoarele date de contact oferite de tine vor fi accesibile proprietarului:

Locație

Despre zona "Tudor Vladimirescu"

păreri exprimate de 71 de utilizatori, pe o scară de la 1 la 10

Află clasamentul acestui cartier
Sănătate și Siguranță

Sănătate și Siguranță

6.3

Sănătate 6.5

Siguranță 7.2

Calitate aer 5.8

Curățenie 6.5

Zone verzi 5.4

Cultură și Educație

Cultură și Educație

7.0

Cultură 6.9

Educație 7.0

Sport 7.0

Ambianță și Lifestyle

Ambianță și Lifestyle

6.5

Nivel de trai 6.4

Magazine 7.5

Localuri 7.8

Parcări 5.1

Zgomot 5.7

Transport în comun

Transport în comun

8.3

Autobuz 8.3

Tramvai 8.4

Metrou 0.0

Contactează utilizatorul

ID: 4139911

Spațiu de birouri modern 135 mp, renovat recent, parcare, i

135 m² | Iasi / Iasi

1.550 €


Vezi și alte anunțuri imobiliare
Apartamente închiriere Iasi-is - Aeroport Case-vile închiriere Iasi-is - Aeroport Garsoniere închiriere Iasi-is - Aeroport Terenuri închiriere Iasi-is - Aeroport Apartamente închiriere Iasi-is - Aleea cu Ciresi Case-vile închiriere Iasi-is - Aleea cu Ciresi Garsoniere închiriere Iasi-is - Aleea cu Ciresi Terenuri închiriere Iasi-is - Aleea cu Ciresi Apartamente închiriere Iasi-is - Aleea Tudor Neculai Case-vile închiriere Iasi-is - Aleea Tudor Neculai Garsoniere închiriere Iasi-is - Aleea Tudor Neculai Terenuri închiriere Iasi-is - Aleea Tudor Neculai