BLITZ Romania

Consultant imobiliar

Vânzare

140 m²

Spatiu medical, 145 mp utili, D+P, la cheie, zona centrala!

Dolj / Craiova
390.000 €

Rată estimată

8.545 Lei/lună

Avans (15%)

290.745 lei

Perioada împrumutului

30 ani

Specificații

Suprafața utilă 140 m²

Numărul de locuri de parcare 1

Tip imobil Alte tipuri

Stadiu construcție Finalizat

Tip tranzacție Vânzare

Tip vânzător Companie

Suprafață totală 150 m

An finalizare construcție 2025

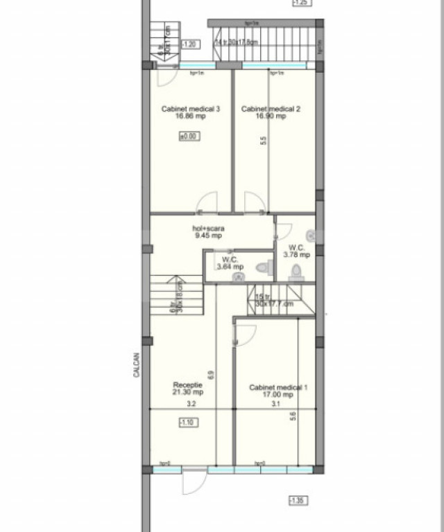
BLITZ oferă spre spre vânzare spatiu comercial D+P, cu destinatie medicala, amenajat ultramodern, situat la parterul unei cladiri noi, autorizata ca CENTRU MEDICAL situata intr-o pozitie centrala de exceptie cu vad și flux intens. 
Spațiul este compus din demisol și parter, cu o suprafață utilă 140 mp, din care 51 mp la demisol(cabinet medical, hol+CS, toaleta si camera de sterilizat+ depoziatre)si 89 mp la parter(3 cabinete, hol, 2 toalete si receptie).
Spatiul va fi dotat cu: Tamplarie din gama Premium; Incalzire prin centrala termica individuala , finisaje partial personalizabile. 
Imobilul se afla in etapa in care poate fi personalizat pe gustul cumparatorului. Exista posibilitatea de mici modificari de compartimentare si pachetele de finisaje care se achizitioneaza.
În proximitatea spatiului se afla: strada Calea Bucuresti, farmacii, Piata Centrala, cabinete notariale, judecătoria și multe alte puncte de interes din zona centrală. 
Proiectul beneficiaza de locuri de parcare cu acces facil in incinta, ascensor de persoane, dar și diverse alte facilitati. . Cu mai multe detalii va așteptăm cu drag la vizionare!

Cod ofertă / ID BLITZ: P97676
Id intern: P97676

Solicită vizionarea proprietății

Alege o zi disponibilă

27 Decembrie
28 Decembrie
29 Decembrie
30 Decembrie

Alege un interval orar

8:00 - 12:00
12:00 - 15:00
15:00 - 18:00
18:00 - 21:00

Următoarele date de contact oferite de tine vor fi accesibile proprietarului:

Locație

Despre zona "Calea Bucuresti"

păreri exprimate de 215 de utilizatori, pe o scară de la 1 la 10

Află clasamentul acestui cartier
Sănătate și Siguranță

Sănătate și Siguranță

7.1

Sănătate 7.6

Siguranță 7.6

Calitate aer 6.2

Curățenie 7.1

Zone verzi 7.1

Cultură și Educație

Cultură și Educație

7.8

Cultură 7.8

Educație 8.2

Sport 7.3

Ambianță și Lifestyle

Ambianță și Lifestyle

7.2

Nivel de trai 7.1

Magazine 8.2

Localuri 8.5

Parcări 6.2

Zgomot 6.2

Transport în comun

Transport în comun

8.3

Autobuz 8.4

Tramvai 8.3

Metrou 0.0

Contactează utilizatorul

ID: 3644604

Spatiu medical, 145 mp utili, D+P, la cheie, zona centrala!

140 m² | Dolj / Craiova

390.000 €


Vezi și alte anunțuri imobiliare
Apartamente vânzare Craiova-dj - 1 Mai Case-vile vânzare Craiova-dj - 1 Mai Garsoniere vânzare Craiova-dj - 1 Mai Terenuri vânzare Craiova-dj - 1 Mai Apartamente vânzare Craiova-dj - 2Cornitoiu Case-vile vânzare Craiova-dj - 2Cornitoiu Garsoniere vânzare Craiova-dj - 2Cornitoiu Terenuri vânzare Craiova-dj - 2Cornitoiu Apartamente vânzare Craiova-dj - Aeroport Case-vile vânzare Craiova-dj - Aeroport Garsoniere vânzare Craiova-dj - Aeroport Terenuri vânzare Craiova-dj - Aeroport