BLITZ Romania

Consultant imobiliar

Închiriere

140 m²

Spatiu medical, 145 mp utili, zona Centrala

Dolj / Craiova
2.200 €

Specificații

Suprafața utilă 140 m²

Suprafață totală 150 m

An finalizare construcție 2025

Numărul de locuri de parcare 1

Tip imobil Alte tipuri

Stadiu construcție Finalizat

Tip tranzacție Închiriere

Tip vânzător Companie

Blitz vă oferă spre spre inchiriere spatiu comercial D+P, cu destinatie medicala, amenajat ultramodern, situat la parterul unei cladiri noi, autorizata ca CENTRU MEDICAL situata intr-o pozitie centrala de exceptie cu vad și flux intens. 

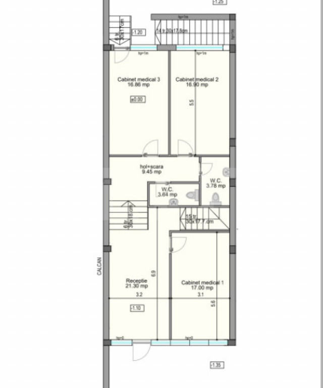
Spațiul este compus din demisol și parter, cu o suprafață utilă 140 mp, din care 51 mp la demisol (cabinet medical, hol+CS, toaleta si camera de sterilizat+ depoziatre) si 89 mp la parter (3 cabinete, hol, 2 toalete si receptie).
Spatiul va fi dotat cu: tamplarie din gama premium; incalzire prin centrala termica individuala, finisaje partial personalizabile. Imobilul se afla in etapa in care poate fi personalizat pe gustul cumparatorului. Exista posibilitatea de mici modificari de compartimentare si pachetele de finisaje. În proximitatea spatiului se afla: strada Calea Bucuresti, farmacii, Piata Centrala, cabinete notariale, judecătoria și multe alte puncte de interes din zona centrală. 

Proiectul beneficiaza de locuri de parcare cu acces facil in incinta, ascensor de persoane, dar și diverse alte facilitati.

Cu mai multe detalii va așteptăm cu drag la vizionare!

Cod ofertă / ID BLITZ: P154178
Id intern: P154178

Solicită vizionarea proprietății

Alege o zi disponibilă

23 Februarie
24 Februarie
25 Februarie
26 Februarie

Alege un interval orar

8:00 - 12:00
12:00 - 15:00
15:00 - 18:00
18:00 - 21:00

Următoarele date de contact oferite de tine vor fi accesibile proprietarului:

Locație

Despre zona "Calea Bucuresti"

păreri exprimate de 215 de utilizatori, pe o scară de la 1 la 10

Află clasamentul acestui cartier
Sănătate și Siguranță

Sănătate și Siguranță

7.1

Sănătate 7.6

Siguranță 7.6

Calitate aer 6.2

Curățenie 7.1

Zone verzi 7.1

Cultură și Educație

Cultură și Educație

7.8

Cultură 7.8

Educație 8.2

Sport 7.3

Ambianță și Lifestyle

Ambianță și Lifestyle

7.2

Nivel de trai 7.1

Magazine 8.2

Localuri 8.5

Parcări 6.2

Zgomot 6.2

Transport în comun

Transport în comun

8.3

Autobuz 8.4

Tramvai 8.3

Metrou 0.0

Contactează utilizatorul

ID: 4059610

Spatiu medical, 145 mp utili, zona Centrala

140 m² | Dolj / Craiova

2.200 €


Vezi și alte anunțuri imobiliare
Apartamente închiriere Craiova-dj - 1 Mai Case-vile închiriere Craiova-dj - 1 Mai Garsoniere închiriere Craiova-dj - 1 Mai Terenuri închiriere Craiova-dj - 1 Mai Apartamente închiriere Craiova-dj - 2Cornitoiu Case-vile închiriere Craiova-dj - 2Cornitoiu Garsoniere închiriere Craiova-dj - 2Cornitoiu Terenuri închiriere Craiova-dj - 2Cornitoiu Apartamente închiriere Craiova-dj - Aeroport Case-vile închiriere Craiova-dj - Aeroport Garsoniere închiriere Craiova-dj - Aeroport Terenuri închiriere Craiova-dj - Aeroport