BLITZ Romania

Consultant imobiliar

Închiriere

120 m²

Spatiu medical la cheie, 120 mp, posibilitate personalizare,

Dolj / Craiova
2.160 €

Specificații

Suprafața utilă 120 m²

Tip imobil Alte tipuri

Stadiu construcție Finalizat

Tip tranzacție Închiriere

Tip vânzător Companie

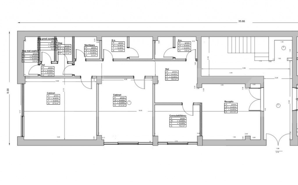
Blitz va propune spre inchiriere un spatiu cu destinatie medicala, situat la parterul unui bloc recent construit in apropiere de Piata Chiriac.
Acesta are o suprafata utila de 120 mp, iar compartimentarea este realizata astfel: receptie, 2 cabinete, spatiu consultatii/birou, hol, spatiu sterilizare, spatii depozitare, 2 grupuri sanitare.
Incalzirea este facuta cu centrala termica pe gaz, iar racirea cu unitati cu ventiloconvector.
Spatiul dispune de aviz DSP.
Va fi predat la cheie si exista posibilitatea de personalizare a finisajelor in functie de activitatea chiriasului. 
Compartimentarea nu poate fi personalizata.

Cod ofertă / ID BLITZ: P127571
Id intern: P127571

Solicită vizionarea proprietății

Alege o zi disponibilă

08 Decembrie
09 Decembrie
10 Decembrie
11 Decembrie

Alege un interval orar

8:00 - 12:00
12:00 - 15:00
15:00 - 18:00
18:00 - 21:00

Următoarele date de contact oferite de tine vor fi accesibile proprietarului:

Locație

Despre zona "1 Mai"

păreri exprimate de 314 de utilizatori, pe o scară de la 1 la 10

Află clasamentul acestui cartier
Sănătate și Siguranță

Sănătate și Siguranță

7.2

Sănătate 7.4

Siguranță 7.1

Calitate aer 6.6

Curățenie 6.8

Zone verzi 8.1

Cultură și Educație

Cultură și Educație

7.2

Cultură 6.6

Educație 7.6

Sport 7.5

Ambianță și Lifestyle

Ambianță și Lifestyle

6.8

Nivel de trai 6.7

Magazine 7.2

Localuri 7.2

Parcări 6.3

Zgomot 6.6

Transport în comun

Transport în comun

6.6

Autobuz 7.5

Tramvai 5.6

Metrou 0.0

Contactează utilizatorul

ID: 3698110

Spatiu medical la cheie, 120 mp, posibilitate personalizare,

120 m² | Dolj / Craiova

2.160 €


Vezi și alte anunțuri imobiliare
Apartamente închiriere Craiova-dj - 1 Mai Case-vile închiriere Craiova-dj - 1 Mai Garsoniere închiriere Craiova-dj - 1 Mai Terenuri închiriere Craiova-dj - 1 Mai Apartamente închiriere Craiova-dj - 2Cornitoiu Case-vile închiriere Craiova-dj - 2Cornitoiu Garsoniere închiriere Craiova-dj - 2Cornitoiu Terenuri închiriere Craiova-dj - 2Cornitoiu Apartamente închiriere Craiova-dj - Aeroport Case-vile închiriere Craiova-dj - Aeroport Garsoniere închiriere Craiova-dj - Aeroport Terenuri închiriere Craiova-dj - Aeroport