BLITZ Romania

Consultant imobiliar

Închiriere

101 m²

Spațiu medical modern, 101 mp la cheie, zona Piața Chiriac

Dolj / Craiova
1.850 €

Specificații

Suprafața utilă 101 m²

An finalizare construcție 2025

Numărul de locuri de parcare 1

Nu include TVA Da

Tip imobil Alte tipuri

Stadiu construcție Finalizat

Tip tranzacție Închiriere

Tip vânzător Companie

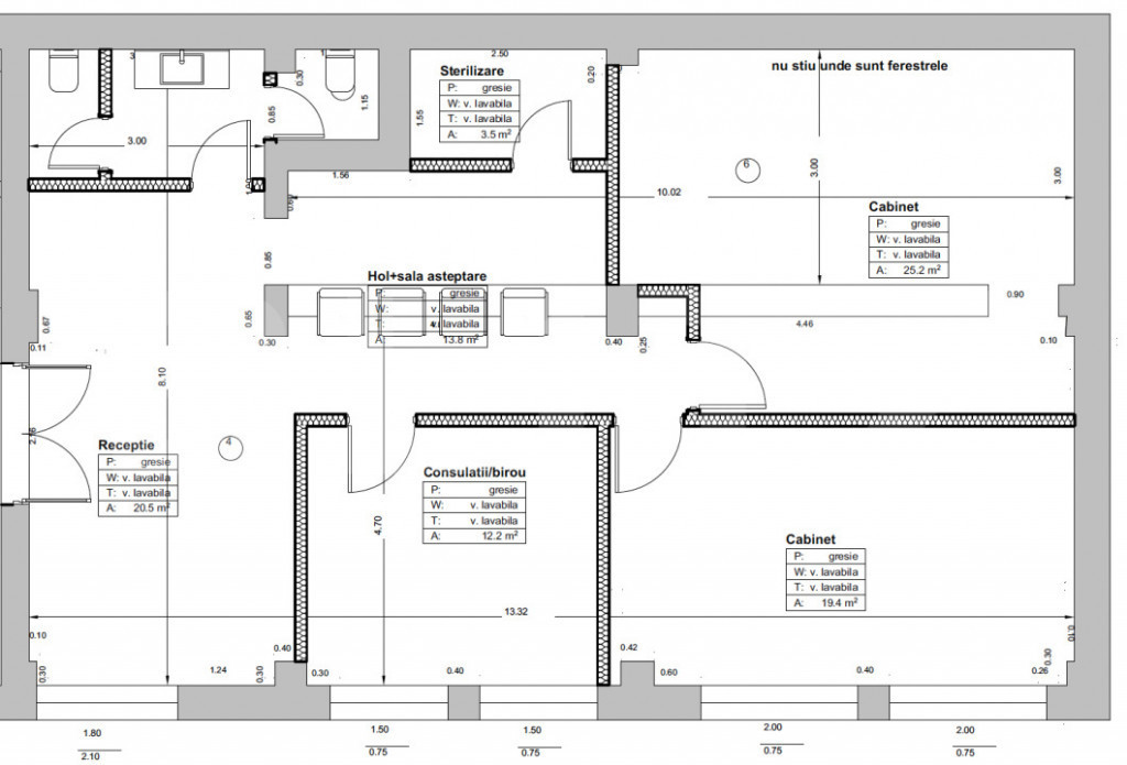
Blitz vă propune spre închiriere un spațiu cu destinație medicalaă, situat la parterul unui bloc recent construit, în apropiere de Piața Chiriac.
Acesta are o suprafatță utilă de 101 mp, iar compartimentarea este realizată astfel: recepție, hol, 2 cabinete, spațiu consultații/birou, , spațiu sterilizare, 2 spații de depozitare (de materiale septice și produse de curățenie) și 2 grupuri sanitare.
Încălzirea este făcută prin centrală termică pe gaz, iar răcirea cu unități cu ventiloconvector.
Spațiul se accesează foarte ușor și dispune de aviz DSP astfel că poate fi folosit imediat ce se închiriază.
Având în vedere poziția foarte bună, calitatea construcției și a finisajelor, dotările și autorizația pentru desfășurarea de activități medicale, cu diferite specializări, spațiul reprezintă o oportunitate de neratat pentru cei din domeniu, vă aștept la vizionare pentru a vă convinge. 
Cod ofertă / ID BLITZ: P160169
Id intern: P160169

Solicită vizionarea proprietății

Alege o zi disponibilă

17 Decembrie
18 Decembrie
19 Decembrie
20 Decembrie

Alege un interval orar

8:00 - 12:00
12:00 - 15:00
15:00 - 18:00
18:00 - 21:00

Următoarele date de contact oferite de tine vor fi accesibile proprietarului:

Locație

Despre zona "1 Mai"

păreri exprimate de 314 de utilizatori, pe o scară de la 1 la 10

Află clasamentul acestui cartier
Sănătate și Siguranță

Sănătate și Siguranță

7.2

Sănătate 7.4

Siguranță 7.1

Calitate aer 6.6

Curățenie 6.8

Zone verzi 8.1

Cultură și Educație

Cultură și Educație

7.2

Cultură 6.6

Educație 7.6

Sport 7.5

Ambianță și Lifestyle

Ambianță și Lifestyle

6.8

Nivel de trai 6.7

Magazine 7.2

Localuri 7.2

Parcări 6.3

Zgomot 6.6

Transport în comun

Transport în comun

6.6

Autobuz 7.5

Tramvai 5.6

Metrou 0.0

Contactează utilizatorul

ID: 4100133

Spațiu medical modern, 101 mp la cheie, zona Piața Chiriac

101 m² | Dolj / Craiova

1.850 €


Vezi și alte anunțuri imobiliare
Apartamente închiriere Craiova-dj - 1 Mai Case-vile închiriere Craiova-dj - 1 Mai Garsoniere închiriere Craiova-dj - 1 Mai Terenuri închiriere Craiova-dj - 1 Mai Apartamente închiriere Craiova-dj - 2Cornitoiu Case-vile închiriere Craiova-dj - 2Cornitoiu Garsoniere închiriere Craiova-dj - 2Cornitoiu Terenuri închiriere Craiova-dj - 2Cornitoiu Apartamente închiriere Craiova-dj - Aeroport Case-vile închiriere Craiova-dj - Aeroport Garsoniere închiriere Craiova-dj - Aeroport Terenuri închiriere Craiova-dj - Aeroport