Alexandru Luca

Consultant imobiliar

Închiriere

173 m²

Spatiu pentru birour in zona Centrului Istoric din Sibiu

Sibiu / Sibiu
800 €

Specificații

Consum total de energie primară 0

Indicele de emisii echivalent CO2 0

Consum total din surse regenerabile 0

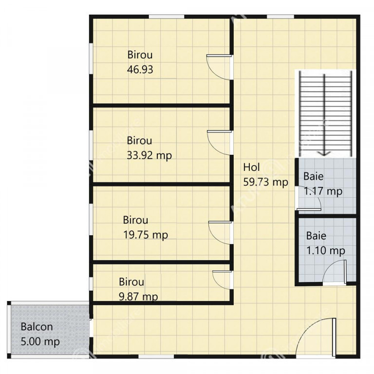
Număr încăperi 5

Înălțime spațiu 3 m

Stadiu construcție Finalizat

Suprafața utilă 173 m²

Suprafață totală 213 m

An finalizare construcție 1795

Nu include TVA Nu

Tip imobil Bloc apartamente

Clasă birouri A

Tip tranzacție Închiriere

Tip vânzător Companie

Spatiu pentru birouri de inchiriat, amplasat in Centrul Istoric al orasului Sibiu, cu orientare Sud-Estica.
Pozitionarea in zona istorica ofera vizibilitate stradala si acces rapid catre principalele puncte de interes, fiind potrivit pentru sediul unei companii, activitati de birou sau alte servicii administrative.
Imobilul a fost edificat in anul 1795 si renovat in anul 2020, beneficiind de toate imbunatatirile si dotarile necesare activitatii de birouri (incalzire in pardoseala, calorifere din otel si instalatii din cupru, aer conditionat, sistem de alarma, supraveghere video, camera server etc).
Spatiul disponibil pentru inchiriere este situat exclusiv la etajul 1 si are o suprafata utila de 173 mp, fiind compartimentat in 4 birouri individuale, 2 grupuri sanitare, un balcon cu suprafata de 5 mp si un hol generos de aproximativ 60 mp, ce poate fi amenajat in functie de necesitatile chiriasului. 
Valoarea de inchiriere a spatiului este de 800 euro   garantie la incheierea contractului. ID intern: 3466

Solicită vizionarea proprietății

Alege o zi disponibilă

25 Aprilie
26 Aprilie
27 Aprilie
28 Aprilie

Alege un interval orar

8:00 - 12:00
12:00 - 15:00
15:00 - 18:00
18:00 - 21:00

Următoarele date de contact oferite de tine vor fi accesibile proprietarului:

Locație

Despre zona "Orasul de Jos"

păreri exprimate de 70 de utilizatori, pe o scară de la 1 la 10

Află clasamentul acestui cartier
Sănătate și Siguranță

Sănătate și Siguranță

7.1

Sănătate 7.8

Siguranță 7.3

Calitate aer 7.1

Curățenie 6.8

Zone verzi 6.5

Cultură și Educație

Cultură și Educație

7.4

Cultură 7.4

Educație 7.8

Sport 6.9

Ambianță și Lifestyle

Ambianță și Lifestyle

7.1

Nivel de trai 7.4

Magazine 7.0

Localuri 7.4

Parcări 6.3

Zgomot 7.5

Transport în comun

Transport în comun

7.4

Autobuz 7.4

Tramvai 0.0

Metrou 0.0

Contactează utilizatorul

ID: 4164923

Spatiu pentru birour in zona Centrului Istoric din Sibiu

173 m² | Sibiu / Sibiu

800 €


Vezi și alte anunțuri imobiliare
Apartamente închiriere Sibiu-sb - Aeroport Case-vile închiriere Sibiu-sb - Aeroport Garsoniere închiriere Sibiu-sb - Aeroport Terenuri închiriere Sibiu-sb - Aeroport Apartamente închiriere Sibiu-sb - Broscarie Case-vile închiriere Sibiu-sb - Broscarie Garsoniere închiriere Sibiu-sb - Broscarie Terenuri închiriere Sibiu-sb - Broscarie Apartamente închiriere Sibiu-sb - Calea Cisnadiei Case-vile închiriere Sibiu-sb - Calea Cisnadiei Garsoniere închiriere Sibiu-sb - Calea Cisnadiei Terenuri închiriere Sibiu-sb - Calea Cisnadiei