Dan Capitanu

Consultant imobiliar

Închiriere

200 m²

Spatiu pretabil showroom, birouri, clinica medicala, etc

Bucuresti-Ilfov / Jilava
1.200 €

Specificații

Suprafața utilă 200 m²

Suprafață totală 200 m

An finalizare construcție 1980

Tip imobil Clădire de birouri

Stadiu construcție Finalizat

Posibilitate parcare Nu

Preț negociabil Da

Nu include TVA Da

Tip tranzacție Închiriere

Tip vânzător Companie

Va prezentam spre inchiriere un spatiu de birouri, situat in zona Berceni, Progresul, in suprafata de 200 mp, situat la parter. Spatiul este pretabil pentru diverse activitati: showroom si birouri, clinica medicala, gradinita, after school, cabinet veterinar, etc.
Exista centrala termica, contorizare individuala la curent electric si apa. Este asigurata si caldura, care se factureaza la pausal.
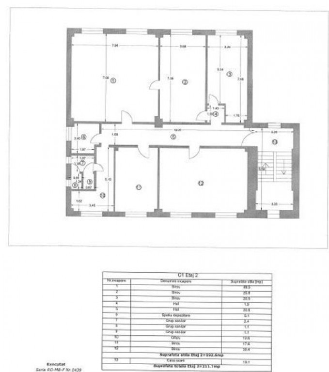
Spatiul este compartimentat si dispune de multiple grupuri sanitare precum si de o chicineta. 
In aceeasi cladire, la etajul 2, va putem oferi un alt spatiu de birouri in suprafata tot de 200 mp.

Solicită vizionarea proprietății

Alege o zi disponibilă

15 Februarie
16 Februarie
17 Februarie
18 Februarie

Alege un interval orar

8:00 - 12:00
12:00 - 15:00
15:00 - 18:00
18:00 - 21:00

Următoarele date de contact oferite de tine vor fi accesibile proprietarului:

Locație

Contactează utilizatorul

ID: 3313900

Spatiu pretabil showroom, birouri, clinica medicala, etc

200 m² | Bucuresti-Ilfov / Jilava

1.200 €