Viorel Nica

Consultant imobiliar

Închiriere

166 m²

Sp.com-160,4mp+terasa-5,5mp+3parcari/8min pe jos metrou D...

Bucuresti-Ilfov / Popesti Leordeni
2.200 €

Specificații

Preț negociabil Nu

Tip imobil Alte tipuri

Suprafața utilă 166 m²

Suprafață totală 193 m

An finalizare construcție 2021

Vitrină 5_0 m

Numărul de locuri de parcare 3

Număr încăperi 1

Înălțime spațiu 3_0 m

Posibilitate parcare Da

Stadiu construcție Finalizat

Tip tranzacție Închiriere

Tip vânzător Companie

Proprietar,
inchiriez prin agentie(tel: 0749122233 - pentru detalii si vizionari),
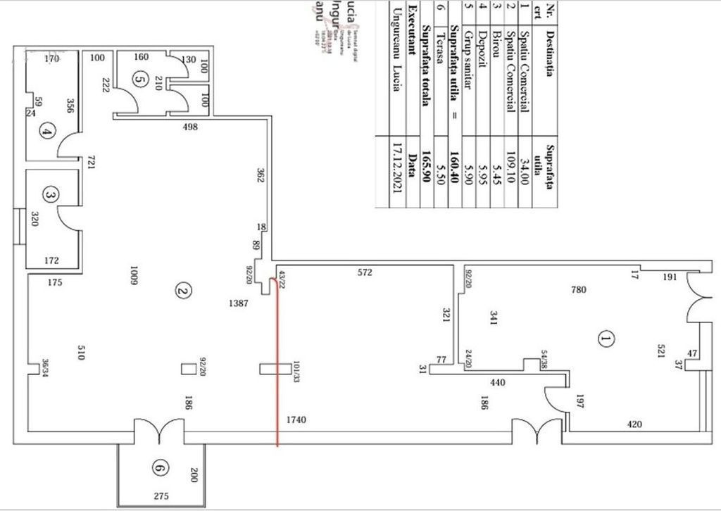
spatiu comercial cu o suprafață de 160,4mp utili + terasa de 5,5mp + 3 locuri de parcare dispuse in fata spatiului(aceasta fiind si una din cele trei zone de acces - a se vedea releveul atasat).

Dispune de centrala termică pe gaz, apa curenta, internet si cablu TV, grup sanitar.

Spatiu se închiriază pe termen mediu(1-2 ani) si lung(peste 2 ani).
Spatiul se preda liber, sau, se poate discuta pe marginea a ceea ce se doreste.

Spatiul se poate folosi pentru activitati diverse, fiind situat la parterul unui bloc de locuinte dintr-o zona rezidentiala, foarte aproape de supermarketul Penny si Parcul Dr. Fermei de pe str. Dr. Fermei, cat si de statia autobuzului 480, oferind acces foarte usor atat cu masina personala, cat si pietonal sau cu mijloacele de transport in comun(8 minute pe jos pana la statia de metrou D.Leonida sau 10 minute pe jos pana la statia de metrou Berceni), zona beneficiind de infrastructura completa.

Se vor discuta la fata locului, in functie de interesul manifestat, toate detaliile.

Prețul poate fi negociabil in funcție de avans, daca se ofera plata in avans pe un an de zile sau in alti termeni si conditii agreate de parti.

  Avans standard: (1+1+0,5), din valoarea unei luni de chirie; 0,5 din valoarea chiriei lunare reprezinta comisionul datorat de chirias catre agentie, o singura data, in momentul semnarii contractului de inchiriere.

Solicită vizionarea proprietății

Alege o zi disponibilă

30 Aprilie
01 Mai
02 Mai
03 Mai

Alege un interval orar

8:00 - 12:00
12:00 - 15:00
15:00 - 18:00
18:00 - 21:00

Următoarele date de contact oferite de tine vor fi accesibile proprietarului:

Locație

Contactează utilizatorul

ID: 4167283

Sp.com-160,4mp+terasa-5,5mp+3parcari/8min pe jos metrou D...

166 m² | Bucuresti-Ilfov / Popesti Leordeni

2.200 €