Vlad Trîmbițașu

Consultant imobiliar

Închiriere

900 m²

Stefanesti A3 Centura Spatiu 900mp cladire comerciala/bir...

Bucuresti-Ilfov / Stefanestii De Jos
3.500 €

Specificații

Preț negociabil Nu

Tip imobil Alte tipuri

Suprafața utilă 900 m²

Suprafață totală 950 m

An finalizare construcție 2024

Vitrină 20_0 m

Numărul de locuri de parcare 4

Număr încăperi 1

Înălțime spațiu 5_0 m

Posibilitate parcare Da

Stadiu construcție Finalizat

Tip tranzacție Închiriere

Tip vânzător Companie

PRETUL AFISAT ESTE PENTRU PRIMELE 6 LUNI CONTRACTUALE. dUPA ACEASTA PERIOADA PRETUL REVINE LA 5400 EURO PE LUNA, ADICA 6 EURO/MP.
Se doreste semnarea unui contract inchis pe minim doi ani, cu 3 luni de zile plata anticipata pe peretul redus si o luna de garantie pe valoarea intreaga.

OFERTA CU 0% COMISION PENTRU CHIRIAS!!
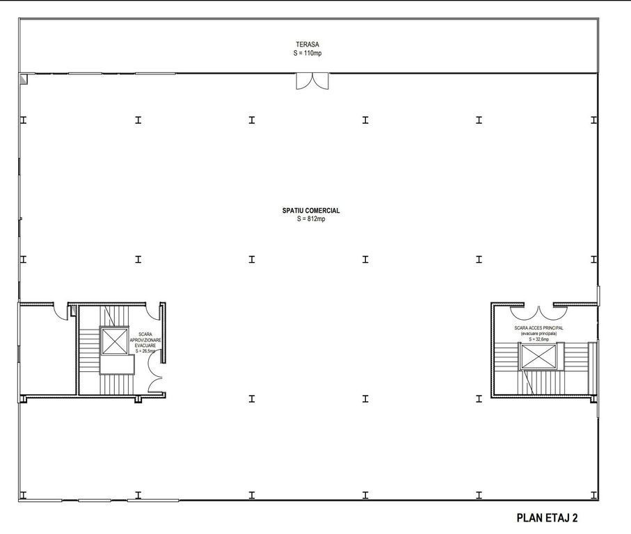
Spatiu de 900 mp ( 800 mp interiori plus 100mp terasa )cu multiple destinatii comerciale, birouri, sala de fitness,sala cursuri, loc de joaca, clinica, salon plus multe altele, situat in Stefanestii de Jos, intr-un centru comercial nou denumit STEFANESTI CENTER, la intersectia Sos Stefanesti cu strada Sinaia, cea care duce la A3 Bucuresti Ploiesti, la doi pasi de Centura si multiple depozite din parcul logistic ( Freshfull, Metro, Dechatlon, Mega Image, plus multe alte societati cu hale depozitare si productie ) . Spatiul ocupa intreg etajul doi al imobilului compus din P+3 etaje. in prezent functioneaza la parter un magazin mare MEGA IMAGE, iar la etajul 1 un China Shop.  Spatiul este open space, se poate compartimenta dupa preferinta si are doua cai de acces.  Este contorizat separat, iar accesul se realizeaza pe doua zone de scari si doua lifturi. Se doreste inchirierea pe termen lung, iar amenajarea spatiului se face in functie de preferinta pentru domeniul de activitate ales, iar pentru lucrurile de baza poate contribui si proprietarul.

Solicită vizionarea proprietății

Alege o zi disponibilă

07 Decembrie
08 Decembrie
09 Decembrie
10 Decembrie

Alege un interval orar

8:00 - 12:00
12:00 - 15:00
15:00 - 18:00
18:00 - 21:00

Următoarele date de contact oferite de tine vor fi accesibile proprietarului:

Locație

Contactează utilizatorul

ID: 4006514

Stefanesti A3 Centura Spatiu 900mp cladire comerciala/bir...

900 m² | Bucuresti-Ilfov / Stefanestii De Jos

3.500 €