Florica Snop

Consultant imobiliar

Vânzare

3 camere | 64 m²

Strand - 3 camere cu balcon si pivnita - la etajul 4

Sibiu / Sibiu
98.600 €

Rată estimată

2.160 Lei/lună

Avans (15%)

73.506 lei

Perioada împrumutului

30 ani

Specificații

Număr camere 3

Suprafața utilă 64 m²

Compartimentare Decomandat

Confort 1

An finalizare construcție 1980

Tip imobil Bloc apartamente

Niveluri imobil 4

Număr Băi 1

Comision cumpărător 2%

Etaj 4

Stare proprietate Bună

Mobilat și Utilat Parțial

Tip tranzacție Vânzare

Tip vânzător Companie

Apartament 3 camere de vanzare, decomandat, 64 mp, zona Strand, Sibiu.

Apartamentul este nerenovat, situat intr-o zona foarte frumoasa si linistita cotata foarte bine din punct de vedere imobiliar cu acces rapid spre toate punctele orasului si in acelasi timp in apropiere de zonele de interes public si anume: Centru Istoric, scoli, gradinite, banci, farmacii, magazine, spatii verzi, locuri de joaca pentru copii, mijloace de transport in comun si cele in regim de taxi. 

Avantaje majore ale acestui apartament:
• Parcare publica in jurul blocului 
• Pivnita generoasa de depozitare
• Locatie ferita de aglomeratie

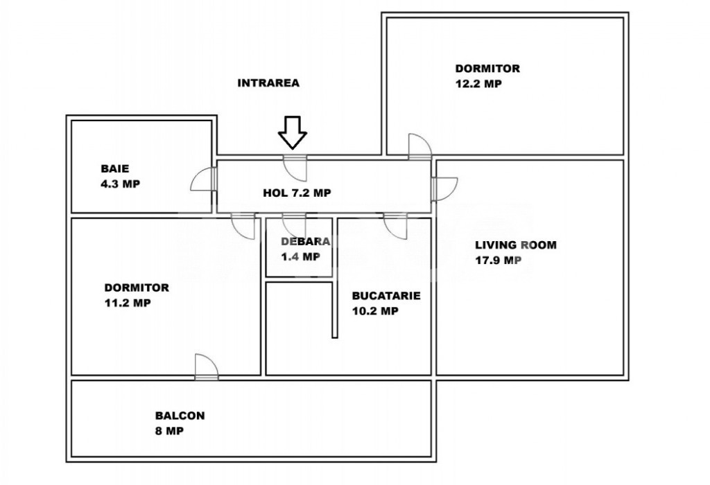
TABOO Imobiliare propune un apartament de vanzare cu 3 camere, decomandat, situat in localitatea Sibiu, zona Strand, aflat la etajul 4 intr -un imobil tip bloc cu regim de inaltime pe demisol+parter + 4 Etaje; anul constructiei 1980, structura caramida. Suprafata utila de 64 mp + balcon inchis de 8 mp.

Apartamentul este structurat astfel:
• Hol de compartimentare;
• Bucatarie separata;
• Baie cu cada;
• Living cu aer conditionat;
• Dormitor cu iesire pe balcon;
• Dormitor;
• Camara;
• Debara;

Finisajele interioare necesita renovare:
• Usa intrare: metal;
• Usi interioare: lemn;
• Tamplarie ferestre: pvc, termopan;
• Pereti: vopsea lavabila, faianta;
• Podele: parchet.

Utilitati si dotari:
• Bucatarie: partial mobilata, partial utilata;
• Mobilat: partial mobilat;
• Utilitati: curent electric, apa, canalizare, gaz, catv, telefon, acces internet, fibra optica;
• Izolatii: exterior, bloc izolat termic;
• Contorizare: apometre, contor gaz, contor curent electric, contorizare separata;
• Caracteristici bloc: interfon, acoperis.

Apartamentul se vinde partial mobilat si partial utilat cu: frigider si cuptor cu microunde.
Incalzirea se realizeaza prin centrala proprie, calorifere.
Se accepta ca si modalitate de plata surse proprii sau credit bancar.
 
Pret: 98.600€
Cod ofertă / ID: P24924
Sună-ne acum la 0784.530.613 și află detalii despre această proprietate de vanzare din Sibiu, dar și despre alte proprietăți potrivite pentru tine.


Informatii speciale:
1. Descarcă aplicația pe mobilul tau "TABOO Imobiliare" din Apple Store, Google Play sau Huawei AppGallery pentru a afla instantaneu noile proprietăți care intră pe piață.
2. Dacă ai o proprietate pe care vrei să o vinzi sau să o închiriezi, suntem aici pentru tine!
Contactează-ne pentru o evaluare gratuită fără obligații și vei descoperi avantajele de a lucra cu o echipă dedicată și experimentată.
3. Dacă vrei sa incepi o cariera de agent imobiliar, suna la 0784.530.613 si programeaza o intalnire pentru a afla toate beneficiile si avantajele.

Intră pe TABOO.ro și descoperă cele mai recente oferte, actualizate zilnic.
Anunt actualizat in 19 decembrie 2025.
Id intern: P24924

Solicită vizionarea proprietății

Alege o zi disponibilă

27 Decembrie
28 Decembrie
29 Decembrie
30 Decembrie

Alege un interval orar

8:00 - 12:00
12:00 - 15:00
15:00 - 18:00
18:00 - 21:00

Următoarele date de contact oferite de tine vor fi accesibile proprietarului:

Locație

Despre zona "Strand"

păreri exprimate de 137 de utilizatori, pe o scară de la 1 la 10

Află clasamentul acestui cartier
Sănătate și Siguranță

Sănătate și Siguranță

7.9

Sănătate 7.7

Siguranță 8.4

Calitate aer 7.7

Curățenie 7.6

Zone verzi 8.1

Cultură și Educație

Cultură și Educație

7.2

Cultură 6.4

Educație 8.2

Sport 7.1

Ambianță și Lifestyle

Ambianță și Lifestyle

7.3

Nivel de trai 7.9

Magazine 7.7

Localuri 6.7

Parcări 6.3

Zgomot 7.8

Transport în comun

Transport în comun

7.9

Autobuz 7.9

Tramvai 0.0

Metrou 0.0

Contactează utilizatorul

ID: 4054369

Strand - 3 camere cu balcon si pivnita - la etajul 4

3 camere | 64 m² | Sibiu / Sibiu

98.600 €


Vezi și alte anunțuri imobiliare
Apartamente vânzare Sibiu-sb - Aeroport Case-vile vânzare Sibiu-sb - Aeroport Garsoniere vânzare Sibiu-sb - Aeroport Terenuri vânzare Sibiu-sb - Aeroport Apartamente vânzare Sibiu-sb - Broscarie Case-vile vânzare Sibiu-sb - Broscarie Garsoniere vânzare Sibiu-sb - Broscarie Terenuri vânzare Sibiu-sb - Broscarie Apartamente vânzare Sibiu-sb - Calea Cisnadiei Case-vile vânzare Sibiu-sb - Calea Cisnadiei Garsoniere vânzare Sibiu-sb - Calea Cisnadiei Terenuri vânzare Sibiu-sb - Calea Cisnadiei