Marina Gavrilă

Consultant imobiliar

Vânzare

4 camere | 116 m²

Terase generoase cu vederea spre padure

Brasov / Poiana Brasov
399.000 €

Rată estimată

8.742 Lei/lună

Avans (15%)

297.455 lei

Perioada împrumutului

30 ani

Specificații

Preț negociabil Nu

Suprafața utilă 116 m²

Număr camere 4

Tip imobil Bloc apartamente

Compartimentare Decomandat

Număr Băi 3

Etaj 1

Niveluri imobil 4

An finalizare construcție 2008

Confort 1

Ansamblu Rezidențial Da

Posibilitate parcare Nu

Stare proprietate Nouă

Tip tranzacție Vânzare

Tip vânzător Companie

Ati accesat un imobil situat in Poiana Mica.

LOCALIZARE:

Silver Mountain Resort este un proiect rezidential exclusivist, din Poiana Brasov, fiind amplasat la poalele Masivului Postavaru, in Poiana Mica, la 3,3 km distanta de Partia Bradul, cu o vedere superba catre partiile de schi.

DATE TEHNICE:

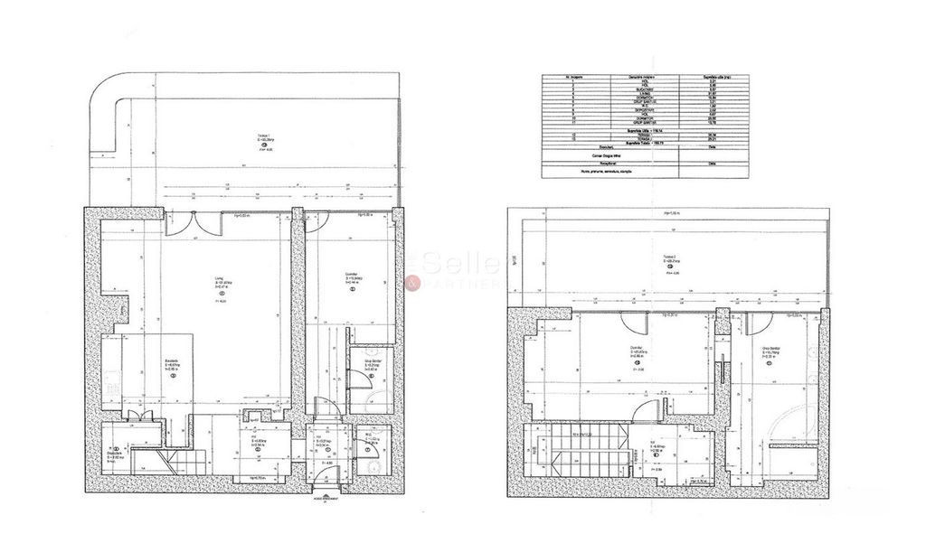
Apartamentul este compus din 4 camere distribuite pe 2 nivele ce comunica prin scara interioara si anume:
Primul nivel este compus din:
- Hol de acces mobilat si utialt;
- Lining-ul este unul spatios, care ofera deschidere catre terasa de 35,38 mp si detine semineu;
- Bucatarie open space, mobilata si utilata;
- Baia de servici ce deserveste zona de living;
- Dormitor cu baie proprie si acces catre terasa;
Cel de al doilea nivel este caracterizat de:
- Dormitorul matrimonial generos de 21 mp cu acces la terasa proprie de 28 mp
- Dormitor secundar cu acces catre terasa
- Baia dotata cu cabina de dus;

Ferestrele floor to ceiling si terasele generoase ofera luminozitate dar si o priveliste spectaculoasa, asupra muntelui si padurii.

Apartamentul dispune de scara interioara, ce sporeste imaginea unei locuinte spatioase si confortabile.

FINISAJE:

- Pereti interiori finisati cu vopsea lavabila;
- Tamplarie exterioara din profile de aluminium;
- Tamplarie interioara cu furnir natural;
- Pardoseala din lemn;
- Bai din compozit acrilic cu baterii Hansgrohe;
- Usa intrare din cadru metalic, cu incuietoare multipunct;
- Conexiuni telefon, cablu TV internet; interfon.

AVANTAJE:

- Vedere spectaculoasa, catre padure si catre complex;
- Apropierea de trasee montane;
- Sali de conferinte, centru SPA (piscina interioara, cada cu hidromasaj, sauna, centru fitness);
- Parcare privata, heliport;
- Restaurant si club in interiorul Resortului;
- Inchirieri Snowmobile, ATV si Off-road Jeeps disponibile in locatie.

IMPREJURIMI:

Apartamentul este situat intr-o zona de cladiri, cu regim de inaltime P+5 fiind perfect racordat la infrastructura zonei, dumneavoastra beneficiind, astfel, de toate facilitatile necesare:

- La 1.7 km de partia Bradul si Telecabina Capra Neagra;
- La aproximativ 15km de Piata Sfatului - Brasov;
- La 2km de statia de Autobuz.

OBSERVATII:

Proprietatea se tranzactioneaza in varianta mobilata.
Aceasta se poate achizitiona prin credit bancar.

Zona rezidentiala de interes major.

Oferta include un loc de parcare subteran.

Silver Mountain Resort este situat in Poiana Brasov, la poalele Masivului Postavarul, in
Poiana Mica, la numai 3,3 km de Partia Bradul. Complexul este format din 4 cladiri de
apartamente cu 1 pana la 7 camere, cu terase spatioase si o cladire multifunctionala.

Pret Vanzare 465.000 euro
Comision Intermediere 2% + TVA

Solicită vizionarea proprietății

Alege o zi disponibilă

08 Decembrie
09 Decembrie
10 Decembrie
11 Decembrie

Alege un interval orar

8:00 - 12:00
12:00 - 15:00
15:00 - 18:00
18:00 - 21:00

Următoarele date de contact oferite de tine vor fi accesibile proprietarului:

Locație

Contactează utilizatorul

ID: 3945837

Terase generoase cu vederea spre padure

4 camere | 116 m² | Brasov / Poiana Brasov

399.000 €