Adrian Frincu

Consultant imobiliar

Vânzare

Teren 33088 mp, Avantgarden Bartolomeu

Brasov / Brasov
4.036.736 €

Rată estimată

88.444 Lei/lună

Avans (15%)

3.009.387 lei

Perioada împrumutului

30 ani

Specificații

Preț negociabil Da

Nu include TVA Nu

Suprafață teren 33088 m²

Tip teren Construibil

Clasificare teren Intravilan

Front stradal 104 m

Construcție pe teren Nu

Utilități Curent, Apă, Canalizare, Gaz

Tip tranzacție Vânzare

Tip vânzător Companie

Agenţia Remax Evolution vă propune spre vânzare, cu comision 0% de la cumpărător:

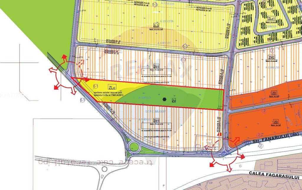
Teren de 33088 mp, intravilan arabil cu un potenţial ridicat de dezvoltare.
Pe lângă plata integrală, se acceptă şi plata parţială împreună cu asociere în cadrul unor proiecte imobiliare.

Teren intravilan, 16544 mp cu front de 104 m, într-o zonă în plină dezvoltare, toate utilitățile. 
Destinația conform PUZ, ZLC – zonă de locuințe colective şi ZV - zonă verde.
POT=25 %, CUT=1, S+P+3-5E
Teren de 16544 mp, zonă verde.
POT=25%, CUT=1, P+1 (la care se pot adăuga unul sau mai multe nivele de subsol), pt ZV (zonă verde cu utilizări admise: spaţii verzi amenajate, parcuri de joacă pentru copii, dotări sportive şi de agrement). 
Pretabil şi pentru construcţii ştranduri, parcuri de distracţii, fiind o zonă populată şi neexistând astfel de facilităţi în zonă.
În apropiere s-au demarat lucrările pentru construcţia noului magazin Kaufland. 

Vă mulțumim și vă stăm la dispoziție cu detalii suplimentare despre acest teren.

Solicită vizionarea proprietății

Alege o zi disponibilă

27 Decembrie
28 Decembrie
29 Decembrie
30 Decembrie

Alege un interval orar

8:00 - 12:00
12:00 - 15:00
15:00 - 18:00
18:00 - 21:00

Următoarele date de contact oferite de tine vor fi accesibile proprietarului:

Locație

Despre zona "Bartolomeu"

păreri exprimate de 301 de utilizatori, pe o scară de la 1 la 10

Află clasamentul acestui cartier
Sănătate și Siguranță

Sănătate și Siguranță

7.0

Sănătate 6.6

Siguranță 7.3

Calitate aer 7.0

Curățenie 7.2

Zone verzi 6.8

Cultură și Educație

Cultură și Educație

6.3

Cultură 5.9

Educație 7.2

Sport 6.0

Ambianță și Lifestyle

Ambianță și Lifestyle

6.8

Nivel de trai 6.9

Magazine 7.3

Localuri 6.4

Parcări 6.5

Zgomot 7.1

Transport în comun

Transport în comun

7.5

Autobuz 7.5

Tramvai 0.0

Metrou 0.0

Contactează utilizatorul

ID: 4036570

Teren 33088 mp, Avantgarden Bartolomeu

Brasov / Brasov

4.036.736 €


Vezi și alte anunțuri imobiliare
Apartamente vânzare Brasov-bv - 13 Decembrie Case-vile vânzare Brasov-bv - 13 Decembrie Garsoniere vânzare Brasov-bv - 13 Decembrie Terenuri vânzare Brasov-bv - 13 Decembrie Apartamente vânzare Brasov-bv - 15 Noiembrie Case-vile vânzare Brasov-bv - 15 Noiembrie Garsoniere vânzare Brasov-bv - 15 Noiembrie Terenuri vânzare Brasov-bv - 15 Noiembrie Apartamente vânzare Brasov-bv - Astra Case-vile vânzare Brasov-bv - Astra Garsoniere vânzare Brasov-bv - Astra Terenuri vânzare Brasov-bv - Astra