Front Office

Consultant imobiliar

Vânzare

Teren cu autorizatie de construire in Dambul Rotund

Cluj / Cluj-Napoca
248.000 €

Rată estimată

5.434 Lei/lună

Avans (15%)

184.884 lei

Perioada împrumutului

30 ani

Specificații

Suprafață teren 630 m²

Clasificare teren Intravilan

Front stradal 15 m

Utilități Curent, Apă, Canalizare, Gaz

Tip teren Construibil

Tip tranzacție Vânzare

Tip vânzător Companie

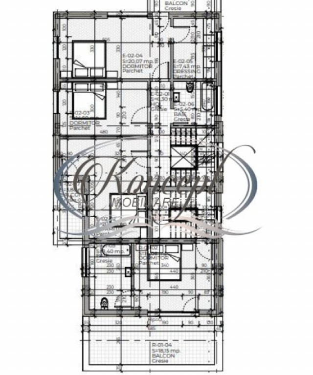
Koncept Imobiliare va ofera spre vanzare un teren intravilan cu o suprafata de 630 mp si front de 15,21 ml, situat in cartierul Dambul Rotund, pe strada Doinei. Terenul are autorizatie de constructie pentru 2 unitati locative cu regim de inaltime S+P+E+R, suprafata utila totala de 481,3 mp plus terase si balcoane. Utilitatile sunt la baza terenului, iar pe langa privelistea oferita, suprafata generoasa a terenului si a constructiei, il face potrivit atat ca oportunitate de investitie, cat si pentru cineva care doreste sa-si construiasca propria casa. Pentru detalii complete, pentru programarea unei vizionari sau pentru a afla oferta noastra completa nu ezitati sa ne contactati telefonic, prin e-mail sau la sediul agentiei noastre, pe str. Aviator Badescu nr. 19, Cluj-Napoca.
Id intern: P19790

Solicită vizionarea proprietății

Alege o zi disponibilă

27 Decembrie
28 Decembrie
29 Decembrie
30 Decembrie

Alege un interval orar

8:00 - 12:00
12:00 - 15:00
15:00 - 18:00
18:00 - 21:00

Următoarele date de contact oferite de tine vor fi accesibile proprietarului:

Locație

Despre zona "Dambul Rotund"

păreri exprimate de 71 de utilizatori, pe o scară de la 1 la 10

Află clasamentul acestui cartier
Sănătate și Siguranță

Sănătate și Siguranță

6.8

Sănătate 5.9

Siguranță 7.8

Calitate aer 7.2

Curățenie 7.2

Zone verzi 5.9

Cultură și Educație

Cultură și Educație

5.8

Cultură 4.7

Educație 7.2

Sport 5.4

Ambianță și Lifestyle

Ambianță și Lifestyle

6.6

Nivel de trai 7.6

Magazine 6.4

Localuri 5.2

Parcări 6.0

Zgomot 7.8

Transport în comun

Transport în comun

6.6

Autobuz 7.4

Tramvai 5.8

Metrou 0.0

Contactează utilizatorul

ID: 3817596

Teren cu autorizatie de construire in Dambul Rotund

Cluj / Cluj-Napoca

248.000 €


Vezi și alte anunțuri imobiliare
Apartamente vânzare Cluj-napoca-cj - Aeroport Case-vile vânzare Cluj-napoca-cj - Aeroport Garsoniere vânzare Cluj-napoca-cj - Aeroport Terenuri vânzare Cluj-napoca-cj - Aeroport Apartamente vânzare Cluj-napoca-cj - Andrei Muresanu Case-vile vânzare Cluj-napoca-cj - Andrei Muresanu Garsoniere vânzare Cluj-napoca-cj - Andrei Muresanu Terenuri vânzare Cluj-napoca-cj - Andrei Muresanu Apartamente vânzare Cluj-napoca-cj - Apahida Case-vile vânzare Cluj-napoca-cj - Apahida Garsoniere vânzare Cluj-napoca-cj - Apahida Terenuri vânzare Cluj-napoca-cj - Apahida