Antoanela Ene

Consultant imobiliar

Vânzare

Teren cu autorizatie pentru vila p 1 M metrou Ion Mihalac

Bucuresti-Ilfov / Bucuresti
390.000 €

Rată estimată

8.545 Lei/lună

Avans (15%)

290.745 lei

Perioada împrumutului

30 ani

Specificații

Suprafață teren 408 m²

Nu include TVA Nu

Clasificare teren Intravilan

Front stradal 10 m

Tip teren Construibil

Utilități Curent, Apă, Canalizare, Gaz

Tip tranzacție Vânzare

Tip vânzător Companie

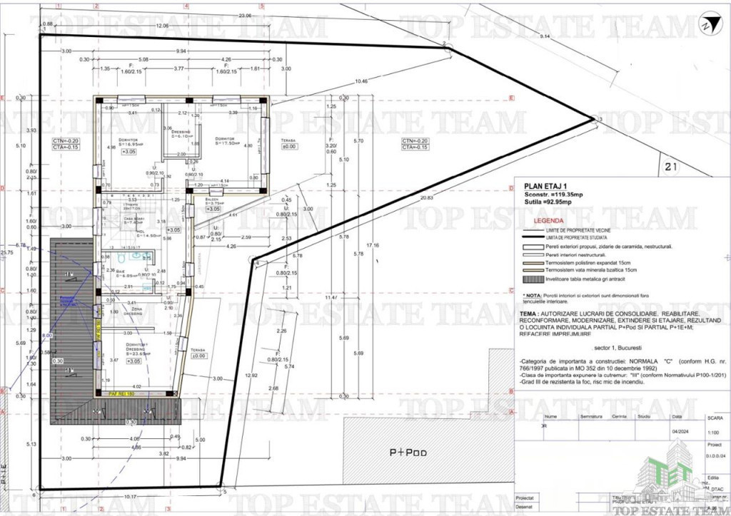
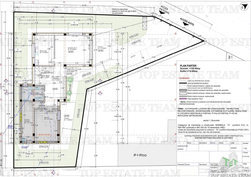
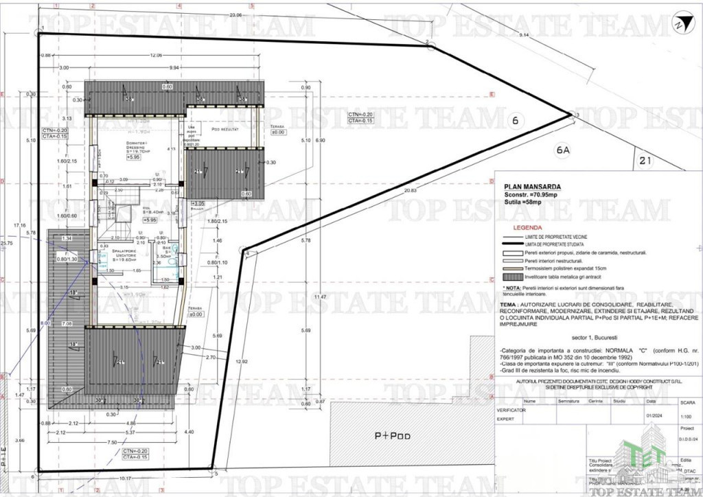
Vanzare teren cu AUTORIZATIE pentru locuinta unifamiliala, vila p  1E mansarda.

Terenul este situat la scurta distanta de piata Mures- Calea Grivitei- metrou statia 1 Mai, in zona de case si vile; are suprafata masurata de 433 mp;

Proprietate beneficiaza de toate utilitatile: curent electric, gaz, apa, canalizare;

Pentru acest teren a fost obtinuta autorizatie de construite in luna mai 2025.

Detalii proiect:

- p  1E  M

- amprenta(suprafata construita la sol: 142 mp; suprafata construita totala: 332

- mp; suprafata utila: 263 mp

- teren liber/ curte: 290 mp

- living, 5 dormitoare, 3 bai, bucatarie inchisa, 2 camere tehnice (depozitare), balcon, 2 terase, 2 gressing, spalatorie/ uscatorie;

-Parter: living, bucatarie, baie, birou/ dormitor, 2 camere tehnice, terasa

-Etaj 1: 3 dormitoare, baie, dressing, balcon;

-Mansarda: 1 dormitor, dressing, 1 baie, spalatorie/uscatorie;

Zona in care este situat imobilul ofera acces facil catre toate punctele de interes ale capitalei, este bine conectat la mijloace de transport STB, metrou, institutii de invatamant, piata Mures, magazine, cafenele, banci;

 

Pret: 390.000 euro

 ID intern: TET0020781.

Solicită vizionarea proprietății

Alege o zi disponibilă

07 Decembrie
08 Decembrie
09 Decembrie
10 Decembrie

Alege un interval orar

8:00 - 12:00
12:00 - 15:00
15:00 - 18:00
18:00 - 21:00

Următoarele date de contact oferite de tine vor fi accesibile proprietarului:

Locație

Contactează utilizatorul

ID: 4080706

Teren cu autorizatie pentru vila p 1 M metrou Ion Mihalac

Bucuresti-Ilfov / Bucuresti

390.000 €


Vezi anunțuri și din categoriile