Aurelia Fluieras

Consultant imobiliar

Închiriere

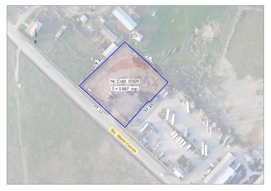
Teren de închiriat – 5887 mp, Str. Matei Corvin, Oradea

Bihor / Oradea
6.181 €

Specificații

Preț negociabil Da

Nu include TVA Nu

Suprafață teren 5887 m²

Tip teren Construibil

Clasificare teren Intravilan

Construcție pe teren Nu

Utilități Curent, Apă

Tip tranzacție Închiriere

Tip vânzător Companie

Se oferă spre închiriere o platformă betonată și îngrădită în suprafață de 5.887 mp, situată în Episcopia Bihorului, într-o zona ideală pentru activități logistice, parcare sau depozitare. 

Caracteristici principale:
-Suprafață totală: 5887 mp platformă integral betonată
-Împrejmuită complet, acces securizat
-Acces facil pentru tiruri și utilaje grele
-Utilități disponibile pe teren: apă și curent electric
-Drum de acces asfaltat din șoseaua principală

-Ideală pentru: 
-parcare TIR-uri
-depozitare materiale
-depozitare containere
-depozitare flote auto
-activități logistice

-Posibilitate de închiriere pe termen lung

Localizare:
Amplasată în Episcopia Bihorului, foarte aproape de Vama Borș, Centura Oradea și Autostrada A3, proprietatea oferă acces rapid către Ungaria și Europa de Vest.
Vis-a-Vis de Centrul Intermodal din Episcopia Bihorului

Pret negociabil, în funcție de durata contractului și destinația utilizării.  

Vă stau la dispoziție pentru detalii suplimentare sau pentru a programa o vizionare.

Solicită vizionarea proprietății

Alege o zi disponibilă

28 Decembrie
29 Decembrie
30 Decembrie
31 Decembrie

Alege un interval orar

8:00 - 12:00
12:00 - 15:00
15:00 - 18:00
18:00 - 21:00

Următoarele date de contact oferite de tine vor fi accesibile proprietarului:

Locație

Despre zona "Episcopia Bihorului"

păreri exprimate de 37 de utilizatori, pe o scară de la 1 la 10

Află clasamentul acestui cartier
Sănătate și Siguranță

Sănătate și Siguranță

6.6

Sănătate 6.8

Siguranță 8.1

Calitate aer 6.1

Curățenie 6.3

Zone verzi 5.8

Cultură și Educație

Cultură și Educație

6.0

Cultură 5.5

Educație 7.1

Sport 5.4

Ambianță și Lifestyle

Ambianță și Lifestyle

6.5

Nivel de trai 6.8

Magazine 6.1

Localuri 5.3

Parcări 7.4

Zgomot 7.1

Transport în comun

Transport în comun

6.9

Autobuz 7.7

Tramvai 6.0

Metrou 0.0

Contactează utilizatorul

ID: 4077102

Teren de închiriat – 5887 mp, Str. Matei Corvin, Oradea

Bihor / Oradea

6.181 €


Vezi și alte anunțuri imobiliare
Apartamente închiriere Oradea-bh - Aeroport Case-vile închiriere Oradea-bh - Aeroport Garsoniere închiriere Oradea-bh - Aeroport Terenuri închiriere Oradea-bh - Aeroport Apartamente închiriere Oradea-bh - Calea Aradului Case-vile închiriere Oradea-bh - Calea Aradului Garsoniere închiriere Oradea-bh - Calea Aradului Terenuri închiriere Oradea-bh - Calea Aradului Apartamente închiriere Oradea-bh - Calea Borsului Case-vile închiriere Oradea-bh - Calea Borsului Garsoniere închiriere Oradea-bh - Calea Borsului Terenuri închiriere Oradea-bh - Calea Borsului