BLITZ Romania

Consultant imobiliar

Vânzare

Teren de vanzare, zona Metro-Carcea, 992mp

Dolj / Carcea
55.000 €

Rată estimată

1.205 Lei/lună

Avans (15%)

41.003 lei

Perioada împrumutului

30 ani

Specificații

Suprafață teren 500 m²

Clasificare teren Intravilan

Front stradal 12 m

Utilități Curent, Apă, Canalizare, Gaz

Tip teren Construibil

Tip tranzacție Vânzare

Tip vânzător Companie

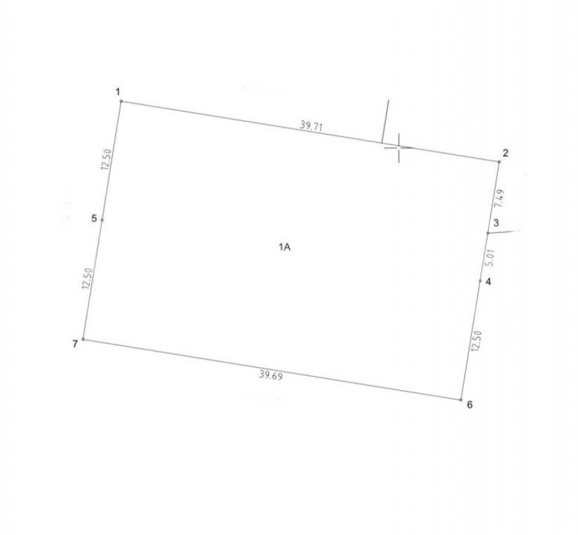
Blitz va propune un teren de 500 mp cu front stradal de 12,5 ml in Carcea. Terenul are toate utilitatile, pretabil pentru constructii care se pot folosi ca si locuita dar si pentru activitati comerciale. Pentru mai multe detalii, nu ezitati sa ne contactati!

Cod ofertă / ID BLITZ: P136264
Id intern: P136264

Solicită vizionarea proprietății

Alege o zi disponibilă

27 Decembrie
28 Decembrie
29 Decembrie
30 Decembrie

Alege un interval orar

8:00 - 12:00
12:00 - 15:00
15:00 - 18:00
18:00 - 21:00

Următoarele date de contact oferite de tine vor fi accesibile proprietarului:

Locație

Contactează utilizatorul

ID: 3839919

Teren de vanzare, zona Metro-Carcea, 992mp

Dolj / Carcea

55.000 €