Vânzări
Închirieri
Vânzare Teren, 14430 m²

Teren - Voronet | Gura Humorului | BUCOVINA

330.000 eur
ID 3467740
Terenuri | 14430 m²
Gura Humorului, Suceava / Periferie
Zona Periferie
Suprafață teren 14430 m²
Tip teren Pădure
Clasificare teren Intravilan
Front stradal 55 m

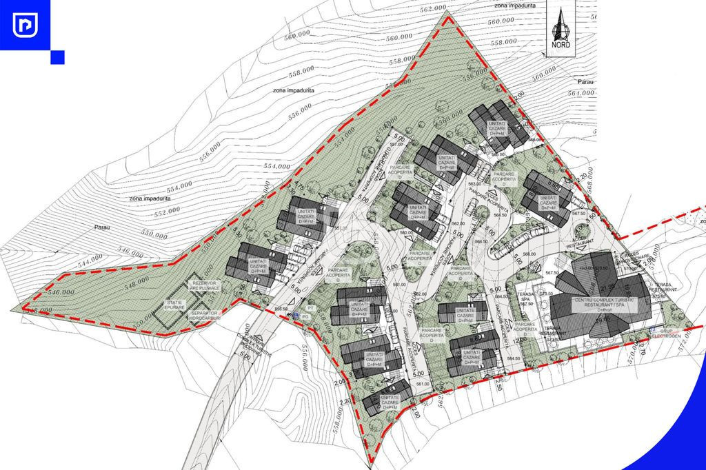
Complexul Turistic Bucovinean - Descoperă Bucovina într-un mod inovator!

Vrei să investești într-o oportunitate de afacere unică și atractivă? Te invităm să descoperi Complexul Turistic Bucovinean, o destinație turistică inovatoare care aduce în prim plan tradiția și ospitalitatea bucovineană.

Ce vei găsi în Complexul Turistic Bucovinean:
Planul de afaceri pentru construirea Complexului Turistic Bucovinean are ca scop dezvoltarea unei destinații turistice inovatoare și atractive, care să ofere servicii de cazare, recreere, alimentație și divertisment într-un mediu specific bucovinean.
Acest complex va consta din următoarele componente principale:
Clădirea Principală (Centru Complex Turistic):
Funcțiuni principale:
Recepție, Spații de primire a oaspeților, Piscină și Spa, Restaurant.
Funcțiuni secundare:
Birouri administrative, Spațiu comercial, Vestiare și grupuri sanitare pentru clienți.
Funcțiuni conexe:
Bucătărie pentru restaurant, vestiare și grupuri sanitare pentru personal, spații de depozitare, spații tehnice pentru utilități, spațiu pentru aprovizionare, spălătorie și curățătorie.

Case cu Unități de Cazare (20 bucăți):
Unități de cazare de tip cameră dublă cu două locuri.
Unități de cazare de tip apartament cu două camere și patru locuri.

Alte Caracteristici:
Acces auto prin drum de acces cu două benzi.
Acces vertical cu 2 ascensoare pentru persoane și marfă.
Utilizare a tehnologiei Braille pentru persoanele cu deficiențe de vedere pentru a interacționa cu echipamentele și computerele.
Echipamente de încălzire și energie regenerabilă, inclusiv panouri solare și pompe de căldură sol-apa.
Sanitare cu senzori de prezență pentru economisirea apei.
Inovația din acest proiect constă în:
Oferirea unor servicii de masă complete, inclusiv mic dejun, prânz și cină, precum și un restaurant bine echipat pentru pregătirea și servirea acestor mese.
Asigurarea intimității pentru oaspeți, cu unități de cazare individuale și acces separat.
Fiecare unitate de cazare are o bucătărie proprie, permițând oaspeților să-și pregătească propriile mese.
Disponibilitatea saunei umede și a saunei uscate.
Crearea unui "sat de vacanță" pentru perioade scurte de odihnă.
Parcări acoperite estetice cu spații de încărcare pentru mașinile electrice.
Implementarea unui sistem POS pentru centralizarea datelor între recepție, restaurant și bucătărie.
Management îmbunătățit pentru bucătărie, inclusiv marcarea produselor gata pregătite.
Energie electrică din surse regenerabile, inclusiv panouri solare.
Pompe de căldură eficiente pentru încălzirea apei și a clădirii.

Aceste inovații vor face din Complexul Turistic Bucovinean o destinație atractivă pentru turiști și vor contribui la creșterea veniturilor și a competitivității pe piața turistică.

Solicită vizionarea proprietății

Teren - Voronet | Gura Humorului | BUCOVINA

Vizionare
Alege o dată disponibilă:
Duminică
28 Decembrie
Luni
29 Decembrie
Marți
30 Decembrie
Miercuri
31 Decembrie
Anulează
success
Solicitarea ta a fost trimisă cu succes!
Vei fi contactat de către proprietar în cel mai scurt timp posibil.
  • Staţii de tren Distanţă
  • Gura Humorului Oraș 4.8 kilometri
Contactează utilizatorul
Teren - Voronet | Gura Humorului | BUCOVINA
Paval Robert Consultant imobiliar Paval Robert
07xx - AFIŞEAZĂ
ID 3467740
Vrei sa vinzi simplu si rapid?
Termenii și condițiile de pe site au fost actualizate. Detaliile complete sunt disponibile aici