Florin Alecu

Consultant imobiliar

Vânzare

2 camere | 55 m²

Tineretului - Parcul Carol apartament 2 camere

Bucuresti-Ilfov / Bucuresti
173.000 €

Rată estimată

3.647 Lei/lună

Avans (15%)

128.972 lei

Perioada împrumutului

30 ani

Specificații

Nu include TVA Da

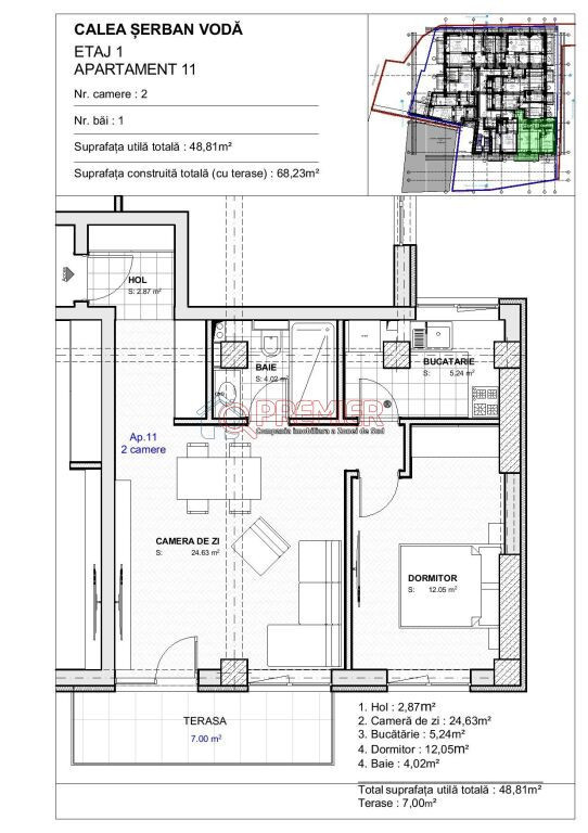
Număr camere 2

Suprafața utilă 55 m²

Etaj 1

An finalizare construcție 2025

Număr Băi 1

Posibilitate parcare Nu

Numărul de locuri de parcare 0

Ansamblu Rezidențial Nu

Ultimul etaj Nu

Niveluri imobil 4

Stare proprietate Nouă

Mobilat și Utilat 6

Compartimentare Decomandat

Confort 1

Tip imobil Bloc apartamente

Clasa energetică A

Tip tranzacție Vânzare

Tip vânzător Companie

Descoperiți un proiect rezidențial exclusivist, situat între Parcul Tineretului și Parcul Carol, una dintre cele mai frumoase zone centrale din București.
Imobilul, aflat în construcție, îmbină designul modern cu finisaje premium și tehnologii actuale pentru confort și eficiență energetică.

Beneficiați acum de oferta promoțională de lansare, disponibilă pentru o perioadă limitată.
Un proiect rar, care oferă proximitate față de natură și acces rapid la centrul orașului.

Pret fara TVA
Serviciul nou oferit de PREMIER Imobiliare! Solicita acum VIZIONARE ONLINE pentru aceasta proprietate!

COMISION 0%

Această proprietate se poate achiziționa prin orice tip de credit bancar.

Departamentul nostru financiar Premier Credit Hub vă stă la dispoziție GRATUIT (comision 0%) pentru:
- identificarea celei mai bune soluții de finanțare;
- întocmirea dosarului bancar complet;
- obținerea rapidă a creditului necesar achiziției.

Beneficiați de un serviciu ALL IN ONE, cu acces direct la ofertele tuturor băncilor comerciale din România.
Se acceptă inclusiv venituri din străinătate, astfel încât fiecare client să poată cumpăra în cele mai avantajoase condiții.

 Solicitați acum o simulare de credit direct din anunț sau cereți detalii consultantului Premier Imobiliare!

Solicită vizionarea proprietății

Alege o zi disponibilă

14 Martie
15 Martie
16 Martie
17 Martie

Alege un interval orar

8:00 - 12:00
12:00 - 15:00
15:00 - 18:00
18:00 - 21:00

Următoarele date de contact oferite de tine vor fi accesibile proprietarului:

Locație

Despre zona "Tineretului"

păreri exprimate de 153 de utilizatori, pe o scară de la 1 la 10

Află clasamentul acestui cartier
Sănătate și Siguranță

Sănătate și Siguranță

7.8

Sănătate 7.3

Siguranță 8.1

Calitate aer 6.9

Curățenie 7.2

Zone verzi 9.3

Cultură și Educație

Cultură și Educație

8.0

Cultură 7.2

Educație 8.4

Sport 8.4

Ambianță și Lifestyle

Ambianță și Lifestyle

7.1

Nivel de trai 7.5

Magazine 8.0

Localuri 7.6

Parcări 5.2

Zgomot 7.0

Transport în comun

Transport în comun

8.7

Autobuz 8.9

Tramvai 8.3

Metrou 8.9

Contactează utilizatorul

ID: 4143719

Tineretului - Parcul Carol apartament 2 camere

2 camere | 55 m² | Bucuresti-Ilfov / Bucuresti

173.000 €