BLITZ Romania

Consultant imobiliar

Vânzare

4 camere | 136 m²

Triplex, 4 camere, 2 bai, 2 terase, clasa energetica A, Dumb

Timis / Dumbravita
215.000 €

Rată estimată

4.629 Lei/lună

Avans (15%)

160.283 lei

Perioada împrumutului

30 ani

Specificații

Număr camere 4

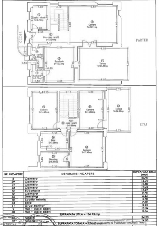
Suprafața utilă 136 m²

An finalizare construcție 2013

Niveluri imobil 1

Suprafață teren 244 m²

Număr Băi 2

Numărul de locuri de parcare 1

Stare proprietate Bună

Utilități Curent, Apă, Canalizare, Gaz, Climă

Tip tranzacție Vânzare

Tip vânzător Companie

O casă care se simte corect din primul pas. Luminoasă, primitoare și bine construită, acest triplex din Dumbrăvița este genul de proprietate care funcționează perfect atât ca locuință de familie, cât și ca investiție sigură pentru închiriere.

Cu o suprafață utilă de 136 mp, certificat energetic verde și toate utilitățile, casa oferă confort real și costuri foarte mici de întreținere, datorită pereților groși, izolați cu polistiren de 10 cm, și materialelor de calitate folosite.

Lumină, spațiu și stare de bine

Livingul este aerisit și cald, cu deschidere amplă către terasa parțial acoperită printr-o ușă culisantă de mari dimensiuni, care extinde natural zona de zi și creează senzația de spațiu deschis.
La etaj, luminatorul orizontal triplu-securizat aduce lumină naturală exact acolo unde contează, transformând zona de birou într-un spațiu ideal pentru lucru sau relaxare.

Ferestrele și luminatorul sunt protejate cu folii UV de cel mai mare randament, eliminând efectul de seră vara și păstrând un climat interior plăcut pe tot parcursul anului.

Compartimentare practică și echilibrată

Parter:

hol de acces

baie cu duș walk-in

bucătărie complet echipată

living luminos cu acces către terasă

Etaj:

spațiu de birou cu luminator

terasă

baie cu cadă

dormitor matrimonial cu dressing mobilat

dormitor secundar

Curtea este mică, intimă și ușor de întreținut, completată de o căsuță de depozitare.

Dotări care fac diferența (incluse)

parchet masiv din stejar

încălzire în pardoseală la parter

uși interioare din lemn masiv

tâmplărie exterioară din lemn masiv, tip olandez, cu geam termopan

aer condiționat 24.000 BTU

bucătărie Rovere cu soft-close

plită și cuptor Smeg

mașină de spălat vase încorporată

întrerupătoare digitale Gewiss

instalații sanitare premium, cu rezervoare încastrate Grohe

Mutare imediată sau randament imediat

Proprietatea se vinde complet mobilată și utilată, exact ca în prezentare. Este pregătită pentru mutare imediată sau pentru închiriere fără nicio investiție suplimentară. Compartimentarea, eficiența energetică și zona o fac foarte atractivă pentru piața de închiriere.

O casă luminoasă, corect construită și ușor de iubit — un spațiu care funcționează impecabil, indiferent dacă îl alegi ca „acasă” sau ca investiție. 

Vizionari disponibile din 16.03.2026
Cod ofertă / ID BLITZ: P165001
Id intern: P165001

Solicită vizionarea proprietății

Alege o zi disponibilă

10 Aprilie
11 Aprilie
12 Aprilie
13 Aprilie

Alege un interval orar

8:00 - 12:00
12:00 - 15:00
15:00 - 18:00
18:00 - 21:00

Următoarele date de contact oferite de tine vor fi accesibile proprietarului:

Locație

Contactează utilizatorul

ID: 4134168

Triplex, 4 camere, 2 bai, 2 terase, clasa energetica A, Dumb

4 camere | 136 m² | Timis / Dumbravita

215.000 €