Ciprian Coman

Consultant imobiliar

Închiriere

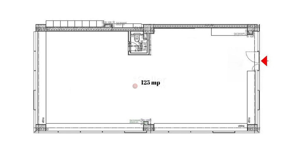
125 m²

Vad Comercial Ridicat

Brasov / Brasov
3.125 €

Specificații

Preț negociabil Da

Tip imobil Alte tipuri

Suprafața utilă 125 m²

Suprafață totală 144 m

An finalizare construcție 2022

Vitrină 16_0 m

Număr încăperi 1

Înălțime spațiu 3_0 m

Posibilitate parcare Nu

Stadiu construcție Finalizat

Tip tranzacție Închiriere

Tip vânzător Companie

Nu include TVA Da

Imobilul accesat este situat in zona ROMAN, in imediata apropiere a Urban Plaza.

LAYOUT:

Acesta este de tip open space.

- acces din strada;
- grup sanitar;

SUPRAFATA COMERCIALA VITRATA:

- 16 ml;

DOTARI:

- Centrala termica;
- Tamplarie aluminiu;
- Grup sanitar;


AVANTAJE:

- Suprafata generoasa;
- Zona cu vad comercial;
- Suprafata vitrata ampla.

DESTINAȚIE COMERCIALA:

- magazin vestimentar;
- show room;
- sediu firmă;
- cabinet stomatologic;
- centru infrumusetare.

FACILITATI SI SERVICII:

- Transport public, la 5m;
- Zona Relaxare;
- Receptie.

IMPREJURIMI:

- Spatiul este situat intr-o zona comerciala cu vad comercial, cu acces pietonal si auto intens.

DEZVOLTARE ZONA:

- Zona rezidentiala,
- Zona mixta - retail | rezidential,

NOTA:

Perioada Minima Inchiriere Acceptata: 12 luni;

NOTA:
Informatiile prezentate reflecta situatia reala a proprietatii, fara a constitui o oferta contractuala.
Aceste date au fost obtinute verbal, de la titularul de drept al imobilului.
Structura acestei prezentari nu poate fi reprodusa, fara acordul scris al The Seller and Partners.

Solicită vizionarea proprietății

Alege o zi disponibilă

28 Decembrie
29 Decembrie
30 Decembrie
31 Decembrie

Alege un interval orar

8:00 - 12:00
12:00 - 15:00
15:00 - 18:00
18:00 - 21:00

Următoarele date de contact oferite de tine vor fi accesibile proprietarului:

Locație

Despre zona "Astra"

păreri exprimate de 412 de utilizatori, pe o scară de la 1 la 10

Află clasamentul acestui cartier
Sănătate și Siguranță

Sănătate și Siguranță

7.7

Sănătate 7.6

Siguranță 8.0

Calitate aer 7.4

Curățenie 7.6

Zone verzi 7.8

Cultură și Educație

Cultură și Educație

7.1

Cultură 6.1

Educație 8.1

Sport 7.0

Ambianță și Lifestyle

Ambianță și Lifestyle

7.4

Nivel de trai 7.3

Magazine 8.3

Localuri 7.3

Parcări 7.0

Zgomot 7.3

Transport în comun

Transport în comun

8.4

Autobuz 8.4

Tramvai 0.0

Metrou 0.0

Contactează utilizatorul

ID: 3945900

Vad Comercial Ridicat

125 m² | Brasov / Brasov

3.125 €


Vezi și alte anunțuri imobiliare
Apartamente închiriere Brasov-bv - 13 Decembrie Case-vile închiriere Brasov-bv - 13 Decembrie Garsoniere închiriere Brasov-bv - 13 Decembrie Terenuri închiriere Brasov-bv - 13 Decembrie Apartamente închiriere Brasov-bv - 15 Noiembrie Case-vile închiriere Brasov-bv - 15 Noiembrie Garsoniere închiriere Brasov-bv - 15 Noiembrie Terenuri închiriere Brasov-bv - 15 Noiembrie Apartamente închiriere Brasov-bv - Astra Case-vile închiriere Brasov-bv - Astra Garsoniere închiriere Brasov-bv - Astra Terenuri închiriere Brasov-bv - Astra