Liviu Iordache

Consultant imobiliar

Vânzare

Vanzare teren Soseaua Fundeni

Bucuresti-Ilfov / Bucuresti
115.000 €

Rată estimată

2.520 Lei/lună

Avans (15%)

85.733 lei

Perioada împrumutului

30 ani

Specificații

Preț negociabil Da

Nu include TVA Nu

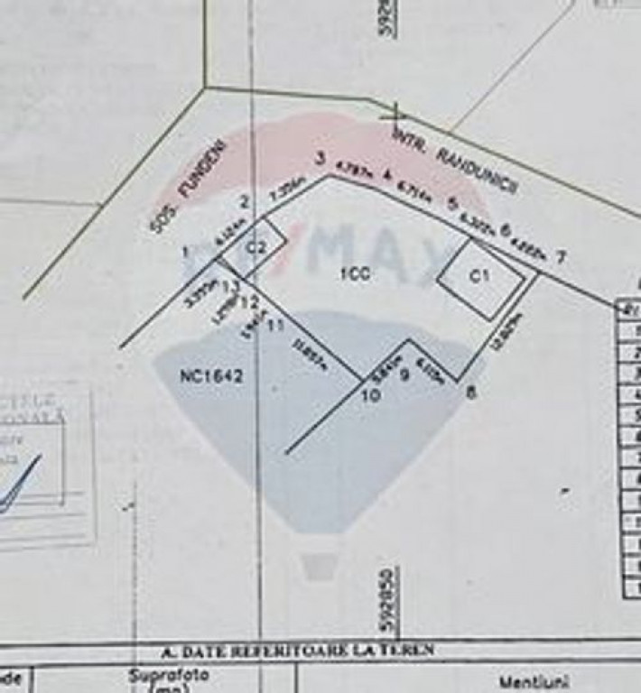
Suprafață teren 340 m²

Tip teren Construibil

Clasificare teren Intravilan

Front stradal 20 m

Construcție pe teren Nu

Utilități Curent, Apă, Canalizare, Gaz

Tip tranzacție Vânzare

Tip vânzător Companie

Va propunem spre vanzare un teren în suprafață de 340 mp, situat pe Șoseaua Fundeni, cu o deschidere de 22 metri. Toate utilitățile sunt disponibile la limita proprietății.
Terenul este ideal pentru construirea unei case sau a unui sptiu comercial.

Pentru mai multe detalii sau pentru a programa o vizionare, nu ezitați să ne contactați!

Solicită vizionarea proprietății

Alege o zi disponibilă

07 Decembrie
08 Decembrie
09 Decembrie
10 Decembrie

Alege un interval orar

8:00 - 12:00
12:00 - 15:00
15:00 - 18:00
18:00 - 21:00

Următoarele date de contact oferite de tine vor fi accesibile proprietarului:

Locație

Despre zona "Fundeni"

păreri exprimate de 68 de utilizatori, pe o scară de la 1 la 10

Află clasamentul acestui cartier
Sănătate și Siguranță

Sănătate și Siguranță

6.3

Sănătate 6.1

Siguranță 7.2

Calitate aer 6.1

Curățenie 6.4

Zone verzi 5.8

Cultură și Educație

Cultură și Educație

5.6

Cultură 4.6

Educație 6.4

Sport 6.0

Ambianță și Lifestyle

Ambianță și Lifestyle

6.2

Nivel de trai 6.3

Magazine 5.9

Localuri 6.2

Parcări 5.7

Zgomot 6.9

Transport în comun

Transport în comun

5.3

Autobuz 6.0

Tramvai 5.3

Metrou 4.7

Contactează utilizatorul

ID: 4057722

Vanzare teren Soseaua Fundeni

Bucuresti-Ilfov / Bucuresti

115.000 €


Vezi anunțuri și din categoriile