Radu Ungureanu

Consultant imobiliar

Vânzare

5+ camere | 1300 m²

Vila istorică consolidata Universitate - Gradina Icoanei -

Bucuresti-Ilfov / Bucuresti
3.000.000 €

Rată estimată

65.730 Lei/lună

Avans (15%)

2.236.500 lei

Perioada împrumutului

30 ani

Specificații

Număr camere 5+

Suprafața utilă 1300 m²

Suprafață teren 471 m²

An finalizare construcție 1939

Stare proprietate De renovat

Numărul de locuri de parcare 5

Nu include TVA Da

Utilități Curent, Apă, Canalizare, Gaz

Tip tranzacție Vânzare

Tip vânzător Companie

Pe una din străzile cu aer interbelic din centrul capitalei, in apropierea mai multor cladiri renumite si puncte de reper importante din oras, gasim o proprietate care, in urma unei ample renovări si consoldari poate sa devina oricand sediul unei firme de prestigiu. Asadar locația este una foarte accesibila, aceasta aflandu-se in apropierea statiei de metrou Piata Universității.
Construit in anul 1898 imobilul construit in stil neo-gotic impreuna cu cel modern formeaza un ansamblu arhitectural urbanistic ce poate deveni in curand un reper al zonei, ca urmare a unui amplu proces de restaurare si remodelare.
Elementele cele mai valoroase din punct de vedere stilistic ce scot in evidenta imobilul sunt: plastica arhitecturala a fatadelor si interioarelor, decoratiunile artistice, arcadele diverse, scara monumentala, luminatorul care acoperă holul principal de la etaj, tavanele ornamentale, boaseriile din lemn si de ce nu usa de la intrare.
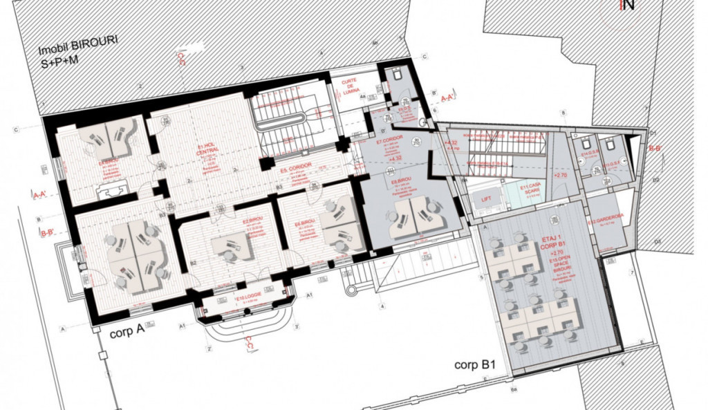
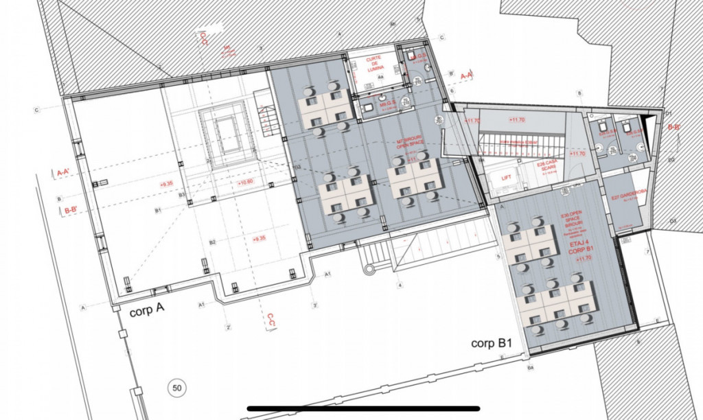
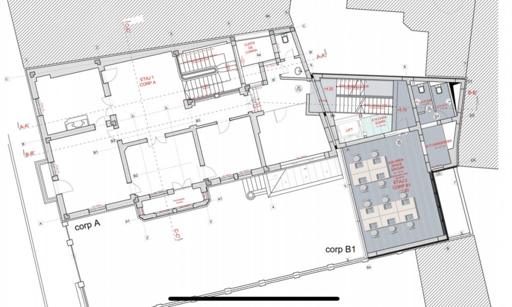
Constructia celor doua corpuri de cladire se desfasoara astfel:
Corpul A cladirea istorica este compusa din Subsol, Parter, 1 etaj și Mansarda
Corpul B cladirea moderna este compusa din Subsol, Parter si 4 etaje.
Cu o suprafata totala desfasurata de 1523 mp acest ansamblu arhitectural poate in curand sa mai adauge in patrimoniul capitalei o construcție care impreuna cu celelelate imobile renovate ale zonei sa recladeasca si sa redeseneze frumusetea clădirilor din centrul capitalei.
Id intern: P80123

Solicită vizionarea proprietății

Alege o zi disponibilă

07 Decembrie
08 Decembrie
09 Decembrie
10 Decembrie

Alege un interval orar

8:00 - 12:00
12:00 - 15:00
15:00 - 18:00
18:00 - 21:00

Următoarele date de contact oferite de tine vor fi accesibile proprietarului:

Locație

Despre zona "Universitate"

păreri exprimate de 25 de utilizatori, pe o scară de la 1 la 10

Află clasamentul acestui cartier
Sănătate și Siguranță

Sănătate și Siguranță

6.9

Sănătate 7.3

Siguranță 8.6

Calitate aer 4.6

Curățenie 6.8

Zone verzi 7.0

Cultură și Educație

Cultură și Educație

7.3

Cultură 7.7

Educație 7.9

Sport 6.3

Ambianță și Lifestyle

Ambianță și Lifestyle

6.8

Nivel de trai 7.4

Magazine 6.8

Localuri 9.0

Parcări 5.4

Zgomot 5.7

Transport în comun

Transport în comun

9.0

Autobuz 9.2

Tramvai 8.3

Metrou 9.4

Contactează utilizatorul

ID: 3249320

Vila istorică consolidata Universitate - Gradina Icoanei -

5+ camere | 1300 m² | Bucuresti-Ilfov / Bucuresti

3.000.000 €