Marina Farkas

Consultant imobiliar

Vânzare

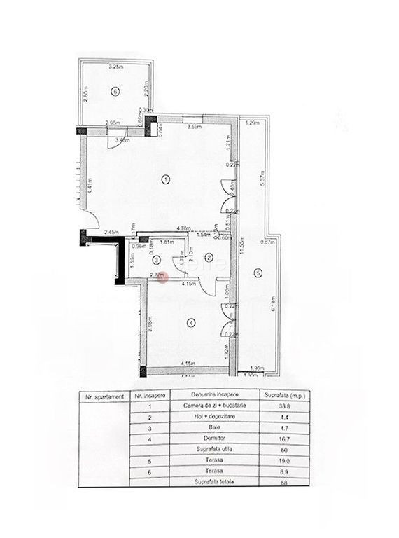
2 camere | 60 m²

Zona Rezidentiala de Interes

Brasov / Brasov
167.000 €

Rată estimată

3.659 Lei/lună

Avans (15%)

124.499 lei

Perioada împrumutului

30 ani

Specificații

Preț negociabil Nu

Suprafața utilă 60 m²

Număr camere 2

Tip imobil Bloc apartamente

Compartimentare Decomandat

Număr Băi 1

Etaj 5

Niveluri imobil 12+

An finalizare construcție 2022

Confort Lux

Numărul de locuri de parcare 1

Ansamblu Rezidențial Nu

Posibilitate parcare Da

Stare proprietate Nouă

Tip tranzacție Vânzare

Tip vânzător Companie

LOCALIZARE:
Acest imobil este situat in zona Tractorul, in imediata apropiere a mall Coresi..
COMPARTIMENTARE:
-	Zona de zi, care are o suprafata generoasa, dispune de acces la terasa;
-	Bucataria, de tip open space, fiind mobilata si dotata;
-	Dormitorul, care beneficiaza de priveliste aparte si deschidere la terasa;
-	Baia, aceast detine cada;
DOTARI:
-	centrala termica;
-	tamplarie PVC, cu geam termopan;
-	usa metalica;
-	aer conditionat;
-	loc de parcare suprateran.
Tranzactionarea proprietatii se va face cu mobilierul aferent prezentei ofertari.

IMPREJURIMI:
Imobilul este situat intr-o zona de blocuri, accesul auto, pana zona de centru a orasului facandu-se in cca.  10 minute.

ATRACTII ZONA: Magazine, restaurante, parcuri, școli, spitale.
ACCESIBILITATE: Transport public în apropiere | la aproximativ 10 m.
FORMA ACHIZITIONARE: Se accepta plata prin accesare credit.

NOTA:
Informatiile prezentate reflecta situatia reala a proprietatii, fara a constitui o oferta contractuala. 
Aceste date au fost obtinute verbal, de la titularul de drept al imobilului.

Structura acestei prezentari nu poate fi reprodusa, fara acordul scris al The Seller and Partners.

Solicită vizionarea proprietății

Alege o zi disponibilă

12 Decembrie
13 Decembrie
14 Decembrie
15 Decembrie

Alege un interval orar

8:00 - 12:00
12:00 - 15:00
15:00 - 18:00
18:00 - 21:00

Următoarele date de contact oferite de tine vor fi accesibile proprietarului:

Locație

Despre zona "Bartolomeu"

păreri exprimate de 301 de utilizatori, pe o scară de la 1 la 10

Află clasamentul acestui cartier
Sănătate și Siguranță

Sănătate și Siguranță

7.0

Sănătate 6.6

Siguranță 7.3

Calitate aer 7.0

Curățenie 7.2

Zone verzi 6.8

Cultură și Educație

Cultură și Educație

6.3

Cultură 5.9

Educație 7.2

Sport 6.0

Ambianță și Lifestyle

Ambianță și Lifestyle

6.8

Nivel de trai 6.9

Magazine 7.3

Localuri 6.4

Parcări 6.5

Zgomot 7.1

Transport în comun

Transport în comun

7.5

Autobuz 7.5

Tramvai 0.0

Metrou 0.0

Contactează utilizatorul

ID: 4098678

Zona Rezidentiala de Interes

2 camere | 60 m² | Brasov / Brasov

167.000 €


Vezi și alte anunțuri imobiliare
Apartamente vânzare Brasov-bv - 13 Decembrie Case-vile vânzare Brasov-bv - 13 Decembrie Garsoniere vânzare Brasov-bv - 13 Decembrie Terenuri vânzare Brasov-bv - 13 Decembrie Apartamente vânzare Brasov-bv - 15 Noiembrie Case-vile vânzare Brasov-bv - 15 Noiembrie Garsoniere vânzare Brasov-bv - 15 Noiembrie Terenuri vânzare Brasov-bv - 15 Noiembrie Apartamente vânzare Brasov-bv - Astra Case-vile vânzare Brasov-bv - Astra Garsoniere vânzare Brasov-bv - Astra Terenuri vânzare Brasov-bv - Astra