Ioan Lungu

Consultant imobiliar

Vânzare

5+ camere | 900 m²

Zona Unirii - Imobil generos cu 30 camere si teren de 175...

Bucuresti-Ilfov / Bucuresti
1.500.000 €

Rată estimată

32.865 Lei/lună

Avans (15%)

1.118.250 lei

Perioada împrumutului

30 ani

Specificații

Număr camere 5+

Suprafața utilă 900 m²

Suprafață teren 1750 m²

An finalizare construcție 1950

Stare proprietate Bună

Niveluri imobil 12+

Număr Băi 3+

Posibilitate parcare Da

Numărul de locuri de parcare 5-10

Utilități Curent, Apă, Canalizare, Gaz, Încălzire, Climă

Preț negociabil Nu

Ansamblu Rezidențial Nu

Tip tranzacție Vânzare

Tip vânzător Companie

ID Proprietate: CP693905
---------------------------------------------------------------------------------
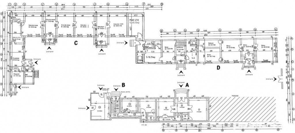
- In centrul Mun. Bucuresti, zona Unirii - Matei Basarab, curte de 1.750 mp cu doua cladiri, in total 1.000 mp construiti si o suprafata utila de 900 mp;
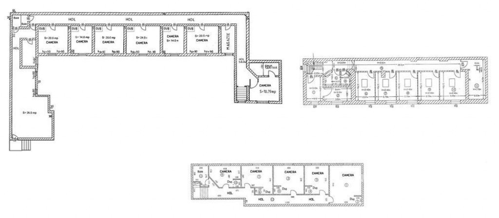
- Exista 6 ntrari pentru acces la parter si mansarda, cu destinatie pretabila pentru hostel, pensiune, birouri, cazare personal, camin si orice alt domeniu unde este util un numar mare de camere. Imobilul se compune din 30 camere si 20 bai amenajate , 90% mobilate plus holuri si anexe rezultand un total de 70 incaperi.
- Utilitati existente in spatiu: Apa; Canalizare; Curent electric; Gaze naturale;
- Dotari existente in spatiu: Contorizare separata (apa, electricitate, gaze naturale); Centrala termica proprie; Grupuri sanitare; Bucatarii; Pivnite la subsol etc.;
- Exista 10 locuri de parcare;
- Primul imobil este alcatuit din doua corpuri de cladire, A si B, avand S+P+M, avand o suprafata utila de 325 mp si o suprafata utila de 300 mp. Acest corp de cladire dispune de urmatoarele: 9 camere, 1 bucatarie, 5 dusuri, 1 grup sanitar, 1 camera la subsol (pivnita). Finizajele interioare sunt la un nivel standard, obisnuit;
- Al doilea imobil este alcatuit din doua corpuri de cladire, C si D, avand S+P+M, avand o suprafata construita de 675 mp si o suprafata utila de 600 mp. Acest corp de cladire dispune de urmatoarele: 26 camere, 2 bucatarii, 6 dusuri, 7 bai, 2 magazii, 3 pivnite totalizand 75 mp si 3 scari de acces la mansarda. Corpul D dispune de finisaje bune .Odata cu acest imobil imobil se cesioneaza o asociatie care detine spatiul prin contract, fiind luat in inchiriere de la Primaria Capitalei, incepand cu anul 2001;
- Exista toate actele si avizele necesare;
- Proprietatea dispune de cadastru si este intabulata;
- Terenul este cu Legea nr. 112 dar foloseste curtea in comun cu cel de-al doilea imobil.

Solicită vizionarea proprietății

Alege o zi disponibilă

20 Decembrie
21 Decembrie
22 Decembrie
23 Decembrie

Alege un interval orar

8:00 - 12:00
12:00 - 15:00
15:00 - 18:00
18:00 - 21:00

Următoarele date de contact oferite de tine vor fi accesibile proprietarului:

Locație

Despre zona "Unirii"

păreri exprimate de 76 de utilizatori, pe o scară de la 1 la 10

Află clasamentul acestui cartier
Sănătate și Siguranță

Sănătate și Siguranță

6.7

Sănătate 7.3

Siguranță 7.9

Calitate aer 5.4

Curățenie 6.5

Zone verzi 6.6

Cultură și Educație

Cultură și Educație

7.2

Cultură 7.3

Educație 7.1

Sport 7.1

Ambianță și Lifestyle

Ambianță și Lifestyle

7.3

Nivel de trai 7.4

Magazine 7.8

Localuri 8.6

Parcări 6.0

Zgomot 6.4

Transport în comun

Transport în comun

8.4

Autobuz 8.5

Tramvai 8.2

Metrou 8.4

Contactează utilizatorul

ID: 1752444

Zona Unirii - Imobil generos cu 30 camere si teren de 175...

5+ camere | 900 m² | Bucuresti-Ilfov / Bucuresti

1.500.000 €