Vladislav Chirev

Consultant imobiliar

Vânzare

2 camere | 52 m²

2 camere cu parcare subterană în ONE Herastrau Plaza

Bucuresti-Ilfov / Bucuresti
310.000 €

Rată estimată

6.706 Lei/lună

Avans (15%)

231.105 lei

Perioada împrumutului

30 ani

Specificații

Număr camere 2

Suprafața utilă 52 m²

Compartimentare Semidecomandat

Confort 1

An finalizare construcție 2018

Tip imobil Bloc apartamente

Niveluri imobil 10

Număr Băi 1

Numărul de locuri de parcare 1

Etaj 7

Stare proprietate Bună

Mobilat și Utilat Complet

Tip tranzacție Vânzare

Tip vânzător Companie

R.E.A. Imobiliare 
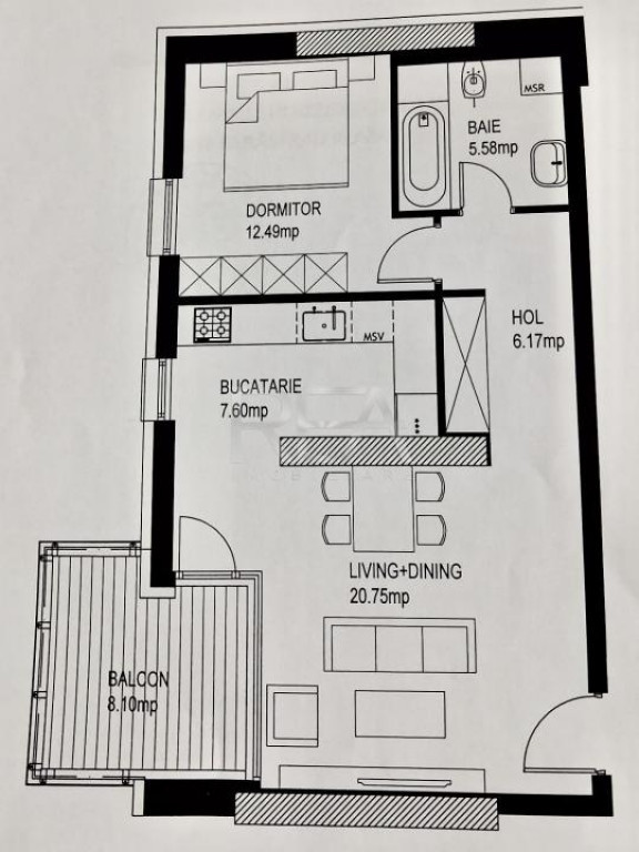
Apartament 2 camere, semidecomandat, la etajul 7 din 10, în complexul One Herastrau Plaza, construit in anul 2018. 
- Suprafață totală de 60,69 mp: 52,59 mp utili+ 8,1 mp balcon.
- Configuratie: dormitor, living cu bucătărie open space, hol cu spațiu pentru depozitare, baie și balcon.
- Incălzire în pardoseală asigurată de centrala de imobil și climatizare prin ventiloconvectoare.
- Apartamentul se vinde mobilat și utilat.
- Un loc de parcare subteran este inclus in pret.

Acces rapid la transportul public: 2 minute până la statiile STB, 7 minute până la metrou Aurel Vlaicu.
Localizare: la câțiva pași de Parcul Bordei, Parcul Herastrau, Promenada Mall și birourile Globalworth, acces rapid cu masina la Aeroportul International Henri Coandă
Contactează-ne pentru detalii suplimentare și programarea unei vizionări private. Cod proprietate P10123.
Id intern: P10123

Solicită vizionarea proprietății

Alege o zi disponibilă

15 Februarie
16 Februarie
17 Februarie
18 Februarie

Alege un interval orar

8:00 - 12:00
12:00 - 15:00
15:00 - 18:00
18:00 - 21:00

Următoarele date de contact oferite de tine vor fi accesibile proprietarului:

Locație

Despre zona "Herastrau"

păreri exprimate de 5 de utilizatori, pe o scară de la 1 la 10

Află clasamentul acestui cartier
Sănătate și Siguranță

Sănătate și Siguranță

7.6

Sănătate 8.0

Siguranță 7.5

Calitate aer 7.0

Curățenie 6.5

Zone verzi 9.0

Cultură și Educație

Cultură și Educație

7.4

Cultură 7.5

Educație 7.5

Sport 7.3

Ambianță și Lifestyle

Ambianță și Lifestyle

6.8

Nivel de trai 6.5

Magazine 6.3

Localuri 7.5

Parcări 6.0

Zgomot 7.5

Transport în comun

Transport în comun

6.2

Autobuz 6.5

Tramvai 5.5

Metrou 6.5

Contactează utilizatorul

ID: 4127541

2 camere cu parcare subterană în ONE Herastrau Plaza

2 camere | 52 m² | Bucuresti-Ilfov / Bucuresti

310.000 €