Birou Vanzari

Consultant imobiliar

Vânzare

2 camere | 63 m²

2 camere DECOMANDAT, loc parcare inclus, buc mobilat/utilat complet

Bucuresti-Ilfov / Bucuresti
155.000 €

Rată estimată

3.396 Lei/lună

Avans (15%)

115.553 lei

Perioada împrumutului

30 ani

Specificații

Număr camere 2

Suprafața utilă 63 m²

Compartimentare Decomandat

Confort Lux

Etaj Parter

An finalizare construcție 2022

Tip imobil Bloc apartamente

Stare proprietate Nouă

Tip tranzacție Vânzare

Tip vânzător Companie

Apartament 2 camere cu terasă – The Class Apartments 3, Bd. Pipera

Apartament cu 2 camere, situat în ansamblul rezidențial The Class Apartments 3, pe Bulevardul Pipera, într-o zonă liniștită și bine conectată, aflată în plină dezvoltare rezidențială.

Clădirea este nouă, finalizată în 2023, și dispune de lift, subsol, parter și 4 etaje, construită la standarde moderne, cu finisaje de calitate și compartimentări eficiente.
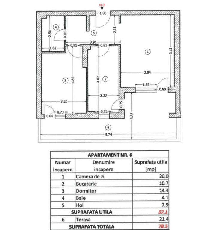
Apartamentul este amplasat la parter și are o suprafață utilă de 57,1 mp, la care se adaugă o terasă de 6 mp, rezultând o suprafață totală utilă de 63,1 mp.

Compartimentare:
Living: 19,2 mp
Bucătărie: 10,7 mp
Dormitor: 14,4 mp
Baie: 4,1 mp
Hol intrare: 7,9 mp

Locuința se vinde complet finisată, cu toate corpurile de iluminat incluse, bucătărie complet mobilată și utilată cu electrocasnice, și un loc de parcare inclus în preț.

Apartamentul este luminos, bine compartimentat și oferă confortul ideal pentru un cuplu sau o persoană activă care își dorește un spațiu modern și funcțional, într-o zonă verde și accesibilă din nordul capitalei.

Solicită vizionarea proprietății

Alege o zi disponibilă

27 Decembrie
28 Decembrie
29 Decembrie
30 Decembrie

Alege un interval orar

8:00 - 12:00
12:00 - 15:00
15:00 - 18:00
18:00 - 21:00

Următoarele date de contact oferite de tine vor fi accesibile proprietarului:

Locație

Despre zona "Pipera"

păreri exprimate de 48 de utilizatori, pe o scară de la 1 la 10

Află clasamentul acestui cartier
Sănătate și Siguranță

Sănătate și Siguranță

7.0

Sănătate 6.5

Siguranță 7.8

Calitate aer 7.3

Curățenie 7.0

Zone verzi 6.4

Cultură și Educație

Cultură și Educație

6.1

Cultură 5.0

Educație 7.0

Sport 6.4

Ambianță și Lifestyle

Ambianță și Lifestyle

6.8

Nivel de trai 7.2

Magazine 6.6

Localuri 6.4

Parcări 6.4

Zgomot 7.4

Transport în comun

Transport în comun

5.4

Autobuz 5.5

Tramvai 5.1

Metrou 5.6

Contactează utilizatorul

ID: 4071830

2 camere DECOMANDAT, loc parcare inclus, buc mobilat/utilat complet

2 camere | 63 m² | Bucuresti-Ilfov / Bucuresti

155.000 €