Cristian Nistor

Consultant imobiliar

Vânzare

2 camere | 59 m²

2 camere-Decomandat-Salaj

Bucuresti-Ilfov / Bucuresti
100.000 €

Rată estimată

2.163 Lei/lună

Avans (15%)

74.550 lei

Perioada împrumutului

30 ani

Specificații

Număr camere 2

Suprafața utilă 59 m²

Compartimentare Decomandat

Confort 1

An finalizare construcție 1990

Tip imobil Bloc apartamente

Niveluri imobil 9

Număr Băi 1

Etaj 2

Stare proprietate Bună

Mobilat și Utilat Nemobilat

Tip tranzacție Vânzare

Tip vânzător Companie

REA Imobiliare va propune spre vanzare un apartament decomandat cu 2 camere situat la etajul 2 din 9 intr-un bloc construit in 1990 care nu figureaza cu risc seismic, la doar cativa pasi de Kaufland Bucuresti Ferentari,, Scoala Gimnaziala 135 si statia de tranvai Soseaua Salaj.
Incalzirea se realizeaza prin termoficare, calorifere si aer conditionat.
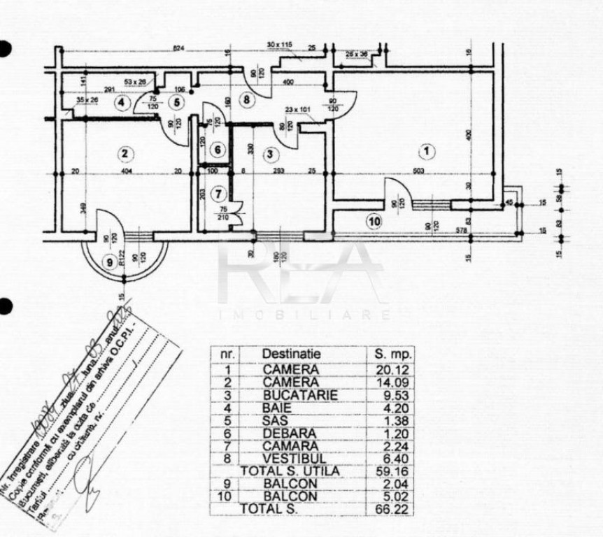
Compartimentare eficienta-decomandat- avand urmatoarea configuratie: hol, camera,dormitor,bucatarie,baie.
Suprafata totala utila a apartamentului este de 66,22mp care include si cele doua balcoane, unul de 2,04mp si celalat de 5,02mp
Apartamentul necesita renovare.
In zona aveti toate facilitatile: Institutii de invatamant, Magazine, Restaurante, Spatii verzi, sali de fitness, mijloace de transport in comun.
Zona Linistita, scara curata, administratia implicata.

Pentru mai multe detalii dar si pentru a stabilii o intalnire, ne puteti contacta specificand codul de identificare P10130 
Id intern: P10130

Solicită vizionarea proprietății

Alege o zi disponibilă

13 Februarie
14 Februarie
15 Februarie
16 Februarie

Alege un interval orar

8:00 - 12:00
12:00 - 15:00
15:00 - 18:00
18:00 - 21:00

Următoarele date de contact oferite de tine vor fi accesibile proprietarului:

Locație

Despre zona "Rahova"

păreri exprimate de 707 de utilizatori, pe o scară de la 1 la 10

Află clasamentul acestui cartier
Sănătate și Siguranță

Sănătate și Siguranță

6.4

Sănătate 6.7

Siguranță 7.3

Calitate aer 6.2

Curățenie 6.0

Zone verzi 5.9

Cultură și Educație

Cultură și Educație

6.2

Cultură 5.1

Educație 7.2

Sport 6.4

Ambianță și Lifestyle

Ambianță și Lifestyle

6.6

Nivel de trai 6.8

Magazine 7.9

Localuri 6.3

Parcări 5.4

Zgomot 6.6

Transport în comun

Transport în comun

6.9

Autobuz 7.9

Tramvai 7.8

Metrou 4.9

Contactează utilizatorul

ID: 4127784

2 camere-Decomandat-Salaj

2 camere | 59 m² | Bucuresti-Ilfov / Bucuresti

100.000 €