George Mihai Niculcea

Consultant imobiliar

Vânzare

4 camere | 97 m²

3 Camere 106 m.p. | Parcare | Cotroceni Smart Residence - Zo

Bucuresti-Ilfov / Bucuresti
328.000 €

Rată estimată

7.186 Lei/lună

Avans (15%)

244.524 lei

Perioada împrumutului

30 ani

Specificații

Număr camere 4

Suprafața utilă 97 m²

Compartimentare Decomandat

Confort 1

An finalizare construcție 2018

Tip imobil Bloc apartamente

Niveluri imobil 12

Număr Băi 2

Numărul de locuri de parcare 1

Nu include TVA Da

Etaj 12

Stare proprietate Bună

Mobilat și Utilat Complet

Tip tranzacție Vânzare

Tip vânzător Companie

Pretul este + TVA!!!
REA Imobiliare va ofera spre vanzare un apartament cu 3 camere, situat in zona Grozavesti, in vecinatatea sectiei 3 Politie.
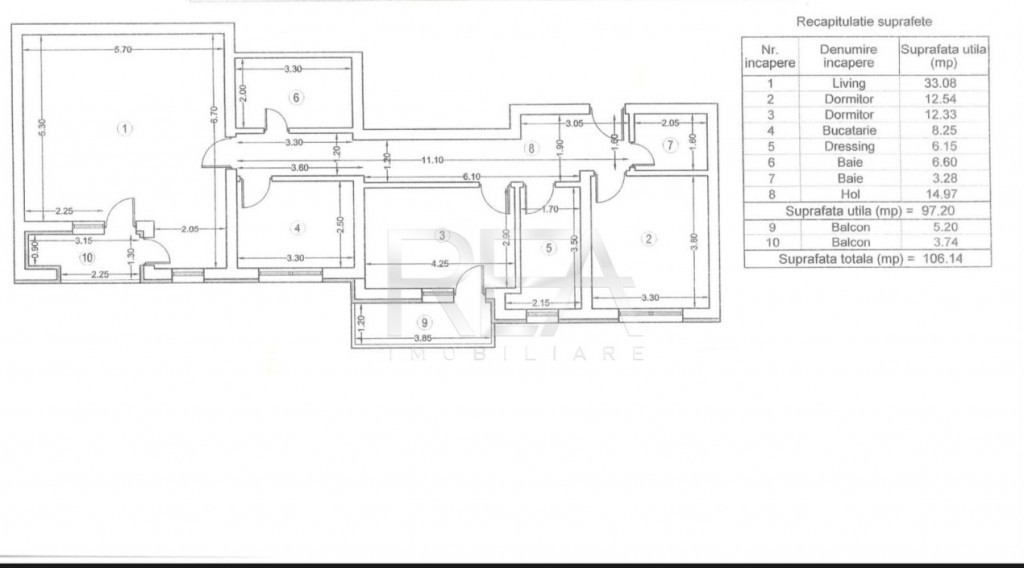
Imobilul se afla intr-un bloc de apartamente, construit in anul 2018, la etajul 12/12 si detine o suprafata totala de 106.14 m.p, din care suprafata utila este 97.2 m.p si balcoane in suprafata de 8.94 m.p.
Locuinta este alcatuita din doua dormitoare, un living, o camera dressing, o bucatarie, un hol, doua bai si doua balcoane.
Apartamentul se vinde complet mobilat si utilat.
Locul de parcare se afla la subteran, iar pretul acestuia este 20.000 euro + tva.

Confortul termic este realizat cu ajutorul centralei proprii pe gaz.
In imediata apropiere se intalnesc puncte farmaceutice, medicale, comerciale, educationale, de divertisment, bancare, parcuri.
Accesul la mijloacele de transport in comun facil 5 minute pana la statia STB Facultatea de Filosofie sau 10-12 minute pana la statia de metrou Grozavesti.

Se accepta toate modalitatile de plata.
Informatiile tehnice au caracter orientativ, acestea fiind preluate de la proprietari.
Pentru mai multe detalii si vizionari, ne puteti contacta telefonic, specificand codul de identificare P9207
Id intern: P9207

Solicită vizionarea proprietății

Alege o zi disponibilă

08 Decembrie
09 Decembrie
10 Decembrie
11 Decembrie

Alege un interval orar

8:00 - 12:00
12:00 - 15:00
15:00 - 18:00
18:00 - 21:00

Următoarele date de contact oferite de tine vor fi accesibile proprietarului:

Locație

Despre zona "Grozavesti"

păreri exprimate de 31 de utilizatori, pe o scară de la 1 la 10

Află clasamentul acestui cartier
Sănătate și Siguranță

Sănătate și Siguranță

6.4

Sănătate 5.8

Siguranță 7.8

Calitate aer 6.1

Curățenie 6.9

Zone verzi 5.5

Cultură și Educație

Cultură și Educație

6.0

Cultură 5.8

Educație 6.1

Sport 6.2

Ambianță și Lifestyle

Ambianță și Lifestyle

6.5

Nivel de trai 6.6

Magazine 6.8

Localuri 7.1

Parcări 5.3

Zgomot 6.5

Transport în comun

Transport în comun

7.8

Autobuz 7.1

Tramvai 8.1

Metrou 8.4

Contactează utilizatorul

ID: 4083004

3 Camere 106 m.p. | Parcare | Cotroceni Smart Residence - Zo

4 camere | 97 m² | Bucuresti-Ilfov / Bucuresti

328.000 €