Georgiana Lixandru

Consultant imobiliar

Vânzare

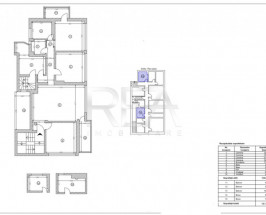
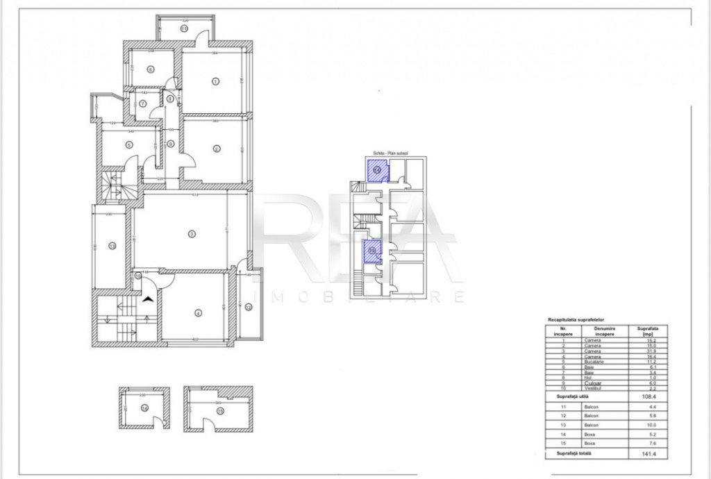
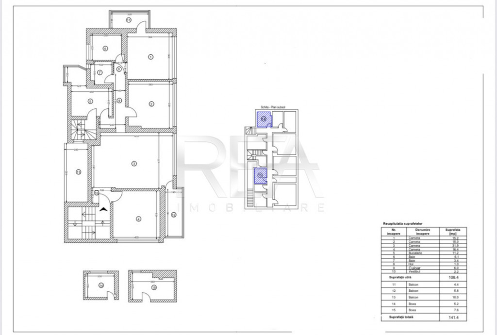
4 camere | 108 m²

Eleganță interbelică reinventată –4 camere 141 mp Sec

Bucuresti-Ilfov / Bucuresti
450.000 €

Rată estimată

9.859 Lei/lună

Avans (15%)

335.475 lei

Perioada împrumutului

30 ani

Specificații

Număr camere 4

Suprafața utilă 108 m²

Compartimentare Decomandat

Confort 1

An finalizare construcție 1936

Tip imobil Bloc apartamente

Niveluri imobil 3

Număr Băi 2

Etaj 1

Stare proprietate Bună

Tip tranzacție Vânzare

Tip vânzător Companie

R.E.A. Imobiliare
Apartament interbelic de 141 mp, aflat în inima sectorului 1, pe distinsul Bulevard Alexandru Ioan Cuza la câțiva pași de Piața Victoriei și Gara de Nord. Într-un București care respiră istorie și modernitate deopotrivă, puține locuri pot spune o poveste la fel de frumoasă ca acest apartament decomandat de 4 camere.

Aici, fiecare detaliu poartă amprenta rafinamentului autentic: de la structura solidă din beton și cărămidă a clădirii din 1936, până la tavanele înalte de 3 metri și ferestrele de 3,60 de metri lățime care inundă camerele în lumină naturală.
Doar patru apartamente în întregul imobil — o comunitate restrânsă, selectă, unde liniștea și intimitatea sunt parte din design.

Un apartament care spune o poveste, dar trăiește prezentul

Situat la etajul 1/S+2E+M, apartamentul ocupă întregul nivel și oferă două intrări: una principală, elegantă, și una secundară de serviciu, perfect gândită pentru accesul discret către spălătorie, boxe și grădina comună, un colț verde al orașului unde timpul pare că încetinește.

Interiorul, complet renovat în 2017, este o expresie a echilibrului între eleganța clasică și funcționalitatea modernă.

Livingul generos de 31,90 mp invită la socializare și relaxare
Trei dormitoare spațioase, fiecare între 15 și 16,4 mp

Dormitor matrimonial cu baie proprie și balcon
Două băi rafinate, finisaje premium
Bucătărie complet echipată
Trei balcoane și două boxe pentru depozitare inteligentă
Un spațiu pentru cei care aleg calitatea, nu compromisurile
Localizare excelenta – rafinament, acces, echilibru

Pe o stradă elegantă și liniștită, dar în același timp aproape de tot ce contează:
Piața Victoriei, Parcul Herăstrău, Gara de Nord, centre comerciale, restaurante, transport public – toate la câțiva pași.
Locatarii beneficiază de parcare pentru riverani chiar în fața imobilului și de un acces facil către metrou, tramvai, autobuz și tren – o conexiune perfectă între intimitate și vibrația orașului.
Acces la transportul în comun-> 2 minute pana la statiile STB sau 8 minute pana la stația de metrou Gara de Nord.


Aceasta nu este doar o proprietate. Este o declarație de stil – pentru cei care știu să aprecieze autenticitatea, arhitectura clasică și confortul premium, într-unul dintre cele mai exclusiviste cartiere din București, Sectorul 1.

Pentru detalii si vizionari, vă rugăm să ne contactați, specificand codul de identificare P9035.
Id intern: P9035

Solicită vizionarea proprietății

Alege o zi disponibilă

27 Decembrie
28 Decembrie
29 Decembrie
30 Decembrie

Alege un interval orar

8:00 - 12:00
12:00 - 15:00
15:00 - 18:00
18:00 - 21:00

Următoarele date de contact oferite de tine vor fi accesibile proprietarului:

Locație

Despre zona "P-ta Victoriei"

păreri exprimate de 23 de utilizatori, pe o scară de la 1 la 10

Află clasamentul acestui cartier
Sănătate și Siguranță

Sănătate și Siguranță

7.6

Sănătate 8.4

Siguranță 8.5

Calitate aer 5.2

Curățenie 8.0

Zone verzi 7.7

Cultură și Educație

Cultură și Educație

7.0

Cultură 6.6

Educație 7.6

Sport 6.7

Ambianță și Lifestyle

Ambianță și Lifestyle

6.0

Nivel de trai 7.2

Magazine 5.8

Localuri 7.1

Parcări 4.0

Zgomot 6.0

Transport în comun

Transport în comun

8.6

Autobuz 8.3

Tramvai 8.8

Metrou 8.8

Contactează utilizatorul

ID: 4076283

Eleganță interbelică reinventată –4 camere 141 mp Sec

4 camere | 108 m² | Bucuresti-Ilfov / Bucuresti

450.000 €