Georgiana Lixandru

Consultant imobiliar

Vânzare

3 camere | 72 m²

3 Camere | Piata Victoriei | Parter în vilă interbelică

Bucuresti-Ilfov / Bucuresti
249.000 €

Rată estimată

5.361 Lei/lună

Avans (15%)

185.630 lei

Perioada împrumutului

30 ani

Specificații

Număr camere 3

Suprafața utilă 72 m²

Compartimentare Semidecomandat

Confort 1

An finalizare construcție 1900

Tip imobil Casă / Vilă

Niveluri imobil 1

Număr Băi 2

Etaj Parter

Stare proprietate Bună

Mobilat și Utilat Complet

Tip tranzacție Vânzare

Tip vânzător Companie

R.E.A. Imobiliare
Apartament cu personalitate, situat la parterul unei vile istorice (P+1), semnată de arhitectul Alexandru Referendaru. 
Proprietatea se află într-una dintre cele mai bune zone ale Capitalei – Victoriei, într-o curte comună de aproximativ 200 mp, perfectă pentru relaxare.

 Detalii proprietate
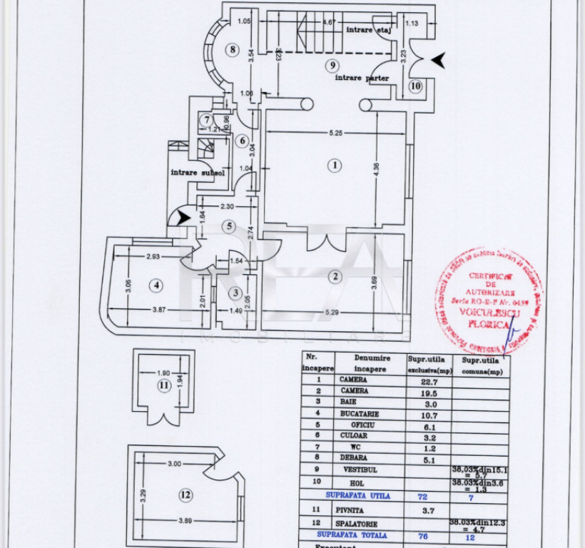
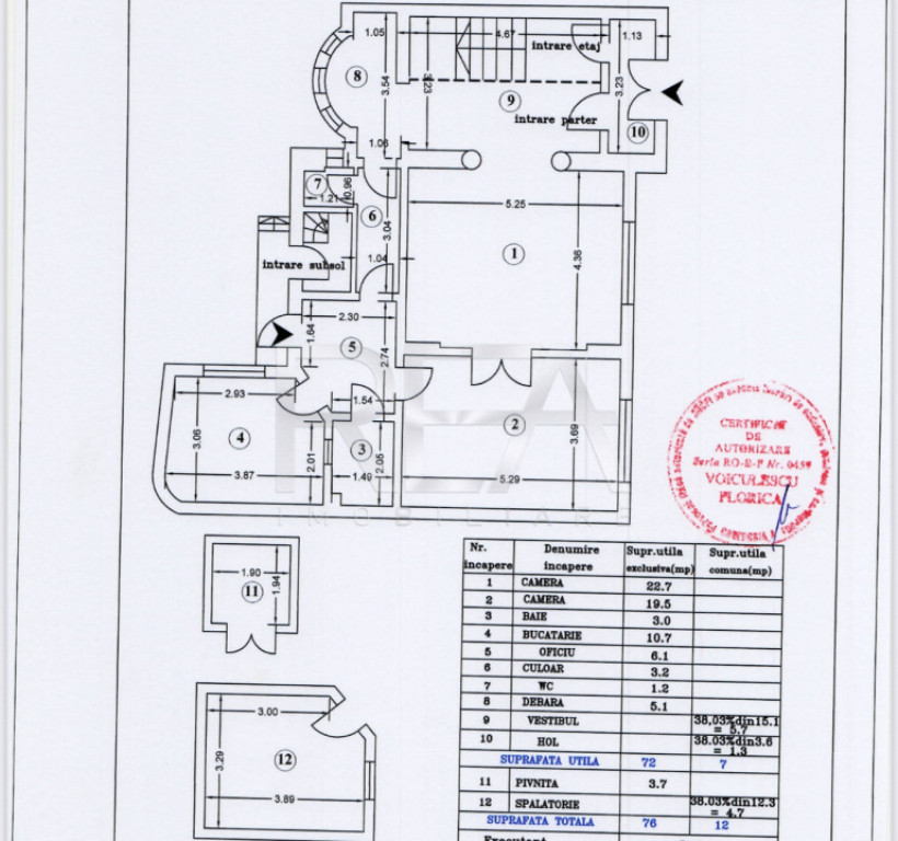
	•	Suprafață utilă: 72 mp
	•	Compartimentare circulară, unică, cu un flux natural al spațiilor
	•	Living generos: 22,7 mp
	•	Dormitor principal: 19,5 mp
	•	Dormitor secundar: 10,7 mp
	•	Înălțimea tavanelor: 3,5 m – spațiu aerisit, elegant, specific arhitecturii de început de secol
	•	Centrala proprie & aer condiționat – confort în orice sezon
       •.      Cladire expertizata, incadrată la U2

✨ Avantaje & Caracteristici
	•	Vila istorică cu o estetică aparte și o atmosferă autentică
	•	Spații ample, luminoase și proporții impresionante
	•	Curte comună mare, rar întâlnită în centrul orașului
	•	Apartament cu peste 100 de ani de istorie, păstrat cu grijă
	•	Construcție solidă, cu compartimentare ce permite multiple destinații: locuință, birou, cabinet etc.

???? Locație de top – Victoriei

Poziționat strategic, în imediata apropiere a:
	•	Stații STB 3 minute, Metrou Piața Victoriei - 8 minute
	•	Restaurante & cafenele
	•	Centre comerciale
	•	Instituții culturale și zone de interes urban

Un mix rafinat de istorie, arhitectură și funcționalitate modernă, perfect pentru cei care caută o locuință altfel – cu stil, poveste și valoare.

 Pentru detalii și programarea unei vizionări, vă rugăm să ne contactați, menționând codul de identificare P9597
Id intern: P9597

Solicită vizionarea proprietății

Alege o zi disponibilă

11 Aprilie
12 Aprilie
13 Aprilie
14 Aprilie

Alege un interval orar

8:00 - 12:00
12:00 - 15:00
15:00 - 18:00
18:00 - 21:00

Următoarele date de contact oferite de tine vor fi accesibile proprietarului:

Locație

Despre zona "P-ta Victoriei"

păreri exprimate de 23 de utilizatori, pe o scară de la 1 la 10

Află clasamentul acestui cartier
Sănătate și Siguranță

Sănătate și Siguranță

7.6

Sănătate 8.4

Siguranță 8.5

Calitate aer 5.2

Curățenie 8.0

Zone verzi 7.7

Cultură și Educație

Cultură și Educație

7.0

Cultură 6.6

Educație 7.6

Sport 6.7

Ambianță și Lifestyle

Ambianță și Lifestyle

6.0

Nivel de trai 7.2

Magazine 5.8

Localuri 7.1

Parcări 4.0

Zgomot 6.0

Transport în comun

Transport în comun

8.6

Autobuz 8.3

Tramvai 8.8

Metrou 8.8

Contactează utilizatorul

ID: 4105585

3 Camere | Piata Victoriei | Parter în vilă interbelică

3 camere | 72 m² | Bucuresti-Ilfov / Bucuresti

249.000 €