Alexandru SANDU

Consultant imobiliar

Vânzare

4 camere | 115 m²

Ansamblu rezidențial nou – 15 case moderne | Trivale –

Arges / Pitesti
136.400 €

Rată estimată

2.951 Lei/lună

Avans (15%)

101.686 lei

Perioada împrumutului

30 ani

Specificații

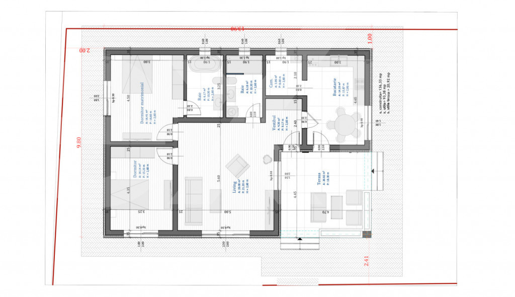
Număr camere 4

Suprafața utilă 115 m²

An finalizare construcție 2026

Suprafață teren 400 m²

Număr Băi 2

Numărul de locuri de parcare 2

Comision cumpărător 0%

Nu include TVA Da

Stare proprietate În construcție

Utilități Curent, Apă, Canalizare, Gaz

Tip tranzacție Vânzare

Tip vânzător Companie

ID: EXP524. Compania imobiliara iNEX | eXp vă propune spre vânzare un ansamblu rezidențial nou, format din 15 case moderne, situat în Trivale – zona Platou, una dintre cele mai apreciate și căutate zone rezidențiale din Pitești. Proiectul este conceput pentru confort, intimitate și calitate a construcției, cu finalizare estimată la sfârșitul anului 2026.

Caracteristici generale:
Număr unități: 15 case individuale
Suprafață utilă: 115 mp
Regim de înălțime: Parter
Structură: cadre și grinzi din beton armat, cu 2 plăci, pentru durabilitate și siguranță

Construcție și finisaje:
Zidărie exterioară din cărămidă de 25 cm, cu izolație termică
Compartimentări interioare din cărămidă de 25 cm și 15 cm
Tâmplărie PVC cu 7 camere și geam tripan, glafuri interioare și exterioare
Acoperiș din tablă
Centrală termică în condensație

Utilități și infrastructură:
Racordare completă la utilitățile orașului: gaz, apă, canalizare, energie electrică
Contorizare individuală pentru fiecare locuință
Drumuri de acces și infrastructură complet finalizate la predarea proiectului

Avantaje ale ansamblului:
Arhitectură modernă, cu design elegant
Distanțe generoase între locuințe, pentru intimitate și confort
Posibilitatea personalizării finisajelor interioare (materiale, culori, modele)
Proiect realizat conform normelor actuale în construcții civile

Model 3 camere
Suprafață teren: cca 400 mp
Suprafață construită: cca 136 mp
Suprafață utilă: cca 93 mp
Preț: 165.000 euro, TVA inclus

Model 4 camere
Suprafață teren: cca 400 mp
Suprafață construită: cca 159 mp
Suprafață utilă: cca 115 mp
Preț: 175.000 euro, TVA inclus

Rezervări: Rezervarea se poate face cu avans începând de la 5%, în funcție de stadiul construcției, cu posibilitatea alegerii finisajelor interioare.
Pentru informații suplimentare și programarea unei vizionări, vă rugăm să ne contactați.

 Mentioneaza cand ne suni: ID: EXP524 si site-ul unde ati vazut anuntul.
 Ne puteti suna NON STOP in functie de disponibilitate raspundem la orice ora! 
 -
 * La achizitionarea imobilului cu credit Noua Casa/imobiliar/ipotecar primiti asistenta GRATUIT la realizarea dosarului bancar.
 * Nu ne asumam raspunderea pentru greselile de afisare sau erori ale sistemelor informatice, care pot afecta oricare dintre informatiile furnizate.
 * Informatiile schitele, preturile si imaginile prezentate in acest anunt au scop pur informativ si nu au caracter angajant de orice natura si pot suferi modificari.
 * Pentru o informare exacta asupra situatiei unui imobil sau a stocului existent va rugam sa solicitati informatii exacte de la brokerul imobiliar care reprezinta proprietarul.
 * In unele situatii la contructiile noi de la dezvoltator pretul afisat este fara TVA ( in functie de caz TVA este de 0 % sau 21 %).

Id intern: EXP524

Solicită vizionarea proprietății

Alege o zi disponibilă

06 Februarie
07 Februarie
08 Februarie
09 Februarie

Alege un interval orar

8:00 - 12:00
12:00 - 15:00
15:00 - 18:00
18:00 - 21:00

Următoarele date de contact oferite de tine vor fi accesibile proprietarului:

Locație

Despre zona "Trivale"

păreri exprimate de 186 de utilizatori, pe o scară de la 1 la 10

Află clasamentul acestui cartier
Sănătate și Siguranță

Sănătate și Siguranță

7.1

Sănătate 6.4

Siguranță 7.4

Calitate aer 7.2

Curățenie 7.3

Zone verzi 7.4

Cultură și Educație

Cultură și Educație

6.5

Cultură 5.7

Educație 7.6

Sport 6.3

Ambianță și Lifestyle

Ambianță și Lifestyle

6.7

Nivel de trai 7.1

Magazine 7.3

Localuri 6.7

Parcări 5.5

Zgomot 7.2

Transport în comun

Transport în comun

7.9

Autobuz 7.9

Tramvai 0.0

Metrou 0.0

Contactează utilizatorul

ID: 4110178

Ansamblu rezidențial nou – 15 case moderne | Trivale –

4 camere | 115 m² | Arges / Pitesti

136.400 €


Vezi și alte anunțuri imobiliare
Apartamente vânzare Pitesti-ag - Banat Case-vile vânzare Pitesti-ag - Banat Garsoniere vânzare Pitesti-ag - Banat Terenuri vânzare Pitesti-ag - Banat Apartamente vânzare Pitesti-ag - Bere Case-vile vânzare Pitesti-ag - Bere Garsoniere vânzare Pitesti-ag - Bere Terenuri vânzare Pitesti-ag - Bere Apartamente vânzare Pitesti-ag - Big-Bascov Case-vile vânzare Pitesti-ag - Big-Bascov Garsoniere vânzare Pitesti-ag - Big-Bascov Terenuri vânzare Pitesti-ag - Big-Bascov