Laurentiu Flamind

Consultant imobiliar

Vânzare

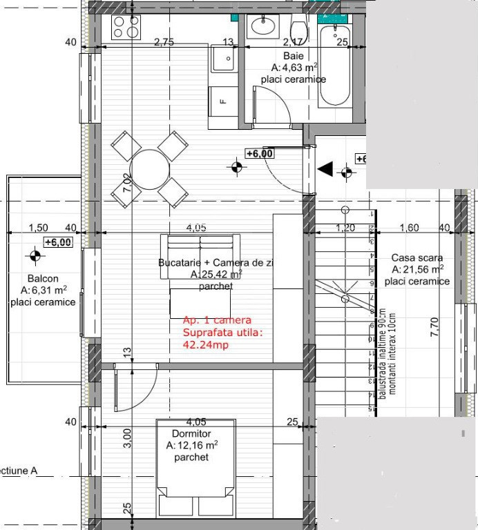
2 camere | 42 m²

Ap. 2 camere certificat NZEB, încălzire pardoseală + răcire - bloc nou

Cluj / Floresti
75.000 €

Rată estimată

1.615 Lei/lună

Avans (15%)

55.913 lei

Perioada împrumutului

30 ani

Specificații

Număr camere 2

Suprafața utilă 42 m²

Compartimentare Semidecomandat

Confort 1

Etaj 1

An finalizare construcție 2026

Tip imobil Bloc apartamente

Stare proprietate În construcție

Niveluri imobil 4

Număr Băi 1

Mobilat și Utilat Nemobilat

Posibilitate parcare Da

Ansamblu Rezidențial Da

Tip tranzacție Vânzare

Tip vânzător Companie

ID intern APCJ246779 

PRETUL NU INLCUDE TVA!

Apartament 2 camere NZEB | Florești, Strada Cetății | 42 mp + balcon | Eficiență energetică maximă.

EDIL Florești vă prezintă un apartament cu 2 camere în ansamblu rezidențial nou pe Strada Cetății, certificat NZEB (Near Zero Energy Building) – standard de eficiență energetică maximă care garantează costuri minime la întreținere și confort superior.
Apartamentul este situat la etajul 1 dintr-un imobil cu 4 etaje, dotat cu lift, având o suprafață utilă de 42 mp și orientare vest. Compartimentarea semidecomandată, confort 1, include hol de intrare, living cu bucătărie open-space, dormitor și baie.
Proprietatea se predă complet finisată cu materiale premium: gresie și faianță modernă, parchet laminat de calitate.
Ansamblul rezidențial oferă facilități excepționale: 3000 mp spații verzi amenajate cu multiple parcuri de joacă, lift, interfon și spațiu comercial la parterul primului bloc. Locația este excelentă, în apropiere de Carrefour, Profi, Mega Image și stații de autobuz, asigurând acces facil la toate facilitățile necesare
Pentru detalii suplimentare sau pentru a programa o vizionare, vă așteptăm la sediul EDIL Florești, Str. Eroilor, Nr. 25, Ap. 15 (et. 1), Florești, sau ne puteți contacta telefonic.

Solicită vizionarea proprietății

Alege o zi disponibilă

14 Mai
15 Mai
16 Mai
17 Mai

Alege un interval orar

8:00 - 12:00
12:00 - 15:00
15:00 - 18:00
18:00 - 21:00

Următoarele date de contact oferite de tine vor fi accesibile proprietarului:

Locație

Contactează utilizatorul

ID: 4140235

Ap. 2 camere certificat NZEB, încălzire pardoseală + răcire - bloc nou

2 camere | 42 m² | Cluj / Floresti

75.000 €